查看完整案例


收藏

下载
项目对奥斯陆乡下一栋1980年代的白色住宅室内进行了改造。一层全部保留,作为一个大房间使用,通过半开放的黑色砖墙分隔成不同区域。开放的分区让人们可以在与他人共室的同时独处,不顾功能自由使用空间。
The project is an interior renovation of a white 1980s house in the Oslo countryside. The whole ground floor of the house is restored as one big room, subdivided into zones by half-open shelf walls made of black brick. The simultaneous zoning and openness allow people to be together and alone at the same time and encourage a free use of spaces regardless of functional programming.
▼室内空间概览,overall view of the interior
房间中有一片抬起的区域,铺设榻榻米垫,让人们可以坐在地上。尽管席地而坐并不是欧洲的风俗,业主家庭和朋友十分喜欢这块区域,会在这里进行各种各样的社交活动。
The house has a raised zone with tatami mats for sitting on the floor. Although sitting on the floor is not a European custom, the zone is very popular with the client’s friends and family who explore its versatility in various social situations.
▼抬起的榻榻米区域和丰富的活动,raised tatami area and various activities
项目等另一个主题是黑暗。建筑是“以精湛的手法、正确而华丽地将体块组合在光中”,然而,这并不意味着要将白色体块堆叠在明亮的日光下。和日本建筑一样,黑暗对于北欧建筑来说也是一个重要的主题。在黑暗中,体块和空间不再那么清晰,这种模糊可以激发人们的好奇心,让他们通过身体的运动探索三维空间。
The project also explores darkness as a theme. Architecture may well be “the masterly, correct and magnificent play of masses brought together in light”, however this doesn’t need to imply white cubes in bright daylight. Darkness is an important theme in Scandinavian as well as Japanese architecture. In darkness masses and spaces are less clear, and this ambiguity can trigger a curiosity and desire for three-dimensional exploration of space through the movement of the body.
▼入口,黑色模糊空间,entrance, darkness making the space less clear
黑暗中,房间的墙面和边缘消隐,与此同时,身体直接接触到的材料变得更为突出,建筑的物理存在得到强调。
In darkness the edges and walls of rooms fade out whereas materials in the immediate surroundings of the body get stronger and the physical presence of architecture is emphasized.
▼开放而又分隔的空间,separated and open space
黑暗中,眼睛得以休息,挡视线投向远处明亮的空间,人们不禁思考起空间的深度,在反思中获得平静,同时激起探索的欲望。
In darkness the eyes find rest, and with views to brighter spaces further away, the mind wanders in the depth of space to simultaneously find peace for reflection and desire for exploration.
▼从黑暗中望向明亮的室外,view to the bright outdoor space from the darkness
建筑中的黑暗可以软化两极之间的边界,强化出一种暧昧、犹疑、而又有趣的世界观。
Eventually darkness in architecture can strengthen a worldview of ambiguity, doubt and curiosity while softening the tyranny of heroic polarities.
▼细部,details
▼项目外观,external view of the project
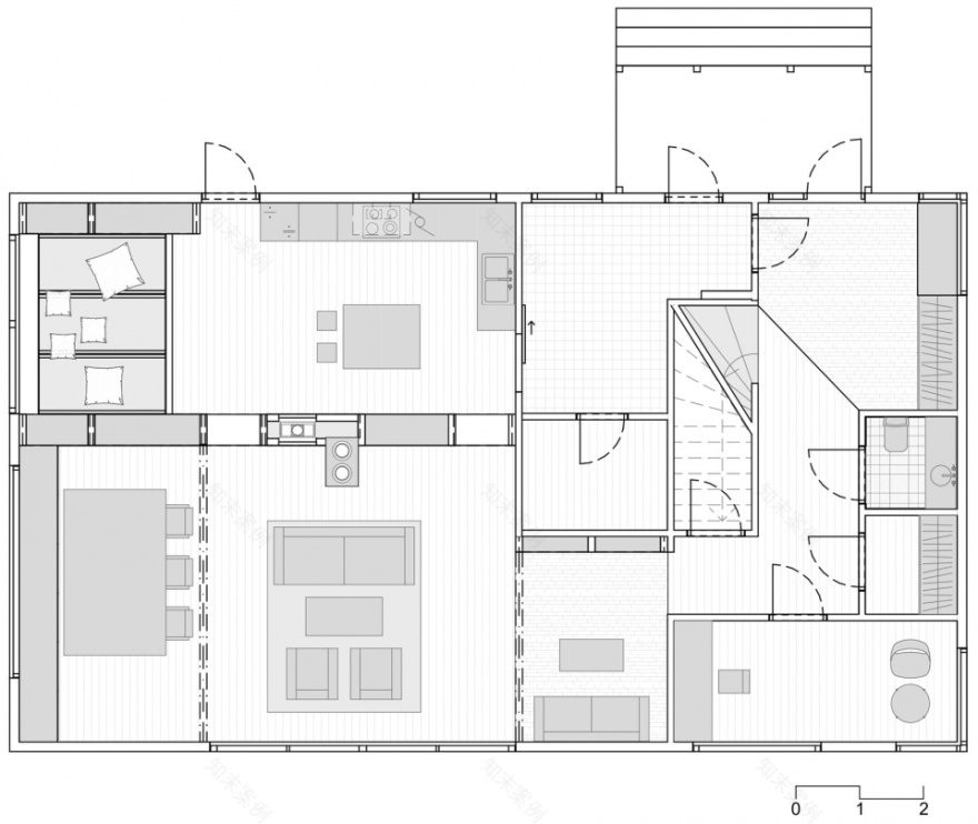
▼平面图,plan
▼剖面图,section
Architect: Austigard Arkitektur
Team: Tor O. Austigard, João Pedro Faria, Hanna Kurlovich.
Location: Kråkstad, Norway (Oslo region)
Year: 2019
Area: 150 sqm net area
Photo credits: Ivan Brodey
Contractor: Optimal Bygg
Bricks: Wienerberger Terca Galactic
Tatami mats: Futonota
客服
消息
收藏
下载
最近
















