查看完整案例

收藏

下载
二楼平面布局设计方案,二楼主卧,和一楼采用同样的格局,楼梯成功的避免过道的浪费,二楼有空间设计起居室,两代人都有自己的活动空间
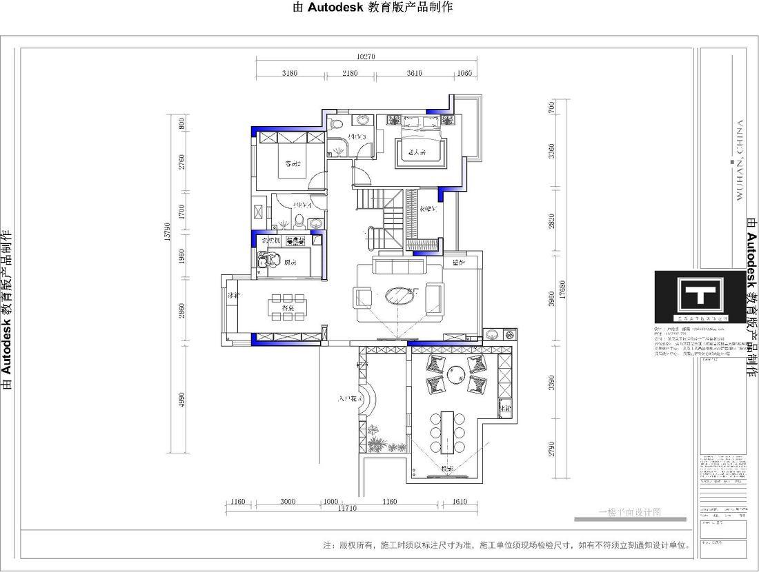
一楼平面布局方案,将楼梯设计到中间,减少过道的浪费,最大限度的利用空间,形成衣帽间套房
这是一个纯设计项目,因为工装项目结缘,业主交给这个老家的休闲养老的住宅项目。
没有选择中式,也没有选择现代,让我再一次遇见美式乡村
不要浮夸,不要极简,美式乡村的异国情调自然受到业主的青睐
作为设计师,最喜欢不同的风格设计,生活的多样的,设计必须多元,在现代风正流行的阶段,感谢,再次遇见美式乡村
客厅背后沙发背景,用红砖墙作为楼梯的导向,真皮沙发,原木框架,质感满满,一幅画作为装饰点缀
厨房原木门成为一道风景,呼应原木餐桌,过道端景装饰画,
餐厅设计美式酒柜,采用灰蓝色,雅致高级,搭配原木餐桌椅,天花原木装饰,搭配吊扇灯
主卧跳跃的灰蓝,休闲区间,外置的浴缸,鱼骨平花的仿照实木地砖
主卧特写,大面白色线条作为基调背景色,衬托出深色原木的床,形成一条回转线条
这个具备异域风情的背景,是主人的最爱,也会吸引小孩子留下来,多住几天目的就达到了
书房采用精致的白色书柜,唯独沙发成为装饰的主体
客服
消息
收藏
下载
最近













