查看完整案例


收藏

下载
学校建在下妻市的中心地区,是很多担任地域核心工作人员的母校。它坐落在美丽沙沼旁,越过湖面远眺的话,就能在正东方看到拥有紫峰美誉的筑波山。我们此次攻克的课题就是发挥地域特质,创造一所「地域中心学校」,让学生们在此留下难忘的青春回忆。
The school is built in the central area of Shimotsuma City. It is the alma mater of many core regional staff. It is situated beside the beautiful Sanuma Lake. Look over the lake, you can see the Tsukuba Mountain with the reputation of Purple Peaks in the east. Our task is to give full play to the regional characteristics and create a “Regional Center School” so that students can leave unforgettable memories of their youth.
▼项目概览,general view
中心设计是强调突出将筑波山作为设计的轴线,基于当地的光照,通风,采光的情况,在可建筑区域内确定建筑物的朝向。学校为长度超过100米的直线状3 层建筑。利用一层由1.8m均布排列的柱子构成的虚拟界面与3层的混凝土悬挑空间来突出表现第二层的深凹幅度。目的就是像将正门、砂沼、筑波山排成一条线,创作出强烈的轴线视感。在面向道路的西侧,在校舍的山墙侧设置入口换鞋房间。在那个入口房间前面架起了折板状的大屋顶。它保证了学生们在下雨天时,从校舍前往自行车停放场、体育馆、柔・剑道场的情况下,都不被雨淋。除了迎接每天早上来上学的学生们,同时也和既存的体育馆达到一体化的效果。不过,现在这个大屋面还被隐藏在体育馆的背后。关于它的真正价值会在将来这个体育馆拆除的时候方才展现出来。
The central design emphasizes the emphasis on taking the Tsukuba Mountain as the axis of the design。Based on the local lighting, ventilation and lighting conditions, the orientation of the building is determined in the building area. The school is a linear three-storey building with a length of more than 100 meters.The virtual interface of the first floor consisting of 1.8m uniformly arranged columns and the concrete cantilever space of the third floor are used to highlight the depth of the second floor. The aim is to create a strong sense of axis vision by aligning the main entrance, Sanuma Lake and Tsukuba Mountain.On the west side of the road, an entrance shoe-changing room is set on the side of the gable of the school building. A large folded roof was erected in front of the entrance. Even in snowy and rainy weather, students can still reach the bicycle parking ground, gymnasium and Rou Kendo without being leached. That to say, it meets the purpose of welcoming students and achieves the integration effect with the existing gymnasium. In addition, the large roof is now hidden behind the stadium. The real face of it will be revealed when the stadium is demolished in the future.
▼南侧外观,external view to the south
▼学校与筑波山交相辉映,t
he school and Mount Tsukuba
▼入口,entrance
▼中庭兼户外教室,a
trium & outdoor space
学校是一个在集体中一边遵循秩序一边学习成长的场所,并且处于这一阶段的学生们感情开始变得丰富。为强化学生们的自主意识、丰富大家的情感,学校通过实验室、音乐室、美术室、手工技术室、家庭料理室、体育馆及剑道馆等各项设施的配置,确保学生们从德、智、体、美、劳全方位发展。同时,我们还可让有共同兴趣特长的学生进行小组讨论等活动。学生们在这里健康快乐地学习,为梦想储蓄能量,由此振翅高飞。
The school is a place where students learn and grow while following the order in the group, and the feelings of the students at this stage begin to become rich. In order to strengthen students’ sense of autonomy and enrich everyone’s emotions, the school ensures that students are morally and intelligently equipped with various facilities such as laboratories, music rooms, art rooms, manual rooms, home cooking rooms, gymnasiums and kendo halls, etc., Sports, beauty and labor in all directions. At the same time, we can also allow students with common interests and specialties to conduct group discussions and other activities. Students here study healthily and happily, save energy for their dreams, and fly high.
▼中央大楼梯,c
entral staircase
▼楼梯,s
tairway
▼自然光透过中庭泄入走廊,natural light leaks through the atrium into the corridor
▼半隐藏多功能教室,multipurpose room
▼多媒体中心,m
edia center
▼手工教室,m
anual room
▼美术教室和理科实验室,a
rt room and laboratory
▼音乐教室和开放活动区,m
usic room and open area for activities
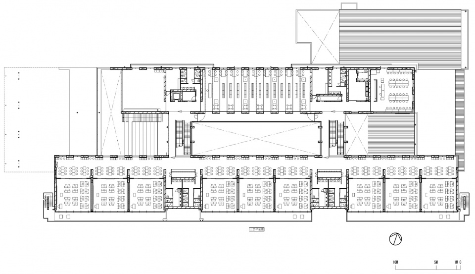
▼一层平面,1F plan
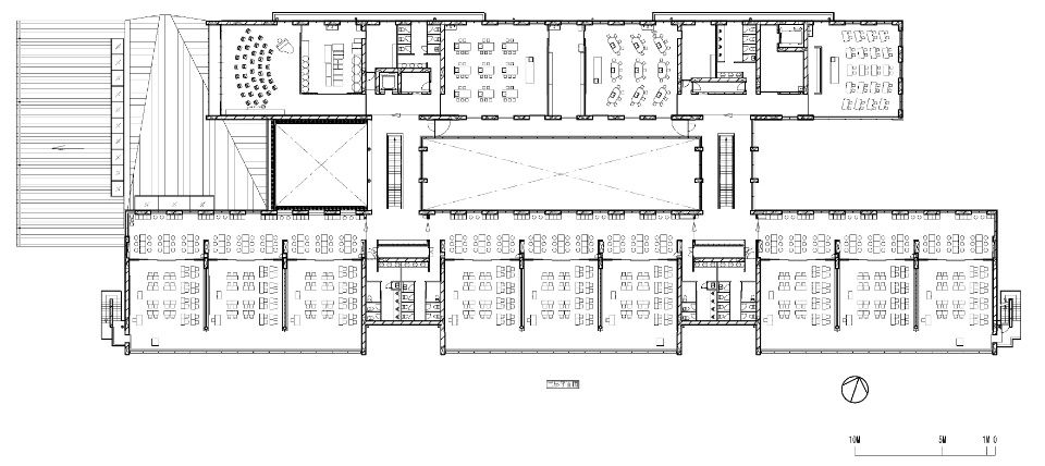
▼二层平面,2F plan
▼三层平面,3F plan
▼立面,elevations
▼剖面,sections
项目名称:下妻市立下妻中学
设计方:三上建筑事务所
公司网站:
www//http:mikami-arc.co.jp
kin@mikami-arc.co.jp
项目设计 & 完成年份:2018年&2018年12月竣工
主创及设计团队:益子 一彦&三上建筑事务所
项目地址:日本茨城县
建筑面积:3,818.49㎡
摄影版权:崛内 広治
客户:茨城県下妻市
Project name:Shimotsuma Junior High School
Design:MIKAMI Architects
Website:
kin@mikami-arc.co.jp
Design year & Completion Year:2018&Dec.2018
Leader designer & Team:Mashiko Kazuhiko&MIKAMI Architects
Project location:Ibaraki Prefecture ,Japan
Gross Built Area (square meters):3,818.49㎡
Photo credits:Kouji Horiuchi
Clients:Shimotsuma City,Ibaraki Prefecture
客服
消息
收藏
下载
最近























