查看完整案例

收藏

下载
深藏在上海市中心的弄堂之内,Whisper Bar以富有雕塑性的姿态营造了一个集酒吧、咖啡、品鉴、活动功能的综合性场地。在此项目中,Digitects不仅以设计师的身份介入,也同样是酒吧股东之一。其角色的增加,带来的变化不仅是在初期更加紧密地结合设计与商业策略,也是在有限的预算内更加极致地落实设计细节。
Hidden in the alley of downtown Shanghai, Whisper bar using a sculptural gesture to create a comprehensive space accommodating whisky, coffee, tasting and event functions. Digitects involved the project not only as of the designer but also one of the bar owners. The change in its role helps to integrate design and business strategy closely in the initial stage and implement the design details thoroughly within the tight budget as well.
▼入口视角,Entrance View
整体空间分为地上与地下两部分:地上轻快的酒吧展现出年轻、有艺术性的氛围;相反地,地下私人俱乐部的态度更为私密与严肃。作为顾客感官与情绪的铺垫,两层空间由一个神秘的隐藏门分开,然后通过一个幽暗的、仪式感的楼梯向地下延伸。
The space is simply divided into two parts: the ground floor and the basement, intended for two different groups of customers. The open bar on the ground floor shows a young, artistic atmosphere, on the contrary, the speakeasy club on the basement level is more private and serious. Leading by a hidden door, go through a dark and ceremonial staircase, the ground floor is extending together with the changes in the customers’ senses and emotions.
▼隐藏门后的楼梯,The staircase behind the hidden door
受到达达主义的启发,通过有机而又克制生长的原有结构看似有些荒诞,感觉上“不像是属于这个空间的”。其突兀的造型增强了空间的戏剧感,也创造了一个独一无二的饮酒气氛。其几何构造的围合姿态,加上金属帘半通透的阻隔,使得入座的顾客感到更加的私密与舒适。
Inspired by Dadaism, the organic and restrained growth of the original structure looks absurd, feels like “doesn’t belong to here”. Its abrupt profile rises the dramatic sense of the space and emerges a unique drinking atmosphere. The enclosed geometry and the transparent aluminium curtain create privacy and intimacy while seating there.
▼座位区,Seating Area
▼吧台区,Bar Area
一进门后呈现的是无限镜形式的酒柜与玄关。其中悬挂的酒瓶搭配彩色的灯光,表现出一种重复、梦幻的视觉体验。酒柜内的玻璃经过特殊处理,既保证了入口处的效果,也对室内座位的影响降低到最小。吧台下部的灯光从顶部射入透明亚克力管内,相同的色彩搭配强化了这种轻松的氛围。
The first thing that shows up after enter the door is the whisky showcase which made of reflective glass and steel frame. Suspended whisky bottles with colour lights project a repetitive and dramatic visual effect. The glass in the whisky showcase is customized, which not only ensure the brightness from the entrance but also minimise the influence to the seating area. The transparent acrylic tubes at the bar are lighted up from the top part, the same colour scheme intensify the relaxing atmosphere of drinking.
▼入口酒展示柜,Whisky showcase at the entrance
来到地下后,会先到达等待区。功能性上等待区连接着两个包厢、厕所与储藏室,是地下的核心空间。其中可移动的酒柜与圆桌提供了酒品选择与品鉴的空间。与楼上相似,整面墙面采用了镜子,增加了空间的复杂性,成为了一个顾客私下聊天的理想空间。
When arriving the basement, the first place is the waiting room. Functionally, it is the core of the basement, connecting two VIP rooms, toilet and storage. The movable whisky showcase and the round table provide an ideal space for tasting and selection, as well as the private conversations. Like the ground floor, one side of the wall uses mirror to add the complexity to the space.
▼等待区,Waiting Area
▼地下室包厢入口处,The entrance of the VIP Room
大包厢用红丝绒布帘分隔成了三部分,也可以在需要的时候进行合并,增加了空间的灵活性。同时,墙体维持了拆除工作后的原始面貌,创造出一种粗粝的地下室形象。一米高的棕红色皮质墙裙适当的增加了视觉与触觉的柔软度。彩色玻璃和雕塑质感的装饰大大增强了地下室的仪式感,营造出一种神秘与尊贵的消费体验。
The large VIP room is separated into three parts by red velvet curtains. The flexibility makes sure the space can be combined when necessary. At the same time, the wall remained the original appearance after the demolition, showing an image of rough unpolished basement. One-metre-high red leather wainscot adds the softness visually and physically. The decoration of the coloured glass and the sculpture enhances the ritual sense of the basement, creating a mysterious exclusive club experience.
▼可调节的包厢空间,The flexible space
▼首层细节,GF Details
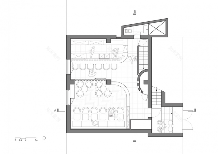
▼首层平面图,Ground Floor Plan
▼地下室平面图,Basement Floor Plan
▼剖面,Sections
项目名称:WHISPER BAR
设计方:低态建筑 DIGITECTS
项目设计&完成年份:2020年9月
主创及设计团队:丁洋洋,顾涛
项目地址:陕西南路368号1楼,上海,中国
建筑面积:120平方米
摄影版权:戴长逸
Design Firm: Digitects Architecture
Design Team: Ding Yangyang, Gu Tao
Location: South Shanxi Road, Shanghai, China
Built Area: 120 m
2
Completion: Aug 2020
Photographer: Ed Dai
客服
消息
收藏
下载
最近


















