查看完整案例

收藏

下载
项目简介
Project Description
香港艺术馆自1991 年启用后设施有优化的需要,这扩建项目能令该馆应付不同形色展览。加建部份包括一座两层高别馆,在天台增设的五楼展览厅, 入口大堂扩建,及重置艺术馆的餐厅及书店以增加海傍活力。修缮范围包括,在艺术馆原有外牆加铺特色水泥组件,东翼原有孤型内梯改建为玻璃展厅。透过加建及修缮两方面,以更新该馆的形象和特色。
The existing Hong Kong Museum of Art (HKMA) was built in 1991. Over 23 years, there was an urgent need to extend and upgrade the museum and its facilities and equipment to address the shortage of art exhibition space and to enhance the service of HKMA. Scopes of this project are two-folds summarized as below:
– Provision of the entrance foyer on G/F, to enhance the visitors’ experience
– Additional gallery spaces at new-built two-storey extension Annex Wing and 5/F expansion on the original roof floor
– Provision of a restaurant, cafe and bookshop, to utilize the vibrancy of Victoria Harbour
▼改造后的艺术馆外观,external view of the art museum after renovation
Renovation
– Architectural interventions and features on the entire facades of the museum to create an
iconic image for branding
– Conversion of curved circulation staircase to a transparent lounge area on all floors, at the
East Wing galleries
– Refurbishment of curatorial office and 4 existing galleries
▼改造后的建筑立面风格明显,unique facade of the building stand out in the environment
设计概念
Design Concept
为表现艺术馆的新形象,其原有的轮廓被保留并在外观上加以修缮。新的外牆覆面以传统砌石形式,回应其馆的文化价值。受维港海景的启发,外墙覆面由水泥板立体组件砌成,在自然光照下形成光暗面,营造动感效果。新建部份,包括在新接待处大堂加建玻璃走廊, 及在别馆、二至四楼的公用大堂及天台的新展览厅以通透为主题,令艺术馆显得更开放及具现代感。
▼分解轴测图,exploded axonometric
Existing volumes are preserved and decorated to intensify the public image of HKMoA to the city. To reinterpret the cultural value of the museum collection, new cladding’s tangible texture echoes traditional masonry pattern. Aspired by the undulated seascape of the Victoria Harbour, the façade with the multi-faceted fibre cement cladding, animates with the interplay of light and shadow that changes over time and weather.
Renovated and expansion area are designed as transparent volumes, to carve out existing building mass by light-originating voids and to engage new dialogue with urban realm. The skewed form of Annex Wing respects the geometry of original structure, and provides backdrop for the piazza of the Cultural Complex, which are frequently used for public performance and event. It has a transparent volume placed on the ground enhancing visual dialogue, and an opaque block floating above a glazed void, where strict environmental control of exhibits is needed.
▼项目入口,entrance of the project
▼原建筑立面的石板被保留,stone slabs on the original facade was remained
▼玻璃走廊,glass corridor
▼水泥板立体覆面营造动感效果,cement cladding on the facade creating a dynamic effect
可持续策略
Sustainability Statement
本项目的环保措施主要为被动式设计,其特点如下:于外牆覆面与建筑物外牆中间形成的气室,透过空气对流保持室内冬暖夏凉,节能有效至15%;大部分艺术馆原有的外牆砖被保留,以减少建筑废料;应有网片夹心低辐射玻璃降低照于室内的自然光热与紫外线;在天面与地面外广场上绿化环境;节能楼宇设备,例如高效能水冷式空调系统、太阳能板等。
▼立面细部,覆面与墙面之间形成气室,closer view of the facade, air gap created between the cladding and the outside walls
The sustainable measures of this project are implemented mainly through passive design approach through items below:
Ventilated Façade
– The air chamber between the building and the external façade which is renewed by convection allows energy saving. This chamber facilitated the building to maintain its warmth in winter and its insulation in summer, thus reducing the energy cost by up to 15%.
Other considerations on façade design
– The majority of the existing wall tiles on the museum concrete wall was left intact to reduce C&D waste; Provisions of low-e glass and laminated mesh are incorporated to filter direct sunlight and UV.
Greenery and Amenity
– Additional greenery area and amenity facilities on the roof area and piazza for beautification.
Environmental devices and systems
-High efficiency air-cooled chillers with variable speed drive; automatic demand control of chilled water circulation system; re-provision of the PV panels, etc.
▼首层大堂,lobby on the ground floor
▼五层大堂,lobby on the 5th floor
▼明亮的展厅,bright exhibition halls
▼带有露台的画廊,gallery with terrace
▼室外走廊,outdoor corridor
▼夜景,night view
▼总平面图,site plan
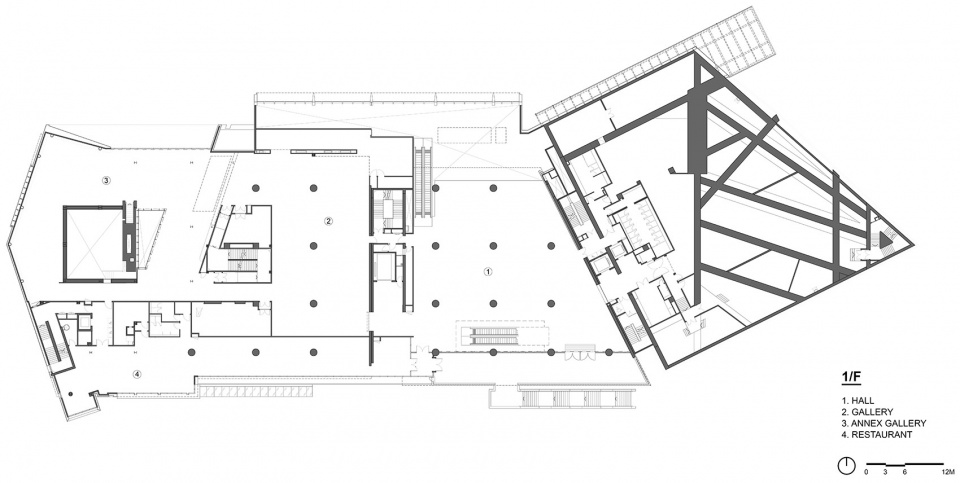
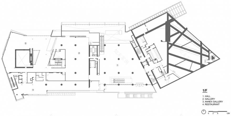
▼首层平面图,ground floor plan
▼二层平面图,1st floor plan
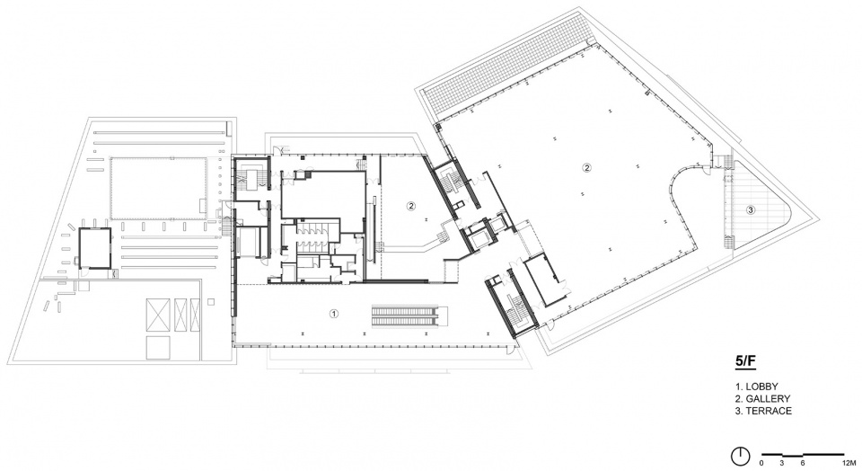
▼五层平面图,5th floor plan
▼立面图,elevations
Project Name: Expansion and Renovation of the Hong Kong Museum of Art
Architecture Firm: Architectural Services Department, HKSAR
Firm Location: Queensway Government Offices, 66 Queensway, HK
Completion Year: Dec 2018
Gross Built Area: 23450 sq.m.
Project location: Tsim Sha Tsui, Hong Kong
Lead Architects: Vivien Fung
Lead Architects e-mail: fungwmv@archsd.gov.hk
Photo credits: Image 28, William Furniss
Photographer’s website:
,
Design and Project Team: Architectural Services Department, HKSAR
Clients: Leisure and Cultural Services Department, HKSAR
Façade Consultant: Ove Arup & Partners Hong Kong Ltd
QS consultant: Beria Consultants Limited
Partners: Arup (Façade Consultant), Beria (QS Consultant), Chee Cheong Hing
Contruction: LTD (Main Contractor)
Brands / Products used in the projrct: 1. Eternit Fibre Cement Board, 2. Okalux Glass, 3. KME TECU Bronze
客服
消息
收藏
下载
最近































