查看完整案例


收藏

下载
▼庭院概览
overall view of the courtyard
原建筑是一座已成为危房的八十年代的平屋顶建筑。中间院落的地面低于外面被修缮过的胡同道路。北屋内两层的净高均不足两米,甚至需要低头来穿过木梁。由于胡同重建的各种要求和限制,设计成为了一个利用限制得出答案的过程
The original building constructed in the 1980s was a dilapidated hutong house with flat roof. The ground level of the courtyard in-betweenwas lower than the repaired alleyways outside the yard. The clear ceiling height of the both two floors in the northern part building was less than two meters. Peoples had to lower their heads to avoid bumping the wooden beams when walking through the room. Due to the variety of requirements and limitations of the redevelopment and construction in hutong area, the design becomes a process of .
▼改造过程,renovation process
建筑高度的限制
Limitations on the height
为了给室内空间争取高度,设计降低了基地的地面高度,并利用高差,分出几个不同高度的台地。利用围墙和建筑之间的狭长空间作为模糊的过渡空间,设置分散的台阶,弱化高差感。所有的台阶也在不同的界面处起到了不同的功能作用。
To create enough ceiling height , the ground of the site was further lowered down. The height difference was used to construct several platforms of various heights. The deep and narrow area between the enclosure and the building was designed as blurred transitional space where scattered steps were set to make less contrast between outside and interior heights. Steps and platforms played different roles at corresponding interfaces.
▼改造前后流线变化,circulation before and after renovation
▼降低基地高度后的庭院,courtyard with lowered ground level
▼台阶弱化高差
steps blurring the height differences between the inside and outside spaces
▼墙面细部
details of the wall
相邻建筑的限制
Limitations caused by adjacent structures
由于施工条件的限制,重建只能采取施工更快速简便的钢结构形式。重建的钢柱基础须避让开紧密相邻的邻墙基础,而墙体的位置又无法改变,所以采取了部分墙柱分离的悬挑结构形式。房间内柱子的位置重新定义了空间布局。
Considering the limitation and construction conditions in hutong area, the redevelopment adopted the steel structure for fast, convenient construction. The newly-set foundation of steel columns must avoid the neighbouring old brick base right next to them since the walls were impossible to move. So we place some columns one meter away from the wall adjacent to the neighbor, this caused a part overhang of the floor. The entire layout of the room was also re-divided by the column inside.
▼剖面图,部分墙柱分离,section, some columns are separated from the walls
面积的限制
Limitations on the space area
原建筑由于院落和层高的关系,被划分成了三个独立而分散的小面积房间,而由于重建功能的不确定性,需保证空间的完整及面积最大化。设计将一层两个房间面向院落的界面完全打开,通过折叠门的开关,可将南北两个房间及院落整合为一体。
The original space was divided into three independent and scatted small rooms due to the in-between courtyard and storey height. Since the functions of the redeveloped building were undefined, the space should be kept intact, and be maximized to provide more possibilities. We also opened up the interfaces of two rooms facing to the courtyard, and by switching open the folding door, the two rooms in the northern and southern parts can be integrated by the courtyard as a whole.
▼折叠门打开后,房间和庭院成为一个整体
the room and the courtyard are connected into one entity after opening the folding door
▼下沉的室内空间与庭院,sunken interior space and courtyard
为了利用起二层良好的视线和胡同景观,在院落内结合庭院景观设置了一座有台阶的连桥,将北屋二层和南屋的屋顶平台联系起来。连桥、屋顶、通道、室内的楼梯结合起来形成了一个新的可上上下下的空间流线,无形中放大了院落的空间感受。
To make the best use of the natural sight and wonderful view over the hutong on the second floor, a bridge with steps was built, fitted in the courtyard scenery and connecting the northern room and the roof terrace of the southern part. The bridge, the terrace,the passages, and interior stairway were combined to create a new spacial circulation, enriching the spacial experience in this courtyard house.
▼屋顶连桥,可以欣赏胡同景观,bridge on the roof with views to the Hutong area
▼二层观景窗,picture window on the second floor
我们希望在这个狭小的院落空间里,通过高差、平面的组织以及界面的处理,创造出尽可能丰富的空间感受。探讨在充满限制的胡同重建条件下,如何对胡同空间使用作出新的解答。
We intended to create rich experiences in this small and confined space ,by playing with the height differences, the organization of the space, and the interfaces treatment. The redevelopment project has demonstrated one of Jí Architect’s innovative solutions under various limitations to the new planning of a hutong.
▼纯粹的室内空间,interior space in pure white color
▼楼梯和细部
staircase and details
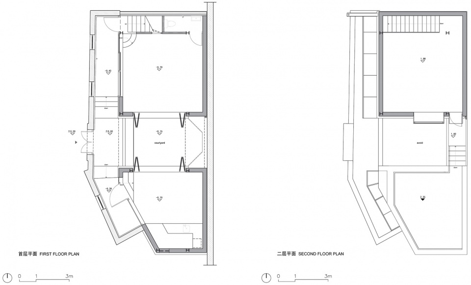
▼平面图,plans
项目名称:西文昌胡同X号院
项目类型:胡同重建
项目面积:88.2㎡
建成时间:2019年11月
建筑师:李洁苒,鲁雯泋
甲方:北京金御房地产开发有限公司
施工:中建江南建设工程有限公司
摄影:亼建筑
Project Name: Courtyard House Redevelopment
Project Type: Redevelopment
Project Area: 88.20㎡
Completion Year: 2019.11
Designer: Li Jieran, Lu Wenhui
Photography: Jí Architect
客服
消息
收藏
下载
最近



















