查看完整案例


收藏

下载
设计师将Rugs Carpet and Design的新展销厅分隔成画廊一样的不同展区。经过改造,原来废弃的城市公寓转变成高端画廊、专业工作坊和办公室,重新定义了传统零售空间。设计的难点在于整理现有的大量展品,并用简洁、雕塑化的方式展示出他们丰富的类别。设计师希望空间可以既天马行空、凸显创意,又沉稳优雅、精致非凡,从中传达出客户的精神与价值观。
Rugs Carpet and Design’s new showroom is a gallery like experience of curated zones. The interior has been transformed from a derelict city loft space into a high end gallery, specification workshop and office. redfining the traditional retail showroom. The challenge was to undergo a massive edit of existing stock and then to showcase the product in a minimal and sculptural way without detracting from the expansive range of product on offer.The design team set out to create a space that is whimsical whilst maintaining a calm elegance and sophistication which embodies the values and spirit of the client.
▼入口门厅,通往高端画廊、专业工作坊和办公室,the entry, leading to the gallery, specification workshop and office
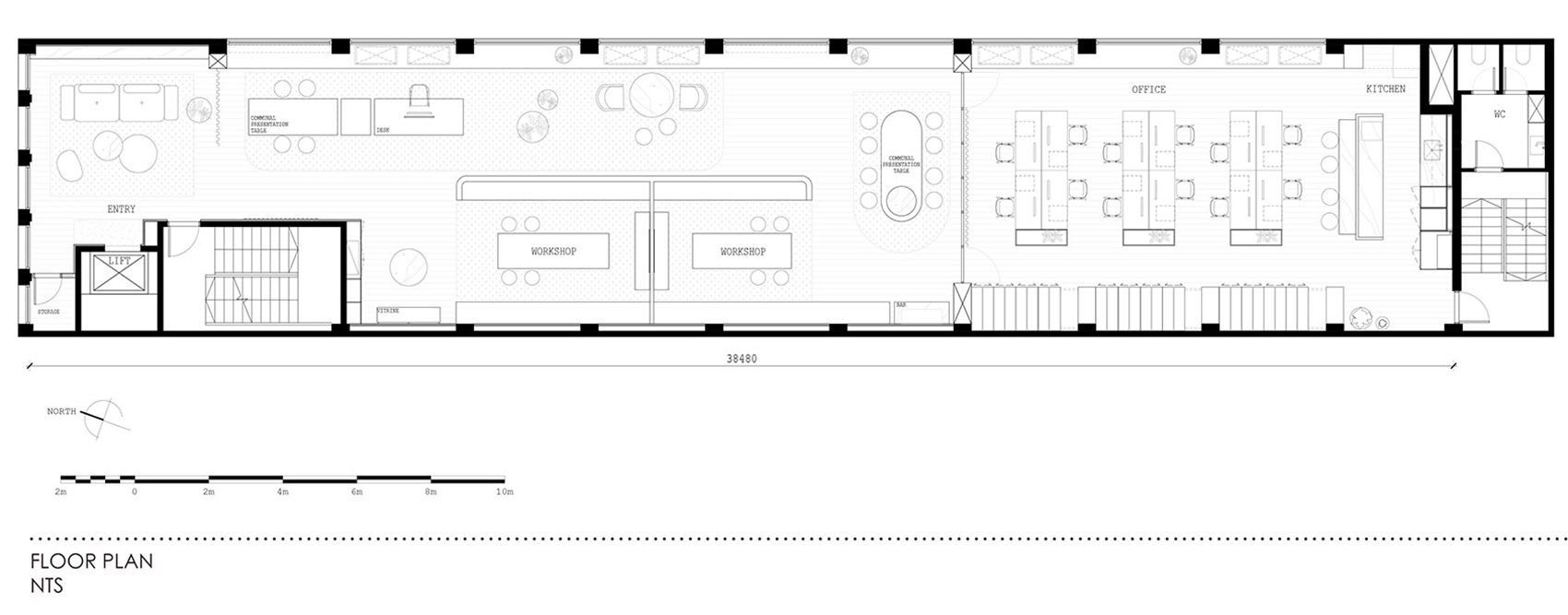
依照客户需求,设计师成功地将城市公寓改造成光线充足的工作空间。设计有效利用了40m长的空间,不仅为员工创造出不同的工作区,还为客户设计了专门的工作坊,工作环境无缝衔接,以实现高效的工作流程。
The design team were able to bring the client’s brief to life by transforming the city loft into a light filled functional work space. The new design utilised the entire 40m length of the space by creating different work zones for staff and dedicated workshop areas for clients to facilitate a more seamless specification process.
▼平面图,边长40m的狭长空间,floor plan, 40m length of the narrow rectangle space
Kestie Lane Studio希望为每个项目提供定制设计和定制元素,因此本项目中与工匠和手工艺人的合作至关重要。经过设计,展销厅被打造成Rugs Carpet + Design的名片,充满魔力的空间引人入胜,展示出公司的潜力、愿景以及推动创造力的决心。设计与产品的关系恰到好处,相得益彰。
Kestie Lane Studio are committed to the custom-crafted and bespoke design elements on each project, the collaboration with artisans and craftspeople on this project has played a significant role in transforming this interior. The workspace itself has become a showcase for the potential of RC+D and the successful execution of their creative vision, there is a sense of magic and wanderlust in this space. When the design enhances the product and the product enhances the design, this is truly a sign of a successful design relationship.
▼定制元素,精美的背景墙,bespoke design elements, elaborate backdrop
▼细节,隔断门采用黄铜、大理石与玻璃材质,details, the partition door made of brass, marble and glass
进入展销厅,石材、瓦楞玻璃、黄铜、织物和定制地毯等不同材料折衷组合,创造出色彩缤纷、材料丰富的世界,令人沉浸其中。设计师特意保留了原有的木地板、窗户和裸露的梁上天花板,与展示地毯的细木工陈列柜形成对比,给人留下深刻的印象。
On entering the showroom, you are engulfed in a world of rich colour and an eclectic mix of textures and materials, such as stone, fluted glass, brass, fabrics and custom rugs. The original timber floorboards, windows and exposed high beam ceiling are deliberately left as original to juxtapose the meticulous joinery detailing and display cases which showcases the impressive collection of custom rugs and carpets.
▼展廊空间内,前台办公桌,interior of the gallery, communal presentation table
▼材质丰富,办公桌采用黄铜材质结合绿冰大理石基座,mix of materials, the table featuring details of brass inlays and a Green Ice Marble plinth
▼与工作坊区相邻的地毯陈列柜,保留原有的木地板,adjacent to the workshop zone, vitrine of carpets, timber floorboards left as original
入口处定制的细木工展柜采用缟玛瑙与红色瓦楞玻璃的搭配。内部前台办公桌则选用黄铜材质结合绿冰大理石基座,画布般的台面上,客户与员工在此合作,探讨设计。此外,RC + D精心设计的定制雕花地毯,为空间注入了更多细节。黄铜制成的金色镜面墙显示出房间正中的工作坊区,定制的黄铜玻璃柜内陈列着地毯样品,仿佛展示珠宝一样精致。9m高的手工木墙围合了工作区,彰显出细节与精确。镶嵌石板的复合钢框架门是画廊空间精美的背景,分隔展示区与办公区。设计细节带来一个个戏剧性的瞬间,吸引人们在空间中漫游,体会平凡事物中与众不同、令人心动的独特魅力。
Bespoke entry joinery features Onyx stone paired with red fluted glass, custom workshop tables featuring details such as brass inlays and a Green Ice Marble plinth create the perfect canvas for collaboration and design exploration. These zones are further defined by the custom patterned and carved rugs in each space designed by RC+D. The custom brass vitrine showcases the rug samples as delicate jewelry on display and the brass and gold mirror bar bookend the workshop zone in the middle of the space which is all concealed beyond the 9m crafted timber wall which flaunts detail and precision. The stone clad steel frame doors which divide the showroom and the office area creates an elaborate backdrop to the gallery space. These theatrical moments create a journey of discovery in the space and celebrate the ordinary into something truly striking and unique.
▼工作坊区,黄铜玻璃柜内陈列着地毯样品,workshop zone, the brass vitrine displaying the rugs
▼细节,入口展柜的缟玛瑙与红色瓦楞玻璃;工作坊展柜的黄铜与透明瓦楞玻璃,details, entry joinery featuring Onyx stone paired with red fluted glass, workshop showcases made of brass and transparent fluted glass
▼透视草图,分区的展廊空间,perspective sketch, gallery space divided in zones
▼立面草图,镶嵌石板的复合钢框架门,facade sketch, the stone clad steel frame doors
Site size: 380㎡
Completion date: 2019
Building levels: 1
MORE:
Kestie Lane Studio
,更多关于:
客服
消息
收藏
下载
最近













