创作上传
VIP
收藏下载
登录 | 注册有礼
知末案例
/
办公空间
/
科技公司
/
申伯空间设计
现代极简风格科技公司办公室装修设计案例
2017/05/20 00:00:00
查看完整案例
微信扫一扫
收藏
下载
分享
你可能还喜欢
换一换
巴西里约热内卢欧莱雅创新中心(2016)(Perkins+Will)设计
塞帕里奥生物播种
上海未来伙伴机器人有限公司
巴黎Olympus光学数字技术制造商创意办公空间
巴西 ChatPay 办公室设计丨Marcelo Alvarenga,Juliana Figueiró
谷歌新总部“碳足迹”减少 2100 吨,环保设计成亮点
总裁办公室
总经理办公室
开发办公室
挑高的休闲洽谈区
前台形象接待区
办公室一角
行政办公区
员工茶水区
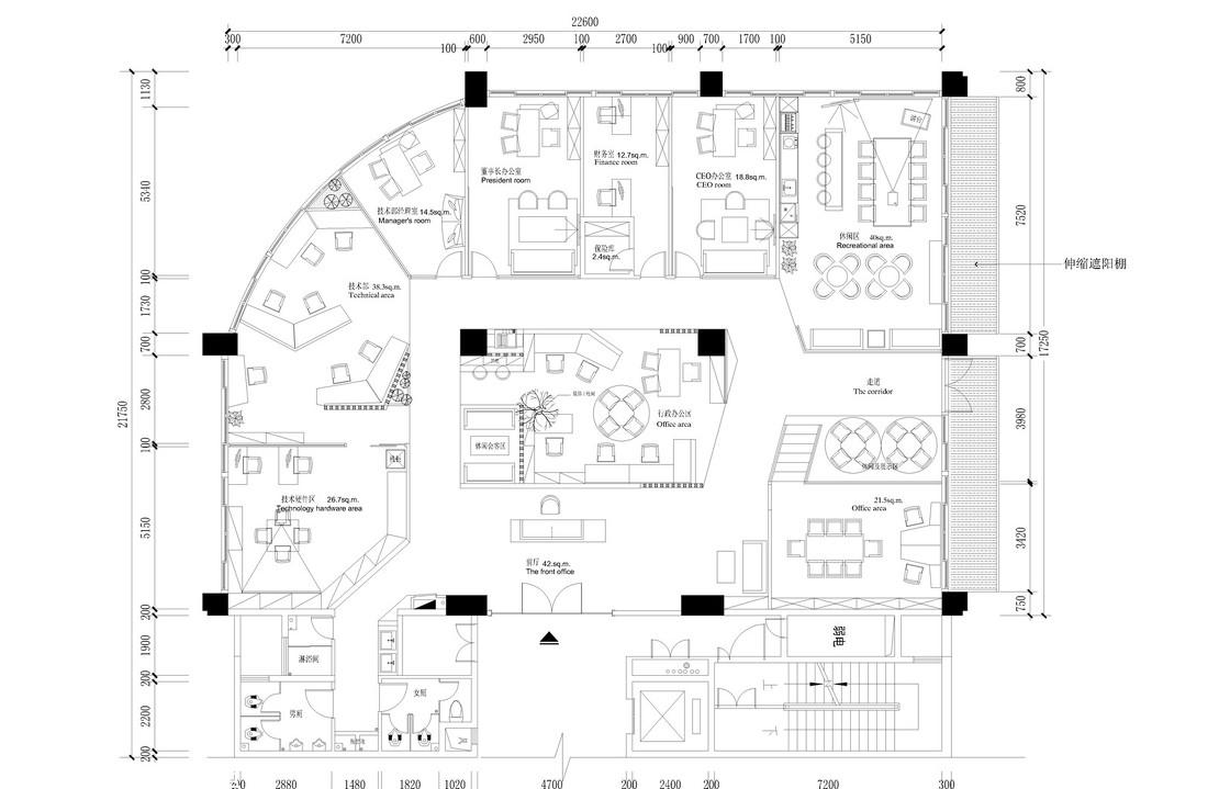
全屋平面功能布局图
海鲜自助烧烤火锅餐厅设计
广州金融城绿地中心金融投资公司办公室装修
恒光集团办公室
蒙牛集团现代办公室设计,演绎企业形象
维思顿国际幼少儿英语学校
广州美容整形医院室内设计案例解析
广州珠江新城咖啡西餐厅
广州安华汇爱味道牛排西餐厅 | 现代工业风的艺术空间
复古工业风双层咖啡西餐厅设计,打造城市休闲新地标
知名化妆品公司办公室装修设计
广州海为贸易有限公司办公室装修设计
清远私人别墅一站式设计盛宴
客服
消息
收藏
下载
最近