查看完整案例

收藏

下载
项目背景:废弃矿坑的重生
Background:Regeneration of a redundant quarry
青岛七色山矿坑花园及其游客中心坐落于一处2017年停止开采的采石场遗址之上。经历了数十年的开采,这一地区的植被和土壤遭到了严重破坏,大地伤痕累累。随着地方政府推动的环保举措以及私营资本的参与,这里自2017年开始经历了长达数年的生态修复,曾经被破坏土地都覆盖上了绿色植物,一座崭新的生态公园在2020年面向公众开放。
▼连续的屋顶折线,The continuous roofline
The Qiseshan Quarry Garden and Visitor Centre are located in a redundant quarry that ceased operations in 2017. As a result of intensive mining, the soil and vegetation in this area has been severely damaged over the years. With the environmental protection initiatives promoted by the local government and supported through investment from private capital, the subsequent ecological restoration has been on-going for several years. As a result the previous damaged land is now covered with greeneries, with a new ecological public garden to open in 2020.
▼形体生成,Form generation
▼轴测图,Axonometric drawing
设计概念:大地之痕
Concept: ‘A fissure of the earth’
为了唤起场地的回忆,游客中心的设计概念取义“大地之痕”,用一种尖锐、强悍的建筑语言提醒人们这里曾经发生的生态破坏。‘裂痕’起自北端,建筑从大地中升起,向南缓慢爬升至二层,形成上扬的屋顶。作为一座景观中的建筑,连续的屋面模糊了大地与楼层的界限,水平展开的建筑体量与广袤的旷野和地下的岩层形成呼应。在这片经过修复的大地之上,用一种鲜明的建筑语言书写出根源于此的诗意。
▼花园视角中的建筑,Viewing the building from the garden
▼西侧通廊,A passage in the west
▼暗藏的设备平台,The hidden building service platform
▼屋面转角挑檐,A sharp corner of the roof canopy
In order to make reference the site’s previous incarnation, the design concept of the Visitor Centre takes the meaning of ‘a fissure of the earth’, and uses a sharp and powerful architectural language to remind people of the ecological damage that has happened here. As The ‘fissure’ starts from the north, the building rises from the ground and ascends to the second floor as the form extends southwards. With the sense that the building is embedded into the landscape, the continuous roofline blurs the boundary between the ground and the floors, creating a sense of dynamic movement as it rises into the air at the southern point. The horizontality is defined by the buildings mass and langue of the elevation details echoing both the vast wilderness of its contextual setting and the strata of the ground below .
▼标高各异的露台,The terraces with different heights
▼通往二层的台阶,Steps to the upper terrace
▼室外连廊,The connection of terraces
▼檐下空间望远山,View the mountains from a under canopy terrace
▼室内中庭,The atrium
总体布局:半围合式庭院布局
Configuration: A semi-open courtyard layout
面向北侧的花园景观,建筑采用半围合式庭院布局,包含餐饮、商店、展览、卫生间和园区管理等日常功能。建筑户外设有多个通廊、台阶和平台,形成了丰富的步行空间体验,让游客与建筑之间产生自然而积极的互动,同时也提供了观赏公园的多重视角。之于花园,建筑北低南高的态势也建构了一种和谐。
▼大地之痕的意向,The image of a fissure of the earth
▼由二层露台俯视庭院,Courtyard view from the upper terrace
▼内庭院夜景,Night view of the courtyard
▼檐下空间与庭院,Under canopy space and the courtyard
▼玻璃花房夜景,Night view of the greenhouse
▼玻璃花房的蘑菇柱吗,The mushroom like column in the greenhouse
A central courtyard defines the heart of the complex, as daily activities from catering and shopping to exhibition display and property management are set out in rational and intuitive layout. The outdoor passages, steps and terraces interspersed between the built spaces create a rich walking experience, stimulating not only the interaction between tourists and the building, but also providing multiple perspectives for viewing the Garden. In summary being a poetic composition of harmony between a restored landscape and iconic architecture.
▼沿道路的南立面,South façade along the road
▼室外露台与花园,Terraces and the garden
▼西北角夜景鸟瞰,Aerial view from the northwest
▼首层平面,First floor plan
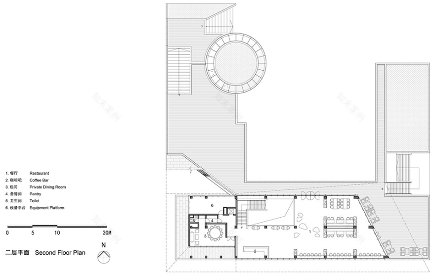
▼二层平面,Second floor plan
▼立面图,Elevations
▼剖面图,Sections
项目名称: 七色山矿坑花园游客中心
设计方:UUA建筑师事务所
项目设计&完成年份: 11/2017-03/2019
主创建筑师: 李泳征,李其郅,姜腾
项目建筑师: 姜腾
设计团队:姜腾,Tim Mason,王发路,邓亮,陈立业,吕延锋,王玮
项目地址: 山东省青岛市平度市
建筑面积: 1700平方米
摄影版权: 金伟琦
客户: 青岛宝翠园林发展有限公司
施工图设计: 青岛海川建筑设计有限公司
景观设计: 青岛景格创意设计有限公司
施工方: 江苏儒林建筑工程有限公司
Project name: Qiseshan Quarry Garden Visitor Centre
Design: United United Architects
Design year & Completion Year: 11/2017-03/2019
Leader designer: Yongzheng Li, Qizhi Li,Teng Jiang
Project Architect: Teng Jiang
Design Team: Teng Jiang, Tim Mason, Falu Wang, Liang Deng, Liye Chen, Yanfeng Lyu, Wei Wang
Project location: Pingdu, Qingdao, Shandong
Gross Built Area: 1700 sqm
Photo credits: Weiqi Jin
Clients: Qingdao baocui Garden Development Co., Ltd
Construction Drawing: Qingdao Haichuan Architectural Design Co., Ltd
Landscape: Qingdao Jingge Landscape Design Co., Ltd
Contractors: Jiangsu Rulin Construction Engineering Co., Ltd
客服
消息
收藏
下载
最近
































