查看完整案例

收藏

下载
该项目场地南北宽约7米,东西纵深36米。委托人追求简单的房屋布局,希望在场地南侧拥有一片阳光充足的室内外过渡空间。
The land is 7 meters wide in north and south 36 meters deep in east and west. It’s a strip of land. However, the clients hope simple layout and they’re paticular about the link of inside and outside in south where we can get light.
▼建筑外观,external view of the house
▼入口区域,entrance of the house
项目团队听取客户的建议将空间向北拉伸,创造了狭长的房屋布局。除此之外,还在场地南侧打造了一个内部庭院。张牙舞爪的树枝、青苔、石块与钢筋混凝土墙和木制台阶一起,构成了一幅极具日本特色的风景画。在这间如诗如画的屋子里,住户可以静静感受时间的流逝、四季的变换。
▼入户庭院,the courtyard
▼庭院细部,the courtyard details
So I pull the house to north and I made simple long and narrow layout. Besides, I made an inner court in south. I imitate fna-ishi and useless small trees by limple against a backdrop of RC wall by circular wooden. It’s like a picture when we see inside of the house. The clients can enjoy the change of time and seasons inside of house. Because the house is like a picture which adopt nature well.
▼从起居空间看向庭院,view from the living area to the courtyard
▼起居空间,the living area
▼空间细部,details
▼场地布局,layout
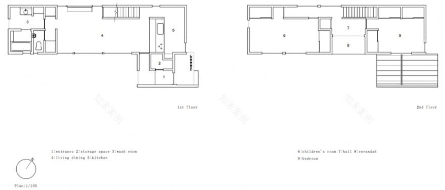
▼一二层平面,first and second floor plan
▼立面&剖面,elevation and section
Construction:built of wood
Number of stories:2
Gross area:102.65㎡
Location:Shiga/Japan
Completed date:2019.9
The name of the photographer is “Yuta Yamada”
客服
消息
收藏
下载
最近














