查看完整案例

收藏

下载
建筑位于一个安静的新建居民区中。这里三面环街,其中两条为人行道,居住环境舒适。
The house is in a new residential area. It’s a quiet residential area. It’s a favorable area became three sides are surrounded by streets, moreover, two of them are sidewalks.
▼建筑外观,external view of the house
房子的形状为简洁的长方形,建筑师将其设置在了基地中央,在其余地方种上了许多小树和灌木,创造出模糊的边界。随着时间流逝,植被生长到街道上方,这种模糊感将更加强烈。同时,这些绿色植物也可以为房屋主人带来更加舒适的生活环境。
The shape of the house is a simple ractangle, and I arranged it at the middle of the area. I planted useless small trees and undergrowth in free space, and I made a nubilous border line. These greens ambiguate the line more as time passes because they cross the frontier into sidewalks. Moreover, the clients can live pleasanter life as I surround the house by useless small trees.
▼房屋周围种有小树,将创造舒适的生活环境,small trees are planted around the house, which would create favorable live space for the people
窗户是项目室内最具特色的元素。房屋正面的开窗连成一条直线,让人可以充分感受到室内外空间的连接。设计将自然带到了建筑内部,住户即使身处室内,也可以体验时光流转,季节变迁。
The most addresses inside the house are by the window. And the openings are the ahead of lines of flow, so we can feel the connection between inside of the house and outside of the house. This house takes in the nature well, so the clients can the change of the time and seasons even if they are in the house.
▼入口空间,一侧为厕所和储藏室,entrance with toilet and storage on one side
▼起居室,大面积开窗将自然室外景观带到室内,living area, large windows blur the boundary of interior and exterior
▼住户在室内可以感受到室外的变化,people could feel the changes of time inside the house
▼餐厅,dining space
▼壁炉,增添生活氛围,fireplace enhance the warm living experience
▼二层书房,study on the second floor
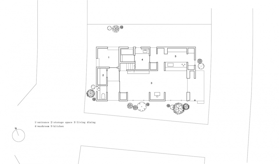
▼一层平面图,first floor plan
▼立面和剖面图,elevation and section
Construction: built of wood
Number of stories : 2
Gross area: 108.38㎡
Location: kyoto/Japan
Completed date: 2018.10
Photographer: Yuta Yamada
Company: HEARTH ARCHITECTS
Architect: Yoshitaka Kuga
Address: 2-4,Shoei,Minakuchi-cho,Kouka-shi,Shiga-ken,528-0015,Japan
Phone: +81-748-60-7410
Fax: +81-748-60-9671
Email:
客服
消息
收藏
下载
最近















