查看完整案例


收藏

下载
该住宅位于名古屋城附近的一处场地。客户的主要需求包括增加两个停车位和一个宽阔的、可供露天烧烤的露台。基于有限的场地面积,建筑设置了底层架空柱。之后的设计重点在于在保证露台尺度的同时维持住宅的私密性,同时为业主的三个年幼的儿子提供未来的居住空间。
The house was planned on a site near Nagoya Castle. Clients’ main requests were two or more parking spaces and a large terrace where family could enjoy barbecue. Piloti was inevitable from the size of the site. After that, how to secure a large terrace with privacy and a future children’s room for the three young sons was a major issue in this plan.
▼住宅外观,exterior view
▼底层架空柱, Piloti was inevitable from the size of the site
▼外部楼梯入口,external staircase
▼楼梯细节,staircase
▼走廊,corridor
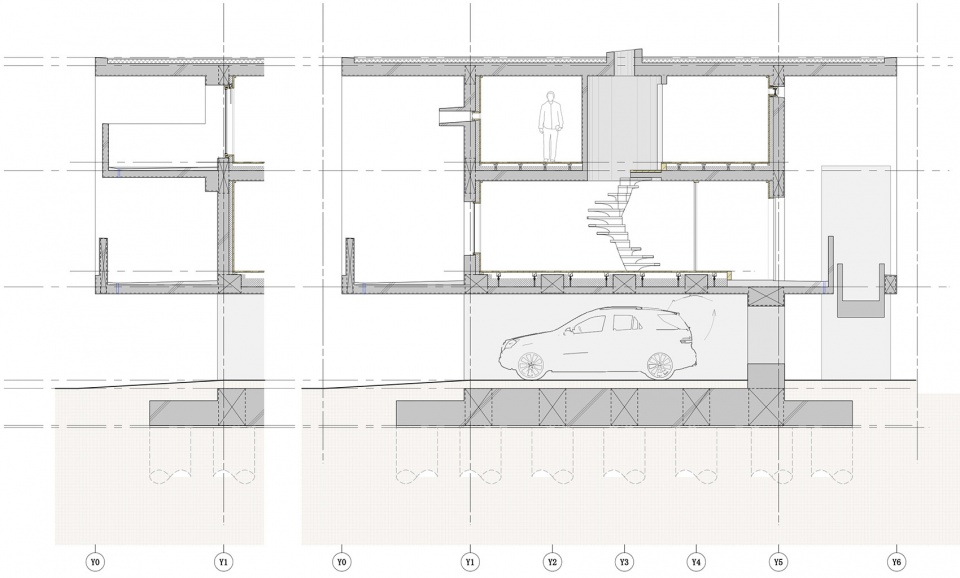
建筑师将楼梯设置在住宅的中央,以实现最短的连接路径。构成楼梯的木制踏板均是单独由机器加工而成,最终堆叠成一座旋转楼梯,成为住宅中的一处显著存在。
▼剖面图,section
The plan I found placed the stairs in the center of the house for the shortest sequence. Therefore, the staircase is at the center of the house, so it has a more iconic design. One step at a time, the blocks of wood were machined out and piled up into a spiral staircase.
▼外部露台空间,the outdoor terrace
▼室内旋转楼梯,spiral staircase
▼餐厨空间,dining room and kitchen
▼家具和灯具细部,furniture and lighting fixture details
厚重的架空柱支撑着露台空间,露台上方是悬臂式的阳台——它们共同为建筑赋予了粗野而纯粹的混凝土外观。
By making the thick walled columns in Piloti and the balconies protruding on the terrace, I created a brutal architecture that can only be made of concrete.
▼悬臂式的阳台,the balconies protruding on the terrace
▼阳台和露台细节,balconies and terrace details
▼立面细节,facade partial view
▼入口门细节,door details
▼门铃和信箱,doorbell and the mail box
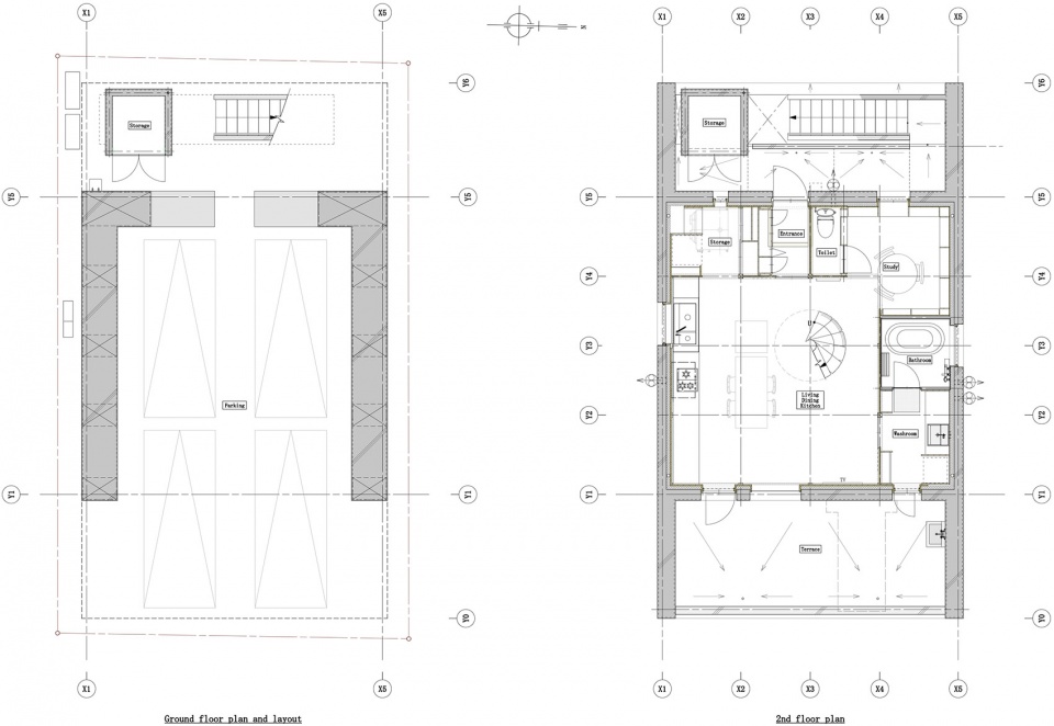
▼一层和二层平面图,ground floor plan & second floor plan
▼三层和屋顶平面图,third floor plan & roof plan
▼立面图,elevations
Project Name: Shironishi House
Architecture Firm: Tomoaki Uno Architects
Website:
Firm Location: Nagoya, Aichi Pref, Japan
Completion Year: 2015
Gross Built Area: 105.58m2
Project location: Nagoya, Aichi Pref, Japan
Lead Architects: Tomoaki Uno
Photo credits: Tomoaki Uno
客服
消息
收藏
下载
最近































