查看完整案例


收藏

下载
该项目的委托方是一位中年单身男性。设计团队考虑到客户未来的婚恋计划和其它相关需求,历经一年终于找到了满足条件的项目场地。建成后的住宅位于名古屋以东约20分钟车程的地方,立于一座宽8米、深28米的临街缓坡之上。基于对客户的第一印象,团队决定将住宅打造得精致且优雅。最终,他们从日式神社建筑中得到启发,把所有元素都整合到了细小的柱子和横梁之中。
▼项目概览,overall view
▼立面细节,facade details
The client is a middle-aged single man. We have a budget plan for a future marriage. It took about a year for the site to meet the client’s requirements. The site is a quiet residence about 20 minutes east of Nagoya by car. The site was a gentle slope with a frontage of 8m and a depth of 28m. I decided to make it elaborate and elegant from the impression of the client. In the end, I took the hint of the Japanese architectural shrine and proceeded with the plan. It was very difficult to incorporate all the elements into thin pillars and beams and deliver them rationally.
▼起居空间有着整面的落地窗,the living space has a floor-to-ceiling window
▼起居室一角,a corner of the living space
▼全木质元素的天顶、墙壁和桌椅,ceiling, walls and tables and chairs with all wooden elements
▼走廊空间,the corridor space
▼水槽,the sink
▼门与柜体,the door and cabinet
▼细部,details
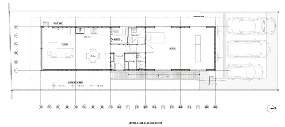
▼平面图,plan
▼立面图,elevations
▼剖面图,sections
Project Name:Yomogidai House
Architecture Firm:Tomoaki Uno Architects
Completion Year:2018
Gross Built Area:82.80sq.m.
Project location:Nagoya, Aichi Pref, Japan
Lead Architects:Tomoaki Uno
Photo credits:Ben Hosking
客服
消息
收藏
下载
最近

















