查看完整案例


收藏

下载
位于伊斯坦布尔的第一座土耳其啤酒厂是由博蒙提兄弟在一百年前打造的。如今,这座占地近2000平方米的啤酒厂被Lagranja Design改造成了一家名为“平民主义者”的精酿啤酒厂和大型餐厅。设计团队旨在通过此项目让顾客置身于一种民众对政治问题群起反抗的精神氛围之中。
Almost 2.000 square meters of the very first Turkish brewery, released in Istanbul by the Bomonti brothers one hundred years ago, have been rehabilitated by Lagranja Design. Turned into a craft brewery and a large restaurant, The Populist aims to recall the disobedient atmosphere lead and created by the crowds against political issues.
▼项目概览,overview
除了室内装饰之外,该项目的内容还包括摄影和平面设计、定制家具设计和固定装置设计等。空间中的所有元素,共同构成了一种反映土耳其政治与社会现实的独特概念。所谓抗争精神,反映在酒厂内部一种融入啤酒消费的、切实而引人瞩目的审美风格之中。受20世纪美国禁酒令时期的启发,设计团队将那些激人奋进的口号通过粉刷、粘贴和霓虹灯牌等形式呈现在墙壁、菜单及餐巾纸上。入口处,6个巨型高架啤酒罐被陈列在一个双向玻璃盒子里,橙色大众老爷车里的dj站用热情的音乐欢迎着啤酒爱好者的到来。铜酿酒屋和发酵不锈钢罐,是有着扩音器雕塑和传统绿松石瓷砖吧台的第二个空间的焦点元素。
Far from being just plain decoration, The Populist Brewery is made of a series of projects ranging from photography and graphic design to custom made furniture and fixtures. All of them weave a unique concept across the space within a political and social Turkish reality. Protest is reflected in a tangible and impressive aesthetic, friendly involving the beer consume. Inspired by the 20’ American Prohibition period, the creative concept shows up in walls, menus and napkins as powerful slogans, whether painted, glued or neon-light-made. Right at the entrance 6 enormous high-raised beer tanks exhibited in a 2 ways glass box and a dj station set in an orange vintage Volkswagen van welcomes the beer drinker. The copper brew house and fermentation stainless steel tanks are the main focus of the second space which hosts the megaphone sculpture and an impressive traditional turquoise tile made bar counter too.
▼项目入口,the entrance
▼6个巨型高架啤酒罐被陈列在一个双向玻璃盒子里,橙色大众老爷车里的dj站用热情的音乐欢迎着啤酒爱好者的到来,6 enormous high-raised beer tanks exhibited in a 2 ways glass box and a dj station set in an orange vintage Volkswagen van welcomes the beer drinker
▼霓虹灯牌标语,neon sign slogan
在餐厅,有高挑的地板、古旧的黑砖和由砂浆罐改造而成、悬于“皮德”烤箱之上的室内阳台。底层空间通过8米的螺旋楼梯与一楼相连,空置的旋转中轴被打造成了一个冬季花园。犹如温室玻璃的水晶天花板,与外部混凝土、各种植被和户外家具一起,在小型音乐厅旁创建了一个舒适的休闲区域。
Providing a lofty floor, an old dark brick and mortar tank is converted into an indoor balcony overlooking the “pide” oven based in the forth area. The ground level is connected with the first floor by an eight meter spanning spiral staircase which recreates a winter garden. Reminding a greenhouse crystal ceilings, exterior concrete and a variety of vegetation and outdoor furnitures create a cozy area besides a little music hall.
▼餐厅的一二层空间通过旋转楼梯相连,the first and second floors
of the restaurant are connected by a spiral staircase
▼犹如温室玻璃的水晶天花板,the greenhouse crystal ceilings
▼俯瞰首层空间,overlooking the ground floor space
这座十九世纪末期工厂的三层楼在被划分为六个区域的同时,仍拥有一个共同的主题:精酿啤酒。每个区域不仅有自己的特色,还作为独特综合体中的单一空间而独立运行。展现了伊斯坦布尔多元市民文化的大型摄影项目,和许多历史文献一起丰富了酒厂室内的展览空间。除了平面设计和摄影作品,一些元素也经过特别设计以将空间与新的叙事联系起来。喇叭状的装饰灯、瓶子、甚至是巨型的麦克风雕塑都给访客带来了一种身临其境的体验。
The three floors of the late XIX century factory are organized in six areas sharing the same hero: craft beer. To serve the cause each of them has its own personality, working as single spaces within a great unique complex. A wide photography project portraying Istanbul’s multicultural citizens and several historical documents complete the show. Beyond graphic and photographic visual evidences, other elements have been designed in order to tie the space with its new narrative. Decorative lighting shaped as megaphones, bottles and even a giant megaphone sculpture inject realism and provides an immersive experience to the visitor.
▼半露天餐厅区域挂有展现了伊斯坦布尔多元市民文化的大型摄影作品,the semi-open-air dining area features large photographs that showcase Istanbul’s diverse civic culture
▼开阔明亮,open and bright
▼摄影作品及宴会桌细部,photography and banquet table details
Lagranja Design试图在最大程度上保留工厂原有的墙壁和天花板。斑点、折痕和裂缝虽仍可见,但都经过了细微的修复。崭新的布艺饰品虽然只装点了小部分空间,但仍然成功地吸引了顾客的注意。经历多年弃置后得以翻新的博蒙提工厂,旨在成为伊斯坦布尔杰出的餐饮中心。同时,这也是在室内设计行业久负盛名的Lagranja Design于土耳其的首个大型建筑项目。
Lagranja Design was tried to modify the least the original walls and ceilings. Spots, creases and fissures remain at sight yet the improvements are radically new. Also dressed the space with brand new clothes that although they just cover the minimum still remain eye-catching. After many years neglected, the renewed Bomonti factory aims to become Istanbul’s outstanding F&B complex. It is the first major built project in Turkey by Lagranja Design.
▼室内空间细部,interior details
▼设计草图,sketches
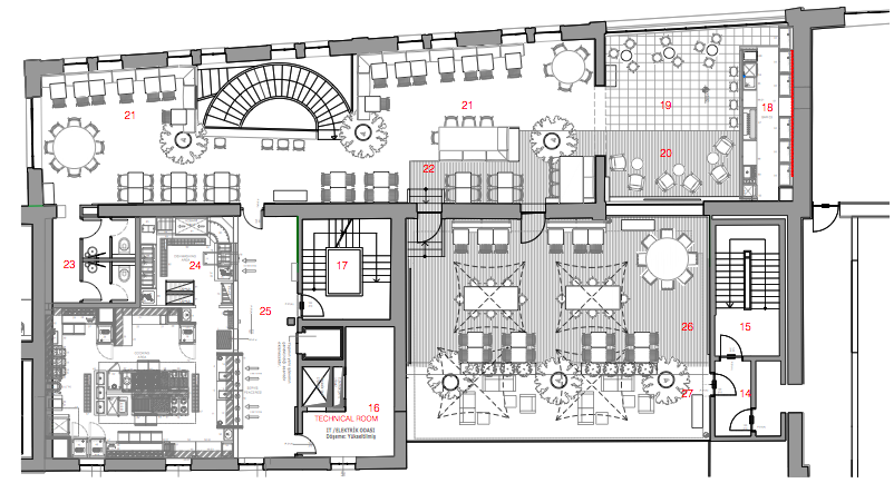
▼底层平面,ground floor plan
▼一层平面,first floor plan
客服
消息
收藏
下载
最近

















