查看完整案例


收藏

下载
此次odd设计了位于北京的一家寿司怀石料理餐厅。餐厅选址于一栋聚集了众多外媒及广告代理商的办公楼一层,与对面的宝格丽酒店共享入口处的静谧花园。夜晚来临时,极少夺目的灯光与酒店庄严的氛围相呼应,使得寿司店的入口看起来如日本茶室一般温润。
通过实木格栅造出“二道门”,压低了大厦原有大门的高度感,更遵从了日本建筑的入户尺度。首先映入眼帘的是正面剁斧面石材,作为深色背景,突出了两个包间通顶和纸格栅门的存在感。
This time, odd designed a sushi kaiseki restaurant in Beijing which is located on the first floor of a business building where massive foreign media and advertising agencies are gathered. It shares the entrance of a quiet garden with Bulgari Hotel that opposites to the building. When night comes, very few dazzling lights echo the solemn ambience of the hotel, making the entrance of the sushi restaurant as warm as a Japanese tea room.
Through the solid wood louver to create ” the second door” and lower the height of the building’s original doors, which is more in accordance with the portal size of Japanese architecture. The first thing that comes into view is the frontal chop axe face stone, which, as a dark background, highlights the presence of two private rooms with ceiling and paper louver doors.
▼入口,通过实木格栅造出“二道门”,压低了大厦原有大门的高度感,the entrance, through the solid wood louver to create ” the second door” and lower the height of the building’s original doors
置身幽静的长廊,倾斜而上的巨大格栅把人的视线自然而然往上引。竖向的线条又给空间带来了向上的延伸感,通过大胆使用木格栅的精细度,使它成为极富动态的空间。
Standing in the quiet corridor, people’s eyes will be attracted naturally by the sloping huge grille. The vertical lines with delicate scale of wooden louvers bring a sense of upward extension. By boldly using the fineness of the lattice, it became a dynamic space.
▼走廊,倾斜而上的巨大格栅把人的视线往上引,the corridor, the sloping huge grille attracts people’s eyes
▼走廊,竖向的线条给空间带来了向上的延伸感,the corridor, the vertical lines with delicate scale of wooden louvers bring a sense of upward extension
吧台是幽暗空间里的一个巨大的“和纸灯笼”,柔和的材料和暖光带来的明亮色让整体空间不至于沉闷。吧台背景是素雅的浅金色壁纸,绿色和白色的和纸“推拉窗”让整体背景不落单调。垂下的竹帘代替日本传统数寄屋中“小壁”的位置,给背景增加了层次感。悬空挑出的吧台吊顶投影在客位,体量和高度上能给客人带来仿佛被包裹的安全感。上层吊顶是外部格栅带出的虚空间,作为一个大体量的顶部存在。
The bar counter is a huge “washi lantern” in the dark space, and the soft materials and bright colors brought by the warm light make the overall space less depressing. The background of bar counter is simple but elegant shallow golden wallpaper, green and white washi “sash window” make the overall background not monotonous. The hanging bamboo curtain replaces the “small wall” in the traditional Sukiya, adding layering to the background. The suspended ceiling of the bar is projected onto the seats, giving the guests a sense of security as if they were wrapped up in volume and height. The upper suspended ceiling is a void space brought out by external louvers and exists as a large volume roof.
▼吧台,采用柔和的材料和暖光,the bar counter with the soft materials and bright colors
整体空间挑高最高的部分向上的延伸感非常强。设计斜切造型的格栅,一方面是因为走廊过窄,可以避免压抑。另一方面也巧妙地和窗外的景观做呼应。四人包间内部空间遵从了传统“数寄屋”的建制,墙面上的小景观,增添了空间的趣味感。八人包间是一个区别于传统的空间造型。吊顶和背景墙都采用了弧面的造型。小壁用透光的和纸亚克力代替,融入了现代的材料,也不显得突兀。整体空间氛围由此衬托得干净素雅。
The highest part of the overall space has a very strong sense of upward extension. The reasons for designing the beveled grille are to avoid depression because of the narrow corridor and skillfully echo the landscape outside the window. The interior space of the four-person private room follows the construction style of the traditional “Sukiya”, and the small landscape on the wall adds a sense of interest to the space. The eight-person private room is a different from the traditional spatial modeling. The ceiling and the background wall are curved. Small walls are replaced by the transparent washi acrylic, and are integrated with modern materials. The whole space atmosphere foils clean simple but elegant from this.
▼八人包间,吊顶和背景墙都采用了弧面的造型,the eight-person private room, the ceiling and the background wall are curved
遵从了传统的建制,又通过现代的手法做出新的诠释。从镜中映照出的木格栅门又是另一幅镜中画,当客人望向镜子时能带来意外的惊喜。
Follows the traditional construction style, and makes a new interpretation through the modern way. The wooden grille door reflected in the mirror is another picture in the mirror, which can bring unexpected surprises to guests when they look into the mirror.
▼八人包间卫生间,镜面映照出木格栅门,
the restroom of the eight-person private room, the wooden grille door is reflected in the mirror
巨大的落地镜和不规则的实木板,和石材一起营造了和外部走廊统一的氛围。外观看去,整体和入口的景观形成了和谐的统一。
The large floor-to-ceiling mirrors and irregular solid wood panels, together with the stone, create a unified atmosphere with the external corridor. Looking from the appearance, the whole and the landscape of the entrance form a harmonious unity.
▼公共卫生间,设有巨大的落地镜和不规则的实木板,
the public restroom with large floor-to-ceiling mirrors and irregular solid wood panels
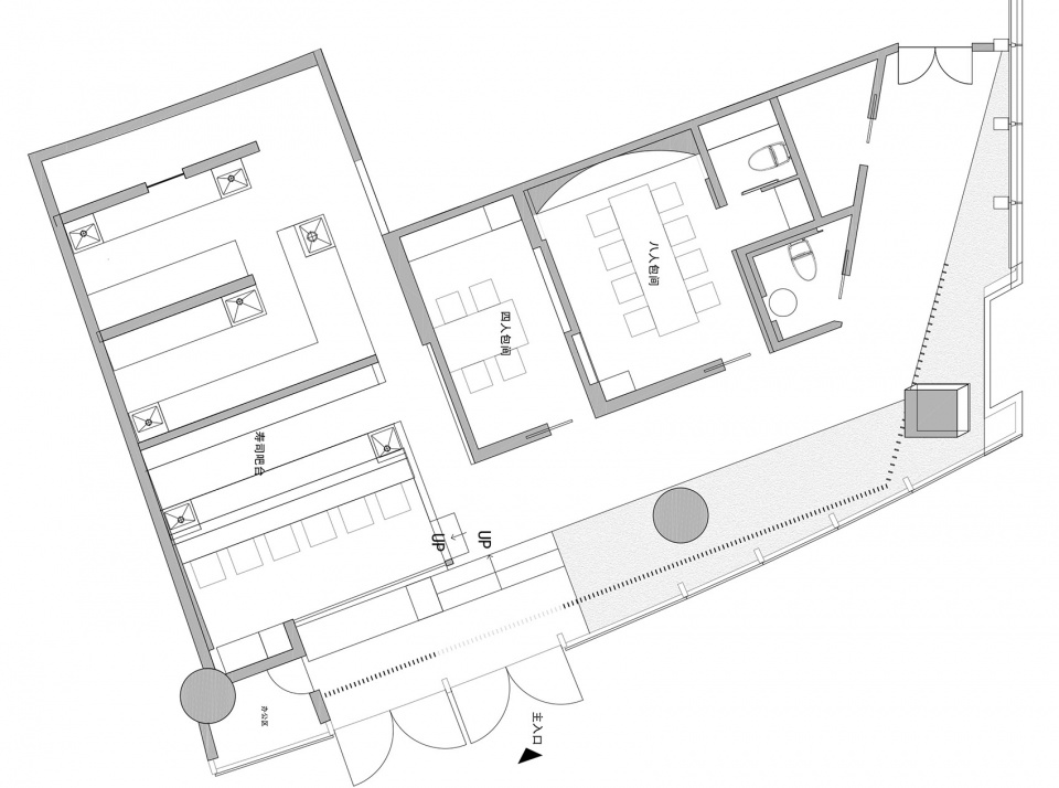
▼平面布置图,layout plan
项目名称: “鮨然”日本料理
建筑事务所:odd (okamoto deguchi design)设计事务所
项目建筑师: 冈本 庆三 \出口 勉\ 伍卓赵艺\张艺萌
项目地点: 北京市朝阳区启皓北京
完成年份: 2019
建筑面积: 126㎡
建筑主要材料:艺术肌理漆、柚木、石材、木饰面、和纸
project title: Zen Japanese Restaurant
Architecture Firm: okamoto deguchi design
Architect: Okamoto Keizo\Deguchi Tsutomu\ Wu Zhuozhaoyi\Zhang Yimeng
Project Location: Floor 1, Chaoyang District, Beijing.
Completion Year: 2019
Gross Built Area: 126m2
Main Material: Texture Painting, Teak, Wood Finish, Japanese Paperfilm
客服
消息
收藏
下载
最近










