查看完整案例

收藏

下载
“城中城”(Town In Town)距离曼谷市中心约15公里,是位于Sriwara路上的一个著名商业区,周围分布着众多社区和公司。该项目的业主是几位年轻的创业者,他们选择了一座建造于2014年的四层高的半独立建筑,希望将其改造为能够适应当下需求的办公场所。
About fifteen kilometres from central Bangkok, “Town In Town” is a wellknown business area on Sriwara Road, surround by the great community and many businesses. At first, the layout was typical but did not appropriate to the programme. The owners are young entrepreneurs who conduct several businesses. To build their hub, they chose a four-storey semi-detached building that had been constructed since 2014.
▼建筑外观,exterior view
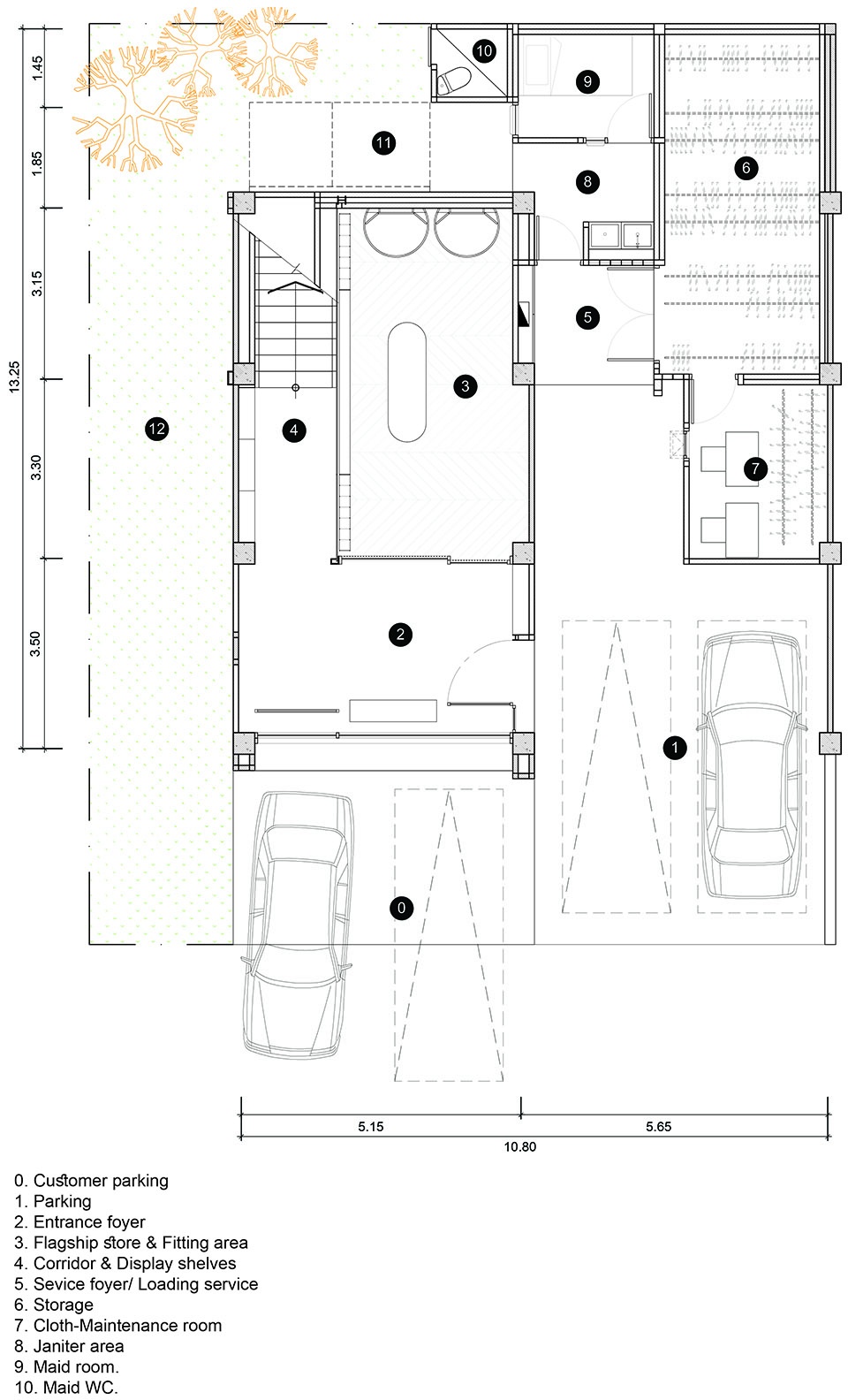
一层空间的布局根据停车场的数量进行了调整。横梁下方的空间净高约2.5米,只能用作接待空间和商店。因此设计师在这里设置了贯穿4个楼层的悬挂金属格栅,而非平坦的天花板。等候区位于化妆品旗舰店前方,同时用作退货和提取区。产品沿着走廊陈列,楼梯尽头的大门通向半露天的金属楼梯,将人们引向上方的楼层。
On the first floor, the layout was adjusted regarding the number of the car park. The clear height below the beam is about 2.5 metre is cramped for a reception and shop, so four layers of metal grids were hung instead of a flat ceiling. In front of the cosmetic flagship store is a waiting area where can be used for return and pick-up. Along the corridor is displayed by the products. Behind a big door at the end of the stair is a semi-outdoor metal staircase leading to the upper floor.
▼入口空间,entrance space
▼首层楼梯,stair on the first floor
▼化妆品旗舰店,cosmetic flagship store
▼从楼梯间望向一二层,stair leading to the second floor
▼二层展示区,display area on the second floor
▼贯穿4个楼层的悬挂金属格栅,
four layers of metal grids were hung instead of a flat ceiling
▼总监办公室,director room
“L”字型的服务区位于建筑后方,员工们可以在这里散步。同样位于建筑后部的防火楼梯经过了重新设计,使自然光得以通过。原先的楼梯被拆除,使顾客们可以围绕着服装店行走。原先的两个洗手间被隐藏进一个化妆室中。
Because the service area was packed in “L” shape behind the building, the staffs can walk around. The fire staircase at the back of the building was redesigned for letting natural light come through. By removed the previous staircase connects the second floor moreover the customers can walk around the clothing the shop. Furthermore, two toilets were shrunk into one powder room.
▼轴测示意图,isometeic presentation
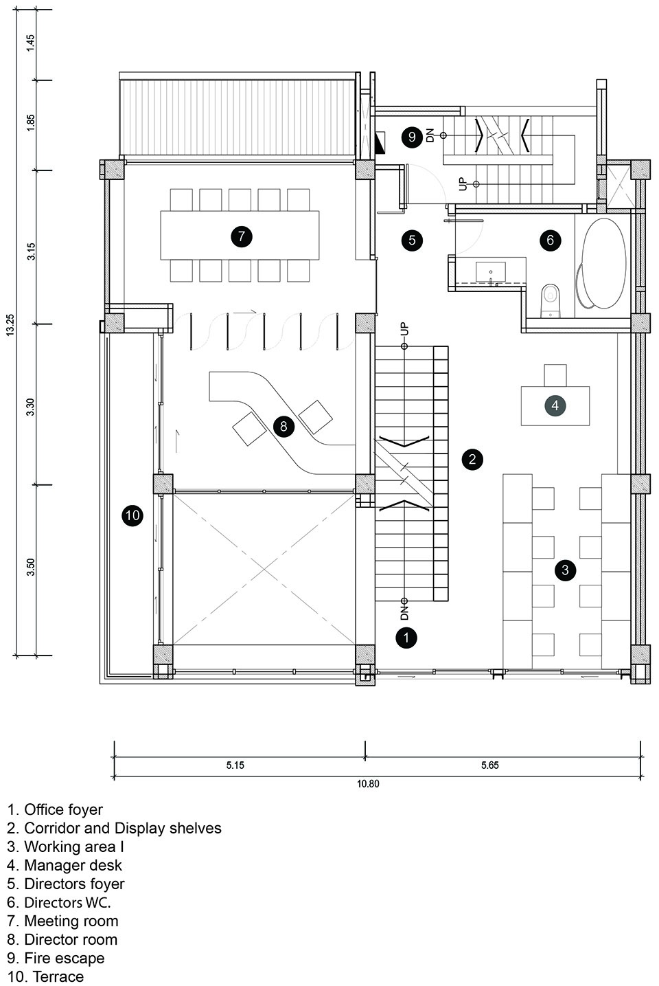
在建筑中央,纤细的框架支撑着主楼梯,增强了整个建筑的特征。在另一侧,白色的金属置物架同时具备了陈列产品和承载楼梯的作用。三层的楼板被部分移除,为下方的陈列室留出吊顶空间。中庭旁边的创始人办公室在打开门时可以直接与后方的会议室相连。悬挂在天花板上的荧光灯为工作区域提供了照明。
At the centre, the slim frames carry the main staircase and enhance a whole building. In the other side, the white metal shelf does not only display the products, but it is also the stair structure. A quarter of the third floor was cut out and left open for the showroom beneath. The owners’ working room where next to the void can connect with the meeting room at the back by keeping the door open. The suspended fluorescent pendants were hung from the ceiling, made working area light up.
▼纤细的框架支撑着主楼梯,the slim frames carry the main staircase and enhance a whole building
▼栅格和置物架细部,detailed view of the metal grids and the shelf
四层空间的后方设有茶水间、储存室和两个淋浴间。其他部分在平时被用作酒吧和办公室,员工们可以在工作期间随意地使用任何空间。此外,天花板的下方还设有一张可供小憩的床。
At the back of the fourth floor are a pantry, storage and two shower rooms. The remaining of this floor looks like it was sprit into a bar and office but in working hour staff can work in all area. Moreover, under the ceiling there is a bed for taking a nap.
▼四层空间,the fourth floor
▼茶水间,pantry
▼金属置物架, the metal shelf
▼入口夜间外观,entrance view by night
▼轴测图示意,demo diagram
▼一层平面图,first floor plan
▼二层平面图,second floor plan
▼三层平面图,third floor plan
▼四层平面图,fourth floor plan
Project Year: 2017
Project finished: 2019
Project name : The Renovation of Sriwara office
Category: Office, Showroom and shop Interior Renovation
Client: Bchu runway
Design Director: Supanna Chanpensri
Interior project: Viphada Simthamnimit
Design Team : Supanna Chanpensri, Wattikon Kosonkit, Gultida Maneewong, Aphinat Jongphianmungmat, Pompetch
Lighting design team : Supanna Chanpensri with Truelight CO.,Ltd
Contractor: WAWARA design
Project location: The District Sriwara, Bangkok
https://goo.gl/maps/5YTmrCaDgeKxqrXy5
Area: 490 Sqm
Photographer: Ketsiree Wongwan
客服
消息
收藏
下载
最近


























