查看完整案例

收藏

下载
和许多其他庆典一样,婚礼所庆祝的是从一种身份到另一种身份的转变。类似的转变常常会以游行的形式展现:在西方婚礼中,新娘首先要沿着教堂走道入场,然后再和她的丈夫经由相同的走道离场。泰国的婚礼习俗则有所不同,他们拥有一种特殊的名为“Khan Maak”的订婚游行仪式,通常是在新娘的屋外举行。新郎和伴郎团必须先通过数道“金门”或“银门”(由伴娘团拉起的绳索障碍物构成)之后才能如愿见到新娘。
Living DesignWeddings, like many ceremonies, celebrate a person’s transition from one status to another. This transition often involves a procession: in western weddings, the bride enters and walks down the aisle and later the married couple exit after again walking the aisle. Unique to Thailand is the Khan Maak, a pre-engagement procession, traditionally outside the bride’s house, where the groom and party must pass through ‘golden’ or ‘silver gates’ (string barriers held by the bridal party) in order to reach the bride.
▼项目概览,project overview
Aube婚礼场地中最具特色的一处设计便是为Khan Maak设置的游行路径,它沿着建筑的西侧延伸,最终到达订婚室。路径在保持独立性的同时也迎合了在户外游行的传统,它是对乡村道路的一种重新诠释:附近的邻居可以从家中看到新郎和伴郎团的身影,而间隔分布的立柱本身会遮挡一部分从外部观看游行的视线,同时增强了移动的感觉。
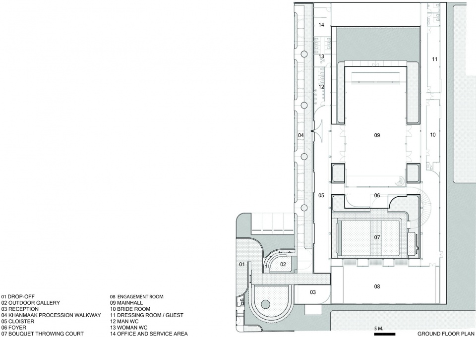
▼首层平面图,ground floor plan
The boldest design element of Aube is the Khan Maak walkway running along the western edge of the building and eventually ending in the engagement room. Here this procession is given its own space, while retaining its traditional outdoor location. This walkway is a reinterpretation of the village street where the groom and his party can be seen by neighbours viewing from their houses. The sense of movement is heightened by the screening of some spaces between columns to hide the view of the procession from the exterior.
▼从停车场望向Khan Maak游行路径,view from parking to Khan Maak walkway
▼近景,a close view
泰国的文化具有丰富的借鉴性和融合性,这一点也体现在婚礼上,例如Khan Maak游行就包含着许多来自中国和西方的婚礼元素。因此,Aube婚礼场地的设计需要具备足够的灵活性,以承载传统与舶来的各类宗教与文化仪式。在今天,泰国的婚礼也为拍摄活动提供了难得的机会。
▼订婚室示意图,engagement room drawing
As Thailand has a history of borrowing and mixing cultures, both old and new, Thai weddings use variations on the Khan Maak with Chinese elements, along with components of western weddings. A purpose-built wedding space must therefore be flexible to accommodate a variety of religions and cultures either in their pure form or with elements borrowed from other traditions. Nowadays, weddings in Thailand have become an opportunity for photographing the event as much as the event itself.
▼主厅外观,exterior view of the mainhall
基于这样的现状,该项目试图将拍摄的舞台与强调真实体验的空间结合起来。弧形的墙壁很好地模仿了摄影工作室的背景墙,犹如一系列空白的画布,呼应着从天窗投下的漫射光。同时,外墙弯曲的几何形状也带来了丰富的光影变化。
The building tries to reconcile this attitude by balancing between being a stage for the photography and a space which enhances an authentic experience. Use of white curved walls has the practical advantage of mimicking the walls of a photographic studio to be used either as a blank canvas, aided by diffused light from the skylights, or with the play of light and shadows formed by the curved geometry on the external walls.
▼立面细部,facade detail
▼通向抛花庭院夹层的走道,walkway to the bouquet throwing mezzanine
考虑到项目位于曼谷郊区,因此建筑需要和周围低矮的建筑融为一体,同时保持独立和内省性。客人在抵达场地后首先进入一条走廊,这里展示着新婚夫妇的照片。该空间充满绿植,可看作是外部环境的延伸。内部的两个主要空间是主(婚礼)厅和订婚礼堂,主厅可以容纳290位来宾,三面以U形回廊环绕,起到了隐藏交通流线和辅助空间的作用。订婚礼堂可以容纳150人,通过“抛花庭院”与主厅相隔开。
The location in suburban Bangkok has necessitated the low-rise scale and the overall layout of being a self-contained, introspective building. Upon arrival, guests wait in a gallery space displaying photographs of the couple. Literally a green room, this space acts as a transition from the outside world. The two main internal spaces are the main (wedding) hall and engagement hall. The main hall holds 290 people and sits free-standing in a courtyard surrounded on three sides by a U-shaped cloistered structure which allows for under-cover circulation and the inclusion of auxiliary rooms. The engagement hall holds 150 people and is separated from the main hall by the ‘bouquet throwing’ courtyard.
▼庭院视角,view to the courtyard
▼Khan Maak游行走廊,Khan Maak walkway
▼回廊和走廊的迎宾处,cloister and corridor welcoming area
▼主厅夜景,main hall by night
Khan Maak游行路径和隐蔽的庭院可以看做是对拱廊走道和教堂元素的重新诠释。不过,拱在此处被解构为半拱形的模块化元素,并沿着不同的轴进行了旋转,如蛇般扭动的白色混凝土天花板为建筑赋予了现代气息。在材料方面,游行路径使用了聚苯乙烯泡沫和石膏以塑造弯曲的白色结构。其他部分使用了白色砂洗面混凝土,带来雕塑般的观感。
▼拱形模块示意,element diagram
The Khan Maak walkway and cloistered courtyard could have simply been a copy of an arched walkway, or a reinterpretation of a church element. However, arches are deconstructed to half-arch modular elements and reformed after rotating on different axes, clearly giving the building a modern image, open to interpretation. The effect is a snaking ceiling of white concrete. In terms of construction elements, the Khan Maak walkway utilise expanded polystyrene foam carving and plaster to form the white curvy continuous shape, while elsewhere the sculptural look is achieved using white sand-wash finished concrete.
▼如蛇般扭动的白色混凝土天花板为建筑赋予了现代气息,arches are deconstructed to half-arch modular elements and reformed after rotating on different axes, clearly giving the building a modern image
▼天光,void
拱与曲面墙壁的主题贯穿了整个建筑,包括庭院里造型独特的楼梯——新娘将会在此抛出捧花。构成主厅外墙和回廊结构的拱相互重叠营造出动态的观感。曲线随着主厅天花板的拱形天窗按比例逐渐缩小,檐口元素被重新融入到舞台后方的墙壁上。弧形墙壁和切口搭配柔软的窗帘,营造出打动人心的纪念氛围——这同时也体现在项目的名称“Aube”(拥抱)上。
The theme of the arch and the curved wall is repeated inside the building in various forms, including the sculptural staircase in the courtyard, from where the bride throws her bouquet. The arches forming both the exterior wall of the main hall and the cloistered structure overlap each other, again creating a feeling of movement. The curves are scaled down in the cornice of the arch-shaped skylights in the ceiling of the main hall and this cornicing element is re-appropriated as the finish to the wall behind the stage. Curved walls and cut-outs, along with soft curtains, create a memorable, sensual space, which is indicated in the building’s name, Aube, meaning ‘hug’.
▼通向抛花庭院的弧形长楼梯,semi-circular staircase to the bouquet throwing mezzanine
▼楼梯细部,detailed view
▼主厅内部,interior view of the main hall
▼舞台,stage
▼室内抛花夹层,indoor bouquet throwing mezzanine
▼从夹层望向舞台,view to the stage from the mezzanine
▼订婚室,engagement room
▼楼梯细部,detailed view
▼拱形元素,arch elements
▼设计手稿,sketches
▼平面图,plan
▼拱形模块技术示意图,technical drawing
客服
消息
收藏
下载
最近
































