查看完整案例

收藏

下载
在大城市中,越小规模的项目往往拥有越高的平方米均价,因而城市出现越来越多的自助存储设施。一些开发公司选择将智能存储,智能储物柜作为公共设施投放到环境中。而REDD恰好为所有此类开发项目提供最灵活最便捷的外置存储服务方案。
▼建筑外观,appearance of the architecture
Like other mega cities, smaller sixe developments at the highest price per sqm. Are feasible only with growing numbers of self storage facilities. Some developments choose to include smart storage, smart locker as part of common facilities. REDD is providing a free standing, flexible storage solutions for all developments.
▼建筑面朝东部的高速公路,过往车辆行人皆可看见,the overall shape was studied to be large signage and visible to both inbound and outbound traffic
▼正立面如同大型广告牌,the front façade literally became a large billboard visible to half a million drivers every day
作为泰国最早建立自助仓储业务的企业之一,这家旗舰店的功能远不止于此。建筑外部设计大胆地运用视觉讲述了一个可被一瞥的故事。而建筑主体由堆叠的纸箱组成,外部包裹了一层透明的材料,给人予一种储存设施的暗示。“红色”用在主立面颜色以及品牌标识和项目名称上。红色强调了一种强烈的视觉识别,同时色调调性给人一种泰式风情。
▼建筑由堆叠的纸箱组成,the architecture is a composition of stacks of cardboard boxes
▼建筑外部包覆透明材料,the storage with a layer of transparent wrapping material
As one of the first established self storage business in Thailand, this first flagship facility have to be much more than functional. The external design boldly tells stories that can be perceived as a (drive by) glance. The architecture is a composition of stacks of cardboard boxes, with a layer of transparent wrapping material, giving a hint a storage facility. ‘Red’ is the main façade color as well as the brand identity, and project name. Red color emphasizes strong visual identity, while the hue is adjusted to give a touch of Thainess.
▼红色强调一种强烈的视觉识别,red color emphasizes strong visual identity
▼从地面望建筑,view from ground to architecture
建筑面朝东部的高速公路,整体被设计为一块过往车辆行人皆可看见的大型标识。正立面如同一块硕大的广告牌,每日几乎足有50万名司机浏览它,这为REDD提供了另一种商机。
Facing Eastern expressway, the overall shape was studied to be large signage, visible to both inbound and outbound traffic. The front façade literally became a large billboard, visible to half a million drivers every day, providing another business opportunity for clients.
▼一层的咖啡间,cafe room
▼快递区域,express areas
▼建筑采用混凝土柱和后张拉楼板,the building is constructed with concrete main columns and post-tension floor slabs
该建筑主要结构采用混凝土立柱和后张拉楼板。所有外表面都用金属型材包覆。这使得建筑足够轻便可容纳更多的物品重量。优质的隔热保温材料,使得建筑无需安装空调,因此其能耗极低。
The building is constructed with concrete main columns and post-tension floor slabs. All external surfaces are wrapped with metal sheets profile. This make the building light to allow for the weight of stored items. Sufficient insulation is provided that the building does not need air conditioning, so the building consume very little energy.
▼外表面由金属型材包覆,all external surfaces are wrapped with metal sheets profile
▼使用优质隔热保温材料无需空调,sufficient insulation is provided that the building does not need air conditioning
▼红色用在品牌标识和项目名称上,red is the color of the brand identity and project name
景观设计主要以功能导向性为主。为了满足用户在没有工作人员的情况下能够操作所有系统,建筑物地面充满了各种指示。建筑师通过将功能标识转化为设计特征以达到最优的设计效果。
Landscape design is mainly functional. The building ground is filled with instructions as users has to be able to operate all functions without staff support. Architects create efficient design by turning functional signage into design feature.
▼建筑物地面充满了各种指示,the building ground is filled with instructions as users has to be able to operate all functions without staff support
▼分析图,digram
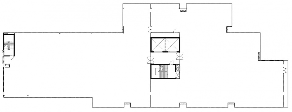
▼首层平面,first floor plan
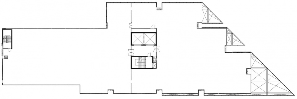
▼二层平面,second floor plan
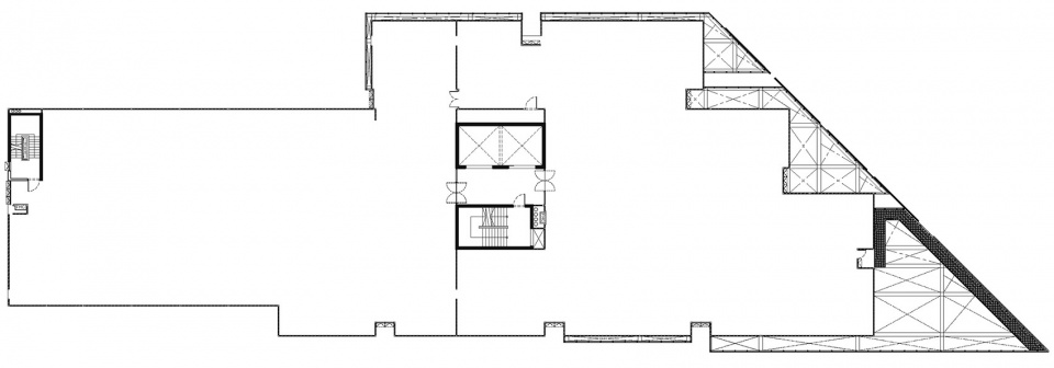
▼三层平面,third floor plan
▼四层平面,fourth floor plan
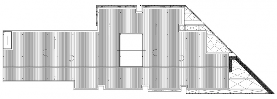
▼屋顶平面,roof plan
▼立面图,elevation
Complete Year: 2018
Built Area: 9,966 SQ.M.
Project Location: Rama9,Bangkok, Thailand
Photographer: BeerSingnoi
Lead AR: Mr. RatiwatSuwannatrai
AR Team: Mr.KittapongMaphunthana
Mr. Natthawat Rakkiratikun
Interior Designer: Ms. WannapatJenpanichkarn
Lighting Designer: FOS Lighting Design
Budget: 100M THB
V&P EXPAND METAL: Expand metalFaçade
SJJ Group: Metal sheet Façade and roof
KONE: Elevator
Steel Storage: Self storage system
L&E: Light Figure
A&G Engineering: Aluminum Door & Window
客服
消息
收藏
下载
最近























