查看完整案例

收藏

下载
FINE FAN是FINE品牌旗下集杂货铺与餐厅于一身的新店铺,位于上海老洋房区的乌鲁木齐中路上。店内装饰采用复古雅致的胡桃木,呈现老上海旧商铺的历史感。设计师运用巧妙的空间处理,在窄小的两层店堂内容纳货品展示与就餐和厨房区域。在这家小而精致的店铺里,每一处角落都值得细细品味。顾客一进店门就可见从地板直通二楼楼顶的展示架,颇似《哈利波特》电影中的Ollivanders魔杖店。木架隔层大小不一,形制多样,显得丰富有趣而不凌乱。牺牲入口处的宝贵空间设计了这些展示架是为了能陈设更多的商品,让顾客上楼用餐或在入口处等候时可以仔细欣赏,同时也打通了上下两层空间,使整个店铺成为一体。
▼空间概览,overview
FINE FAN, a new store of the FINE franchise, is located among old villas on Wulumuqi Road in Shanghai. It is a zakka as well as a canteen, decorated with walnut wood reminiscent of the 1930s Shanghai. By ingenious design of the space, the tiny two-storeyed store accommodates enough shelves for products display as well as dining area and a kitchen. Small but exquisite, every detail in this store deserves your attention. The first thing one perceives upon entering the store is the set of tall shelves from the ground to the ceiling of the second floor, like the inside of Ollivanders in Harry Potter films. The shelves of various sizes and shapes are designed, at the expense of the precious space at the entrance, to display more products for customers to appreciate while going upstairs or waiting for takeaways. At the same time, the two storeys are integrated into one whole.
▼店铺外观,exterior view
▼一进店门就可见从地板直通二楼楼顶的展示架,the set of tall shelves from the ground to the ceiling of the second floor
为有效利用空间,楼梯下方隐藏了厨房与储藏室,餐食由菜梯直接运送至二楼就餐区。二楼东西向打通,选用老式翻窗保障良好的通风,形成上下、前后空间的开放交流。店铺的装饰和定制桌椅均采用全实木的胡桃木,仅用开放漆进行简单处理,以保留胡桃木漂亮的颜色与肌理。深色的实木营造出一种复古的质感,并且,经历时间的积累和人的触摸,木头颜色会显得越来越漂亮。边角处经过打磨,加入柔和的花线,使深色的木材不显厚重。
In order to save space, the kitchen and storage room are hidden under the stairs. Dishes are sent to the dining area upstairs via a dumbwaiter. Old-styled awning windows are installed on the second floor to ensure good ventilation. The whole space of the store appears open and communicative. Solid walnut wood is used for the decoration of the store as well as all the tailor-made tables and chairs. Painted with simple wax oil to preserve its elegant grain and colour, the wood gives an air of retro-styled solidness and will increase its beauty through time and touch of human hands. At the same time, the tone of the dark colour is lightened by polishing and mouldings.
▼由楼梯上至二层就餐区,2nd floor dinning area
▼装饰和桌椅均采用全实木的胡桃木,solid walnut wood is used for the decoration of the store as well as all the tailor-made tables and chairs
▼老式翻窗保障良好的通风,old-styled awning windows are installed on the second floor to ensure good ventilation
店铺由老式住宅楼改造,为营造旧杂货铺的感觉,设计师保留了部分原始墙面,并露出砌块砖和钢筋,楼梯处也保留了原始楼板的肌理。天花板也按照同样的原则进行处理,先涂腻子再铲除,以遮盖管道的开槽痕迹,但保留了原始水泥板的风貌,形成特殊的肌理。一楼入口处采用老上海建筑中常用的水洗石地面,以白色为主基调,映衬突出深色的木材,使空间显得更为亮堂。店内悬挂大量错落有致的吊灯,每一盏都经过精心挑选,样式独特。
The store is renovated from an old residence. Some parts of the original walls are preserved to expose concrete blocks, rebar and slabs. The ceiling is renovated according to the same principle: apply putty then remove it in order to cover traces of pipes but keep the texture of the original slabs. The entrance of the ground floor is paved with washed stones common in old Shanghai architecture. With white as the main colour, it contrasts the dark wood and brightens the space. A large number of pendant lamps of various styles are hanging unevenly from the ceiling.
▼保留了部分原始墙面,并露出砌块砖和钢筋,some parts of the original walls are preserved to expose concrete blocks, rebar and slabs
▼老上海建筑中常用的白色水洗石地面,washed stones common in old Shanghai architecture
▼原始的墙面、天花管道、错落有致的吊灯,original walls, ceilings, and pendant lamps
▼剖面手绘图,section sketches
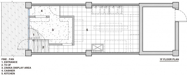
▼一层平面图,1st floor plan
▼二层平面图,2nd floor plan
项目名称:Fine Fan
设计方:上海彦文建筑工作室
项目设计 & 完成年份:2019
主创及设计团队:朱彦文、王媞
项目地址:中国上海市乌鲁木齐路
建筑面积:63平方米
摄影版权:田炳珉
客户:上海燊席餐饮管理有限公司
Project name: Fine Fan
Design: Atelier A
Design year & Completion Year: 2019
Leader designer & Team: Yanwen (Lily) Zhu, Rachel Wang
Project location: Wulumuqi Road, Shanghai, China
Gross Built Area: 63 m2
Photo credits: Tian Binming
Clients: Fine Café and Canteen
客服
消息
收藏
下载
最近
















