查看完整案例

收藏

下载
昆山市政务服务中心由四栋塔楼和连接塔楼的裙房围合而成,建筑面积10.2万平方米。汇集了二十多家市级委办局,为全市居民、企业提供包括民生、社保、税务、公安、出入境、公共资源交易、投资建设、市场准入、社会综合管理等一站式服务。
Kunshan Government Affairs Service Centre consists of four towers and a podium, with a total area of 102,000 sqm. It accommodates over 20 municipal offices, and provides a whole range of one-stop services including livelihood, social insurance, taxation, public security, border entry, public resource exchange, investment and development, market entry, general administration, and etc.
▼建筑外观,Appearance of the Building
自项目2009年立项、2011年建筑方案后期阶段开始介入设计以来,历时多年,期间经历了各种国家政务政策、城市综合服务管理定位、使用功能置换、新老建筑规范交替等等的调整变化。
Since the project’s inception in 2009 and the interior design’s involvement in 2011 at the end of the architectural schematic design, years have passed and the project has experienced a number of changes including state policy, re-positioning of city’s general administration, functional adjustment, and implementation of new building code.
▼内庭院地下采光景观楼梯间出口,Natural Light Stair Entrance In the Courtyard
设计者回望的视线和思考已从之初的设计本体抽离开,更为关注的是于当下快速变化的时代背景之下,城市公共职能的管理者和公民空间以及被服务对象之间的决策、激发、引导、契合关系,活动对象由此获得的身体与精神层面的愉悦感和被尊重感,藉民生活动推动城市的活力。
The designer’s retrospect has since departed from the initial main body of design, and shifted to the decision-making, motivation, guiding, and integration between the city administrators of the public functions, the civic spaces, and the people who are served, under the backdrop of this changing era. Attention will also be given to the sense of pleasure and respect the users receive, and the city life which is enlivened by civic activities.
▼社保办理A门厅,Social Insurance Hall-A
▼社保办理B门厅,Social Insurance Hall-B
▼一站式政务服务窗口,One-stop Shop for Affairs Business
原点 | Origin
设计离不开时代大背景特征,各种不确定性也是时代变化的映射,比如随着网络和社交媒体的变化带来的工作生活方式变化以及政府机构改革的变革,早期规划的分类、数量、工作流程都会被打乱重置。包括专业上的建筑防火规范、防排烟规范的更新带来的连锁反应都不是设计之初可以预料到的。
No design is separable from its time, and all sorts of uncertainties reflect the changes in time. For instance, the style of life and work has been reshaped by changes in internet and social media as well as the reform in government offices, and as a result, the classification, quantity, and procedure of the early planning were all subject to adjustment. In particular, the updating of fire code and smoke exhaust regulation caused a chain reaction which could by no means have been predicted in the beginning of design.
▼服务区立面局部,Service Area Exterior Partial View
▼立面细部,facade detailed view
光线 | Light
光线经常被人片面理解为光影和明暗,其实光定义的是形状、颜色、距离、大小等信息,光线体现秩序,光线带来的情绪和身体感知,否则John.Lobell那本著名的《Between Silence and Light》,就变成了“Shade and Light”。光线本身并没有太抽象的意义,需要通过介质疏理、约束,让其成为空间必要的非物质性元素进入。
▼报告厅外侧走廊,Corridor outside the Lecture Hall
▼报告厅,Lecture Hall
Light is usually connected with only shadow and shade, while it actually defines shape, color, distance, and size. Light shows order and brings about mood and sense, otherwise, John Lobell’s famous Between Silence and Light would have become merely Shade and Light. Light itself doesn’t possess spiritual meaning and it needs a medium for streamlining and demarcation before it can become an integral yet nonmaterial part of a space.
▼资源交易大厅等候区,Waiting Area of Public Resources Trading Center Hall
▼市民文化展廊,Civic Culture Exhibitions Corridor
▼室外直达楼梯,Outdoor Staircase
项目本身作为大型公共服务职能空间,“阳光”、“开放”已经是成为城市公共性空间必要的精神气质和某种隐喻。在B2层至2层的通高空间两侧增设格栅处理中,西侧是考虑遮阳和弱化邻楼体量带来压迫感,东侧是将观察视线压低至建筑围合的竹林莲池水景庭院景观,让昆山古籍《玉山雅集》中所描述的“舍前有修竹,舍后有芙蕖。掇莲置豆,清风座隅。倦来聊掩窗,步出临前除。”的画面完整呈现于预设的框景中。
The project consists of many public service spaces so inevitably ‘sunlight’ and ‘openness’ were to become its spirit and symbol. Gratings were added to the perimeter of the atrium spanning B2 level to second floor, shading sun and alleviating the pressing neighboring building to the west, and guiding sight lines into the water court with bamboo and lotus to the east. This courtyard was meant to recapture in a set frame the scene as described in Yushan Yaji, an ancient book in Kunshan: ‘There are bamboo trees in front of the house, and lotus in the rear. Picking lotus seeds in the breeze by the seat. Closing sash upon weariness, walking out onto stone steps.’
▼公共资源交易中心大厅,Public Resources Trading Center Hall
同时可以减少地下空间和室外转换时的光比过大产生的“暗适应”生理现象。而格栅形式的本身也是具有东方静谧、秩序气质的地域文化性表达。包活结合室内景观的等候区域选用了具有东方庭院气质的青枫树,在阳光与室外绿地的交融中消除了建筑内外的差异,营造空间中人与自然的亲密和谐氛围。
Meanwhile, the gratings alleviated the dark adaptation due to lighting contrast when one travels from basement to exterior. The form of gratings represents the oriental serenity and orderliness in the local way. Green maples which suit the aesthetics of oriental courtyard were planted in the waiting area, blurring the difference between interior and exterior through incorporation of sunlight and greenery.
▼政务办理等候区,Affairs Waiting Area
▼营造空间中人与自然的亲密和谐氛围,blurring the difference between interior and exterior through incorporation of sunlight and greenery
材料 | Meterial
土建刚开始施工时我们到现场查看,由于项目建筑质量有“鲁班奖”的评审标准要求,现场使用的模板和混凝土浇筑质量都比较高,尤其是在新模板最开始使用时的裙房部分,拆模后的浇筑质量稍加修复基本可以达到清水混凝土的效果。所以我们一边调整了原有设计方案,一边通知现场做了保护。
When construction began we had a site visit, we found that because this project was required to be qualified for the ‘Luban Award’, the quality of formwork and concrete pouring was good, specially at the podium when the new formwork began to be used, therefore a little bit of curing would be all we needed to expose the concrete when formwork was taken away. So we modified the original design and asked the contractor to apply protections to the concrete.
▼资源交易大厅外侧,Public Resources Trading Center Hall Outside
▼资源交易大厅外侧,Public Resources Trading Center Hall Outside
另外一个因素是项目有美国绿色建筑评估体系LEED-NC金级认证标准,对再利用材料和节能环保有较高的要求。同时从整体方案的地域文化性控制来讲中性灰色调和水墨江南的气质也是吻合的。包括使用的抛光混凝土地坪也都没有使用环氧基,而是采用水泥基。其中当然也有政府对造价控制的严格经济性要求。
Another reason was that the project was slated to obtain the golden certification of LEED-NC, so it had rigorous criteria for material reuse and energy saving. Also, in light of overall aesthetic control of local culture integration, the pale gray of concrete blends in well with the monochromatic palette of the traditional southern towns. The polished concrete paving used cement instead of epoxy. Lastly there was off course cost control requirement from the client.
▼电梯厅局部,The Part of Lift Lobby
▼水泥基磨石地坪局部,The part of Terrazzo Floor
形式 | Form
应该说这是个几年前的“旧剧本”拍的新戏,方案阶段的构思是基于昆山当地的昆石、湖石多孔变化的特征和“窗口”的功能性之间某种暗合的意向关联展开的。
This is a new rendition of an old ‘script’ dating several years back, and our concept was based on the local stone of Kunshan as well as the imaginative connection between its porous nature and the functional character of the ‘windows’.
▼休息讨论区,Rest and Discussion Area
▼电梯厅休息洽谈区,Rest and Discussion Area of Elevator Lobby
▼招标区域, Public Bidding Area
B2层发光的“玉山”是希望点一下项目所在的地名为玉山镇这个题。一层餐厅局部半围合空间是因为防排烟的变化后增加了一台排烟风机,局部吊顶标高下调了1.2米的应变,形式是湖石的类似荷兰风格派的几何抽象表达。
The illuminated ‘jade mountain’ at B2 level was incorporated to suggest the project’s location, Yushan. The partial enclosure in restaurant on ground floor was an improvised solution to the change in smoke exhaust that led to the addition of a ventilation fan and lowered the ceiling by 1.2 meter. The geometric forms represented the local lake stones.
▼餐厅,dining hall
▼“玉山”局部,The part of Jade Hill
填单区的奶酪墙实际上是视觉去结构化的最小化消隐结果,使用单位要求将N字形的钢结构用封闭墙体形式包裹,设计师则希望用尽可能小的封闭面的透漏关系回应策略。思考应该都是基于不同时间节点的意识反映,如果这个“剧本”是今天写,在设计形式上思考语言应该会有所不同。
The ‘cheese wall’ in the inquiry zone was meant to minimize the structure as much as possible. The client requested that the N-shape steel structure be enclosed by partitions and the designer resorted to the effect of perforating measures to achieve the least sense of enclosure. Each consideration can trace back to a response at a specific time, and there would be different starting points in composing the forms, should the ‘script’ be written today.
▼构件消隐,Building Structure Hide
愿景 | Vision
如何让城市公民空间与社会、自然发生良性互动,改善人与人之间关系,使更多市民从空间的感知中获得身体与情绪的被尊重,体用合一,既无谄媚亦不孤傲,设计能改变的也许不多,哪怕能有一小点也好。
How to promote a good interaction between urban space, society, and nature, improve interpersonal relationships, and allow more people to feel respect and dignity in a built environment? Even if the design can make a small change, it will be valuable and ‘rewarding’.
▼活动中心前厅,Foyer of Active Center
▼地下采光楼梯间,Natural Light Stair Underground
▼市民听证会议厅局部,Public Hearing Interior View
▼场地平面图,Site Plan
▼鸟瞰,Aerial View
▼建筑形态,Building Forms
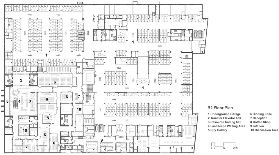
▼B2层A-D栋平面图,Layout B2F-A-D tower
▼一层A-D栋平面图,Layout 1F-A-D tower
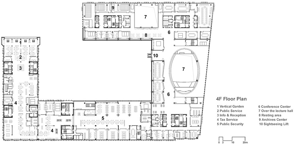
▼四层A-D栋平面图,Layout 4F-A-D tower
项目名称:昆山市政务服务中心
项目地点:昆山市前进西路
建筑面积:102000平方米
建设单位:昆山城市建设投资发展集团有限公司
室内设计:上海思域室内设计有限公司
设计主持:宋毅
设计人员:王南钢、班亚娇、靳力、庄子冲、李芸、葛丽丽、凌晨、张欢、董国伟、江波
项目管理:李慰杰、李子林、陆中、费一鸣、黄彩虹、黄军涛
设计配合:苏州苏明装饰股份有限公司
绿色认证:美国绿色建筑委员会 LEED-NC金级
设计时间:2012.8 – 2014.10
竣工时间:2018.11
摄影:夏至、宋毅
Project Title: Kunshan Government Affairs Service Centre
Project Site: Qianjin West Road Kunshan
Client: Kunshan City Investment Group
Design Firm:SDTD (Shanghai DomaimThink Design)
Design area: 102000sqm
Principal Architect: Song Yi
Design Team: Wang Nanggang,Ban Yajiao,Jin Li,Zhuang Zichong,Lee Yun,Ge Lili,Ling Chen,Zhang Huan,Dong Guowei,JiangBo
PM: Lee Weijie,Lee Zilin,Lu Zhong,Fei Yiming,Huang Caihong,Huang Juntao
LDI: SuMing Decoration Co.,Ltd.
Green Certification:LEED-NC
Interior Design Period: 08/2012 – 10/2014
Completion:11/2018
Photographs: XiaZhi ,SongYi
客服
消息
收藏
下载
最近



















































