查看完整案例

收藏

下载
我年少时期的昆明具有浪漫主义色彩,常常步行北京路、盘龙江畔、至塘子巷或德胜桥,右转金碧路去母亲的厂里吃饭。江畔路旁,茂密的法国梧桐掩映着红瓦黄墙绿色百叶窗的法式建筑,金色的光斑散落一地。
20世纪60-70年代,中国正处于一个无法理解的非常时期,温吞的昆明没能像20世纪30-40年代幸运地避开抗日的战火,成为中国的大后方。我从父辈、兄辈们的追忆中看到那个时代的惶恐与动荡。成年后的第一次阅读读到一段文字,这是昆明画家毛旭辉的记忆:文革期间,内地作者不论专业与否,几乎全部投入主题创作,画领袖像,而在昆明另有一番景象,周日、上下班前后、甚至中午,在海埂、西坝苗圃、圆通山樱花园、大观楼周围的法国别墅、庞龙江畔,随处可见写生的油画爱好者,像某校学员在他们的写生基地,人人谈论“苏派”的“逆光效果”,谈论“印象派”。彼时我尚小,不记得这番景象。可我毫不怀疑,因为在我对昆明城有了景象级以后,这个城市就是具有这样的氛围,直至高一,昆明城才开始被裹挟着踏上自我消亡的行程,一去不返。
When I was young, Kunming had a romantic color. I used to walk through Beijing Road alongside the Panlong River, to Tangzi Alley or Desheng Bridge, and then turn right to Jinbi Road to go to my mom’s factory to eat. Along the riverside, the thick sycamores cover the French buildings with the green shutters of the red titles and yellow walls, and the golden light spots were scattered all over the place.
In the 1960s and 1970s, China was in a very special period, and the moderate Kunming was not as lucky as the 1930s and 1940s to avoid the anti-Japanese fire and become China’s rear. I saw the horrors and upheavals of that period in the memories of the father generation and my brothers. The first passage I read in my adulthood was the memory of one Kunming painter Mao Xuhui: during the Cultural Revolution, almost all mainland painters, professional or not, invested entirely in the theme creation, i.e. painting political leaders, while in Kunming there was another scene. On Sunday, before and after work, and even at noon, painting lovers could be found everywhere in Haigeng Park, Xiba Garden, Yuantongshan Cherry Blossom Garden, French villas around Grand View Building and alongside the Panglong River. Like some school students in their sketch base, everyone talked about the “backlighting effect” of the “Soviet” and “Impressionism”. I was young at the time and I couldn’t remember the sight. But I have no doubt about this, because since I have a memory of Kunming City, the city is with such an atmosphere. It wasn’t until I was in my first year of high school that Kunming City began to be ensnared on a journey of self-extinction.
▼酒店外观,exterior view of the hotel
我少年时期的昆明城是具有印象派色彩的梦幻之地,从“滇越铁路”兴建至我大学毕业,近90年的时间,这是我以为的昆明城最美的时期。少年时期常常步行北京路、盘龙江畔、至塘子巷或德胜桥,右转金碧路去母亲的厂里吃饭。江畔路旁,茂密的法国梧桐掩映着红瓦黄墙绿色百叶窗的法式建筑,德胜桥上墨绿色的铸铁护栏,虽不及巴黎新艺术运动时期出现的铁艺那般唯美动人,却也典雅优美。这个城市文明发展的进程中,滇越铁路时期是一个极富影响力的阶段。随着铁路的通车,昆明成为法国的影响范围,新的意识、生活方式、各类人物通过铁路进入昆明。昆明平静的包容着这外来的一切,包容着变化。
喜舍﹒隐市这个设计,业主的卓识为设计赋予了充分的构思空间。继喜舍﹒大理之后,我们藉次机会,在昆明市中心一处奇妙老楼中创作了这家隐市酒店。每座城市自有它的岁月,每段旅程我们总渴望有不同的美好。能让置身其中的旅客除了有惬意的休息之外,还能看见些许这个城市的岁月,这何其美好。昆明1903年-1990年,这近百年的岁月,是我心中昆明最美好的岁月。在这个不大的空间中,我们尝试重新找回城市阶段进程的文明脉络以及昆明城的慵懒。
Kunming City in my youth was a dreamland with impressionistic color. For nearly 90 years from the construction of “Yunnan-Vietnam Railway” to my university graduation, this was the most beautiful period I thought of Kunming City. When I was young, Kunming had a romantic color. I used to walk through Beijing Road alongside the Panlong River, to Tangzi Alley or Desheng Bridge, and then turn right to Jinbi Road to go to my mom’s factory to eat. Along the riverside, the thick sycamores cover the French buildings with the green shutters of the red titles and yellow walls. The dark green cast iron guardrail on Desheng Bridge, although not as beautiful as the iron art appeared in Paris Art Nouveau movement, but was also elegant and beautiful. In the process of urban civilization development, the Yunnan-Vietnam Railway period was a very influential stage. With the opening of the railway, Kunming became the sphere of influence of France, and new thoughts, lifestyles, and types of people entered Kunming through the railway. Kunming calmly embraces everything that comes from outside and embraces change.
With regard to Xishe Hidden City’s design, the owner’s wisdom has given the design sufficient conceptual space. Following Xishe Dali, we took the opportunity to create this hidden hotel in a wonderful old building in the heart of Kunming. Every city has its own years, and we always yearn for different things in each journey. What a wonderful thing it is to be able to let the passengers in it not only have a pleasant rest, but also see a little of the city’s years. From 1903 to 1990, these nearly 100 years are the best years for Kunming in my heart. In this small space, we try to retrieve the civilized context of the process of urban phase and the laziness of Kunming City.
▼酒店外观局部,partial exterior view of the hotel
酒店的个性从事业本身的特殊性延展出来,从小小的巷进入小小的门,再穿过窄窄的通道进入被老小区包夹着的内庭(与邻居保持友好的距离),才可到达酒店reception的电梯。
▼门口钢架动图,gif of the steel frame at the entrance
The hotel’s personality extends from the particularity of the business itself. The elevator of the hotel reception can only be reached by entering small doors through small alleys and narrow passages into the inner courtyard enclosed by the old community (keeping a friendly distance from the neighbors).
▼酒店入口,角钢、H型钢、单立柱结构,the entrance of the hotel with a structure made of angle steel, H beam and single column system
▼似隔非隔的户外长廊,the outdoor corridor
▼酒店的艺廊兼通道,the gallery and corridor of the hotel
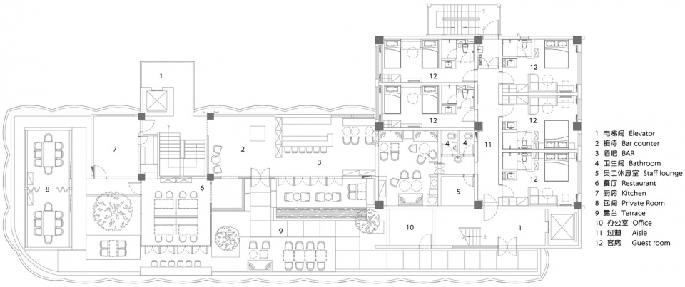
从电梯直达5楼,前奏结束,进入酒店核心。城市中心区极少见的露台花园包裹着酒店前厅、早餐房、茶室和酒吧。
The prelude ends when you reach the 5th floor by the elevator and enter the hotel’s core. The hotel’s lobby, dining room, tea house and bar are wrapped in a roofless garden, rarely seen in the city center.
▼酒店五层的酒店前台,the bar reception of the hotel on the 5F
▼酒店五层的酒店前台,阳光透过天窗洒进室内,the bar reception of the hotel on the 5F, the sunlight penetrates into the interior space through the skylights
▼从五层的酒店前厅看室外屋顶花园,viewing the roof garden on the 5F from the hotel lobby
路上高大的银桦树让水平视线不易看到城市的建筑,耳中传来城市的车流声,眼中却是满目的绿。穿过花园去到房间的路程绝不会让客人感到枯燥,只会想要放下行李到酒吧喝一杯,去感受着喧嚣背景中的安然弛放,这是属于这里的奇妙而独特感受。
▼5层屋顶花园钢架,the steel frame of the roof garden on the 5F
The tall silver birch on the road makes it difficult to see the city’s buildings from a horizontal line of sight. The sound of the city’s traffic is heard in the ears, but the eyes are full of green. The journey through the garden to the room will never make the guests feel boring, only makes them to put down their luggage to the bar for a drink, to feel the relaxation in the background of hustle and bustle. This is the wonderful and unique feeling here.
▼五层屋顶花园酒吧室内,interior view of the roof garden bar on the 5F
▼五层屋顶花园酒吧,眼前充满绿意,不易看到周围的城市建筑,the roof garden bar on the 5F, it is difficult to see the city’s buildings from a horizontal line of sight, and the eyes are full of green
▼五层屋顶花园酒吧夜景,旅客们可以在此感受喧嚣背景中的安然弛放,night view of the roof garden bar on the 5F, guests can go to the bar for a drink, to feel the relaxation in the background of hustle and bustle
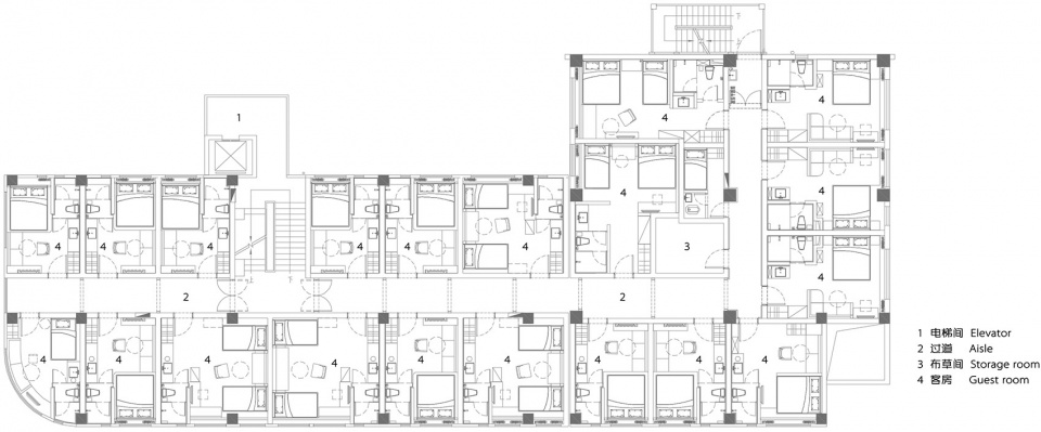
酒店一共43个房间,建筑原是写字楼,空间多变而复杂,设计和施工都带来大量的细节处理。
The hotel has a total of 43 rooms. The building was originally an office building. The space is varied and complicated, and the design and construction have done a lot of detail processing.
▼大床房,King-size Bed room
▼微套房,Micro Suite room
最小的房:17m²,可丝毫不显局促,甚至有一个可舒服坐下的符合区域,一切都是刚刚好的样子。
This is the smallest room(17m²). But the room is nothing constraint but even have a comfortable area to sit down. Everything is just as good.
▼玲珑房,Exquisite room
▼玲珑房的浴室空间,the bathroom of the Exquisite room
▼玲珑房的浴室空间细节,details of the bathroom of the Exquisite room
最高一层是大床房和套房。
King-size Bed room and Suite are on the highest floor.
▼套房,Suite
▼套房的起居室空间,the living room space of the Suite
▼套房的浴室空间,the bathroom of the Suite
▼城市景观大床房,City View King-size Bed room
旅程,这短暂的一泊,该留有它的气息。
地域,该有它岁月抹不去的痕迹。
当下社会,设计常迷失于单一的视觉张力。大都把注意力集中在特立独行的视觉构成之上。场所的精神感觉已经被疏离感所取代。这个城市的设计语境是真切存在的一个巨大的“场”。他产生认同感。由此带来归属感。这处场所,设计的企图就是承先启后。但流于表皮主义,符号主义的肤浅,也是该摒弃的。城市语境形成场所精神。黄墙红瓦绿百叶,覆满街道的绿,昆明城的浪漫主义,光照强烈的高饱和度色彩的梦幻主义,都根植于这条盘龙江旁的街道上。自然而然,这就成为喜舍的场所。
▼空间细节,details
▼酒店楼梯,stairs
Journey, the brief berth, should leave its breath.
Region, should have traces that its years could not erase.
In today’s society, design is often lost in a single visual tension. Most of the attention is paid on the maverick visual makeup. The spiritual feeling of the place has been replaced by the sense of alienation. The design context of this city is a huge “field” that really exists, which creates a sense of identity and brings a sense of belonging. The intention of the design of this place is to carry on the past heritage and open up the future. However, the superficiality and symbolism should also be abandoned. The urban context forms the spirit of the place. Kunming City’s romanticism, the bright light of high-saturation of the dreamism, with the green shutters of the red titles and yellow walls and the green of the street, is rooted in this Panlong River side of the street. Naturally, this becomes the place of Xishe hotel.
▼酒店夜景,night view of the hotel
▼一层平面图,1F plan
▼四层平面图,4F plan
▼五层平面图,5F plan
▼六层平面图,6F plan
项目名称:昆明﹒喜舍隐市酒店
设计方:昆明思成工程设计有限公司
项目设计 & 完成年份:2018年5月-2019年3月
主创:石涛
设计团队:黄玉娟、杨谨屹、谷永丽
项目地址:云南省昆明市青年路
建筑面积:1829m²
摄影版权:王鹏飞
客户:喜舍昆明酒店管理有限公司
品牌:石材,实木,钢材,铜,铝板网
客服
消息
收藏
下载
最近


































