查看完整案例

收藏

下载
“和平馆”位于塞内加尔南部的塞久,是由巴鲁奥-萨罗协会发起的KAIRA LOORO国际建筑竞赛(评委包括隈研吾等人)的中标方案。该组织的建筑师和工程师团队将与塞内加尔当局和机构对此获奖方案进行建造评估,研究其财务和技术可行性。项目将被置入一个特别微妙的城市环境中,基地为Casamance河沿岸一块平缓的粘土地。它是一处多功能场所,在这里可以举办永久和临时的艺术展览,分享和平与记忆的价值。
▼建筑外观,exterior
T
he
Peace Pavilion
is located in
Saigon
, which is t
he winning project of Kaira Looro Architecture Competition, launched by the Balouo Salo Association
.
It
will be evaluated by a team of expert architects and engineers from the organisation, in collaboration with Sedhiou’s authorities and institutions, in order to study its financial and technological feasibility.
The project will be inserted in a particularly delicate urban context. The
p
lot is located along the bank of the Casamance River, on predominantly clay terrain and with a minimal slope.
The project
is to create a pavilion for the promotion of universal peace
,
besides,
p
ermanent and temporary
exhibitions can be held here.
▼总平面图,master plan
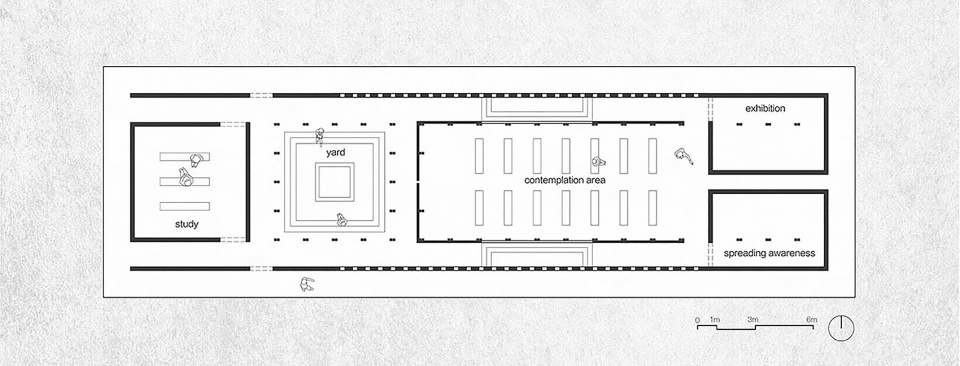
和平馆
沉浸在周围的环境和自然景观中,一边是河流,另一边是城市
,
企图以简洁的体量
融入基地
,成为大地
景观。
轻轻
踏上悬浮的基座,
穿过窄而高的门洞
,是一圈木结构柱廊围合的庭院
。
阳光从庭院上空照射进来,打在中间的木盒子上
,
人们
可以在庭院中散步、交流、静坐,感受和平年代所拥有的家的安稳与宁静。庭院
一方面
提供
了
一处人与人沟通
交流
的
空间,一方面也改善了建筑的微气候,增加室内通风效果。
▼剖面图,section
▼首层平面图,ground floor plan
T
he
Peace Pavilion
is immersed in the surrounding environment and natural landscape, bordered by the river on one side and the city on the other.
Peace Pavilion attempts to integrate into the base with a simple mass and become a landscape
in a humble posture. Stepping onto the suspended pedestal and entering through a narrow doorway, it is a courtyard enclosed by a wooden structure colonnade.
The sun shines in from the
top
of
courtyard and shines on the wooden box in the middle.
The simple sequence expresses the tranquility of the space
.
People can walk, communicate and sit quietly in the courtyard to feel the stability and tranquility of their homes in the peaceful times. On the one hand, the courtyard provides a space for people to communicate with each other. On the other hand, it also improves the microclimate of the building and increases the indoor ventilation effect.
▼由木结构柱廊围合的庭院,the courtyard enclosed by a wooden structure colonnade
从庭院穿过走廊,长长的走廊敏感地容纳着脚步的节奏,容纳着庭院的交流声
。
光线从夯土墙上的洞口照射进来,洒在走廊上,把人引向祈祷和沉思的区域
。
沿台阶而上,来到沉思空间,心情慢慢沉淀,
酝酿出一种与沉思气氛合拍的情绪
。
W
ork
into
the corridor
from
the courtyard
, the long corridor sensitively accommodates the rhythm of the footsteps,
and
the sound of the courtyard
.
the light coming in from the hole in the
clay
wall, sprinkled in the hallway, leading people to the area of prayer and contemplation
,
Along the steps,
you
c
o
me to the contemplative space,
M
ood slowly settled
and
brew a mood that
is
in harmony with the contemplative atmosphere.
▼光线从走廊夯土墙上的洞口照射进来,
the light enters
the corridor through the hole in the clay wall
顺着两侧
纵向排列的木结构柱子,
视线向前延伸,
两个展厅间
狭窄且高长的
缝隙
让
你
可以看到外面的世界
。但建筑
之外的景色在你经过
时,随着角度的变化又会慢慢暗淡最终逝去
。
它
鼓励参观者反思并记住
动乱的无情和它带来的压抑,以及
因战争而陨落的
鲜活
生命
,
但最重要的是
,展望和平美好的世界
,展望未来。
光线穿过檐口与夯土墙的空隙照射进来,打在墙壁上,增加了空间的静谧,这个区域的空间将和平的意义
物质化
。
Along the wooden pillars arranged longitudinally on both sides, the line of sight extends forward. The narrow and long gap between the two exhibition halls allows you to see the outside world. But as you pass by, the scenery outside the building will
fade slowly and eventually fade away as the angle changes. It encourages visitors to reflect on and remember the relentlessness of the turmoil and its depression, as well as the fresh life that has fallen from the war, but most importantly, to look forward to a peaceful and beautiful world and the future. Light shines through the gap between the eaves and the rammed earth wall, hits the wall, increases the quietness of space, and the space in this area materializes the meaning of peace.
▼沉思空间:从狭窄的缝隙望向河边,contemplation area: view to the riverside through the narrow gap
▼从沉思空间望向走道,contemplation area facing the aisle
鉴于
对
塞久
工艺的预判和对“和平馆”本身空间特性的理解
,
设计
选用
了
夯土墙和木骨架结合的建造方式,
并
考虑利用当地的
木材和夯土技术
,创造出契合主题的
质朴
空间,由内层木构和外层夯土定义
的两种空间界面在身体的知觉感受上截然不同,
光线将两种材料融合在一起。
The prediction of local technology and the understanding of the spatial characteristics of the “Peace Pavilion” make us finally choose the construction method of
us
ing rammed earth wall and wood frame. Consider
using
local rammed earth and local wood
to
create a space that fits the theme. The spatial interface is defined by the inner timber structure and the outer rammed earth
.
Light fuses
the two materials together.
▼结构图解,structure diagram
▼通风图解,ventilation diagram
项目名称:和平馆
位置:非洲 塞内加尔 塞久
建筑面积:300平方米
设计:蔡长泽
工作单位:华南理工大学建筑设计研究院有限公司
Project name:Peace pavilion
Project location:Sedhiou, Senegal
Floor area:300㎡
Leader designer & Team:Changze Cai
Work Unit:Architectural design & research institute of SCUT
客服
消息
收藏
下载
最近












