查看完整案例

收藏

下载
Garanti银行科技园项目位于伊斯坦布尔的主要高速公路D-100和TEM之间,靠近伊斯坦布尔Pendik的SabihaGökçen机场,该项目将旧的化工土地转变为土耳其最具活力的银行科技公司园区。
Located between major highways of Istanbul, D-100 and TEM, in the proximity of Sabiha Gökçen Airport in Pendik, Istanbul, the project transforms an old industrial chemical factory land into a technology company campus for one of the most dynamic Turkish banks.
▼建筑外观,exterior view
▼建筑立面,facade
灵感来自于场地周围的自然地形,以及与周围混乱的城市肌理形成鲜明对比的愿望;一个水晶体作为主要的办公空间,轻盈地躺在几个人造山丘上,人造山丘内部是服务性功能,例如两个600座和200座的礼堂,教育会议空间,自助餐厅,贵宾休息室,数据中心以及许多其他功能。这个悬浮体通过跨度超过30米的悬桥和玻璃幕墙连接场地的两个地块。办公空间的灵活性和最大程度的引入自然光是工作空间的主要标准。
▼手绘剖面图,section sketch
▼轴测图,axon
Inspired by the natural topography around the site and the desire of creating a clear contrast to the surroundings’ sunorganized urban fabric; a crystal volume as the main working environment is lying gently over several artificial hills sheltering various functions such as two 600 and 200 seats auditoriums, educational meeting spaces, cafeterias, lounges on bridges, data center and many other functions. This horizontal floating volume connects the two plots of the site by the introduction of hanged bridges and glazed screen walls over 30 meters spans. Flexibility and maximizing the daylight being one of the major criteria for the working spaces.
▼一个“水晶体”轻盈地躺在几个人造山丘上,a crystal volume as the main working environment is lying gently over several artificial hills
▼悬浮的体量,the floating
办公空间的可达性通过一系列高架的开放式庭院实现,用户可以在这里穿梭,还可以在桥上的休息室休息和社交,并且可以欣赏到许多令人惊喜的景色和景观。透明的玻璃幕墙打破了工作空间与城市的障碍,为办公空间的用户在一年中创造不同的体验。
the accessibility to the office spaces has been organized through a set of elevated open courtyards where the users circulate and also have the ability to rest and socialize at lounges placed on bridges allowing many surprising views and vistas. The transparency is used to integrate the working spaces with the city, allowing the users to interact and to create different experiences throughout the year.
▼高架的开放式庭院, a set of elevated open courtyards
建筑的外形锐利而鲜明,映射着天空、景观与城市,而内部是一个个柔和的庭院。用户沿着一条在人造山丘之间像小溪一样起伏的路径在室外地面上穿行。外部的地形逐渐升起,为用户提供了一种旅程的体验。
A strong contrast awaits the user as the elevated horizontal crystal has a sharp and decisive cantilevered appearance from outside reflecting the sky, the landscape and the city yet the inner main axis structured with rather by voids. The user circulates through the outdoor ground levels following a path which undulates like a creek between the artificial hills. As with the ground outdoor levels, the elevated volume has been designed to allow an experience of journey for the every day user.
▼起伏的路径延伸在人造山丘之间,the path undulates like a creek between the artificial hills
▼柔和的庭院,the soft courtyard
池塘的设计旨在增强户外和玻璃幕墙的冷却效果,以应对炎热的季节。该建筑实现了整体建筑的可持续性原则,采用单层和双层立面系统,动态遮阳与照明相结合,到特殊的加热和冷却系统,为内部空间提供百分之百的新鲜空气。外立面设计为高品质的单元化系统,以应对高温以及建筑周围高速公路产生的噪音。该建筑已获得Leed Gold证书。
Ponds are designed to enhance the cooling effect on the outdoors as well as on the glazed facades to reduce the temperature gain during hot seasons. The building implements the sustainability principles overall the building from single and double skin facade systems with dynamic sun shading integrated with lighting, to special heating & cooling systems providing the inner spaces with hundred percent fresh air. The facades have been designed as unitized systems allowing the high quality in terms of heat and acoustic insulation as the building site is surrounded by highways with heavy traffic. The building has received Leed Gold certificate.
▼水池用于应对炎热季节,ponds are designed to reduce the temperature gain during hot seasons
▼建筑立面细部,facade detailed view
▼动态遮阳系统,dynamic sun shading system
▼一层大堂,lobby on the ground floor
项目总建筑面积约为142000平方米,占地面积51000平方米,园区按计划分为三个主要部分:53,500平方米的开放式办公室,16,000平方米的礼堂,教育空间和自助餐厅,72,500平方米的停车区,一个Tier 4数据中心,一个运动中心,公共空间,档案和服务区。建筑内使用的大部分材料都是环保的。在设计的初始阶段,当获得该场地时,旧的化工厂已被移除。土壤被送去进行进一步的污染检查。建筑遗留物被重新归类,并被回收或认证。旧工厂的松树被保留下来,其中一些已迁移到现场内的新址。建筑物遮阳设备,人工照明以及冷却和加热系统集成在一起,并且根据传感器进行操作,以最大限度地减少能源使用,并将用户的舒适度保持在较高水平。大多数软景观使用的都是当地植物,这些植物不需要高耗水量。雨水收集主要用于景观。起伏的人造山丘通过潜入山体表面的缆线来实现。它是迄今为止土耳其这种类型的绿色屋顶系统的最大应用。该建筑办公区采用的是混凝土板结构,下部为暴露的混凝土结构。礼堂位于其中一座山丘内。4层办公大楼位于转移结构上,以实现大厅的内部空间。
▼从建筑内部望向庭院,view to the courtyard from interior
▼通高的中庭空间,the full-height atrium
▼办公区域入口大厅,the entrance hall of the office area
▼公共空间,public spaces
▼手扶电梯间,
escalator
▼电梯厅,elevator hall
▼餐厅,cafeteria
With approx.142000 sqm total built area and 51000sqm site are, the campus programme is configured into three major sections: a 53,500 sqm open offices, a 16,000 sqm auditorium, educational spaces and cafeterias, a 72,500 sqm parking area, a Tier 4 data center, a sport center, common spaces, archives and service areas. The building has received Leed Gold certificate. Most of the materials used within the building are eco-friendly. During the initial stages of design when the site has been acquired, the old chemical factory has been removed. The soil has been checked further for contamination. The negative results eased the process later on. The remainings has been dismantled into several different categories and has been sent for recycling and certified. The exisiting pine trees from the old factory has been kept and some of them displaced into newer locaitons within the site. The buildings shading devices, artificial lighting and cooling and heating systems are integrated and behaves according the sensors input in order to minimize the energy use and keep the user comfort at a higher level. Most of the soft landscape is obtained through local plants which doesn’t demand a high water consumption. The rain water harvesting is used for the landscape mainly. The green hills were obtained by a system of cables embedded into the sedum surface from the top crown of the artificial hills. It is by far the largest application of green roof system in Turkey of this type. The main structure of the building is flat slab concrete system on the office areas and exposed frame structure in the lower areas. The auditorium is located within one of the hills. The 4 levels office block stands on a transfer structure to enable the inner space of the hall.
▼被立面环绕的庭院,courtyard surrounded by facades
▼办公空间,office interior view
▼走廊,corridor
▼建筑立面夜景,building facade night view
▼设计手绘,design sketch
▼场地平面图,site plan
▼首层平面图,ground floor plan
▼夹层平面图,mezzanine floor plan
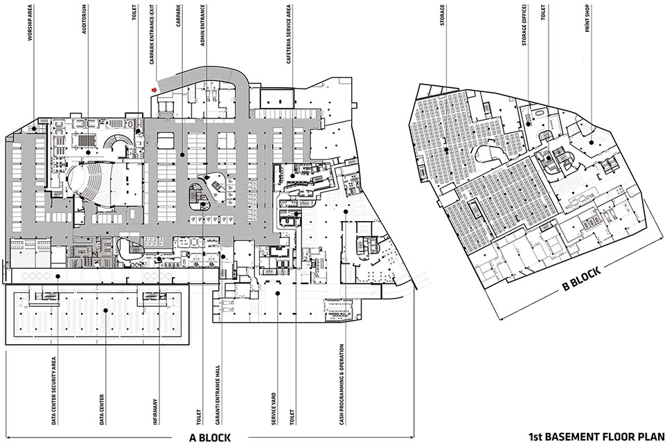
▼地下一层平面图,1st basement floor plan
▼二至四层平面图,plan level 1-4
▼立面和剖面图,elevations and sections
城市:伊斯坦布尔
客户:Garanti银行
建成日期:2018年11月
建筑面积:143000 平方米
主持建筑师:Ali Hiziroglu
设计团队:Ertun Hızıroğlu, Faik Barutçu, Fahrettin Çiloğlu, Çiğdem Duman, Serap Aydınel, Gökçen Demirkır, Melis Uysal, Sevgi Paçcı, Çağla Özgen, Elif Taşal, Ekim Orhan İsmi , Süreyya Numanoğlu, Gülizar Bozdoğan, Zuhal Özen, Şafak Kızılırmak, Elif Özil
Leed顾问: Werner Sobek
幕墙顾问: Tim Macfarlane Glass Limited
室内设计: Midek Mingü
照明设计: Planlux
照片来源:Cemal Emden
City: Istanbul
Client: Garanti Bank
Completion Date:11/2018
Gross Floor Area (mq):143000
Costs ($): 250000000
Architects: Ali Hiziroglu
Design team:Ertun Hızıroğlu, Faik Barutçu, Fahrettin Çiloğlu, Çiğdem Duman, Serap Aydınel, Gökçen Demirkır, Melis Uysal, Sevgi Paçcı, Çağla Özgen, Elif Taşal, Ekim Orhan İsmi , Süreyya Numanoğlu, Gülizar Bozdoğan, Zuhal Özen, Şafak Kızılırmak, Elif Özil
Leed Consultant: Werner Sobek
Facade Consultant: Tim Macfarlane / Glass Limited
Interior Design: Midek Mingü
Lighting Design: Planlux
Photo Credit: Cemal Emden
客服
消息
收藏
下载
最近




















































