查看完整案例

收藏

下载
项目起因于业主购买了一栋拥有100多年历史的房子。传统的住宅带有三角形山墙,石材地下室状况良好,因此建筑师决定将地下室保留下来供新房子使用,其余部分则全部拆除。这一大胆而冒险的方案得以实现,如今,业主居住在这个美丽而现代的住宅中,过往的历史灵魂与带有工业风格的北欧美学相融合。这说明了:通向成功的道路并不总是那么容易,付出一些额外的努力都是值得的。
It all started with our clients’ purchase of a house over a hundred years old. The traditional building with a gable roof was at its end. Its stone basement was still in a good condition so we decided to take down the rest of the house and use the stone socle in the basement as a foundation for the new house. Our courageous and somewhat risky plan worked out and today, the clients live in a beautiful, modern house which combines the historical soul of its predecessor and nordic esthetics with a touch of industrial style. What can we say? The road to success is not always an easy one but it’s worth it to put in a little extra effort.
▼住宅外观,exterior of the house
场地毗邻一条繁华的道路,是游客通往Jizera山脉的起点。因此,建筑师用一面新的混凝土墙取代原来旧房子的外墙,如此不仅降低了邻近道路传来的噪音,同时也限定出住宅的外部入口。墙后是一个小院子,能够看到入口、客房和通向下方庭院楼梯的路标Ještěd。
The lot borders a busy road which serves as a starting point for tourists heading to the Jizera Mountains. Because of this we designed a new concrete wall in place of the former exterior wall of the old house. This will not only decrease the amount of noise from the nearby road but also define the outside entrance area to the house. Behind the wall is a small yard with a view of Ještěd which serves as a guidepost between the entrance, the guest house and the stairs to the yard below.
▼一面新的混凝土墙不仅降低了邻近道路传来的噪音,同时也限定出住宅的外部入口, a new concrete wall not only decrease the amount of noise from the nearby road but also define the outside entrance area to the house
新结构是木制的。沥青屋顶与涂刷焦油的黑色立面让人们想起这里曾经有过的棚屋。混凝土墙面后伫立在旧石材基础上的实际上是两栋住宅:一栋家庭住宅和一栋为年轻水手准备的小客房,业主的儿子大部分时间都在掌舵横渡大西洋的船只。
The construction of the new part is wooden. The asphalt roof together with the black, tar-painted facade reminds us of the shed that used to stand here. On the old stone foundation behind the concrete wall are actually two houses; a family house and a small guest house for a young sailor, the clients’ son, who spends most of the year at the helm of transatlantic ships.
▼沥青屋顶与涂刷焦油的黑色立面让人们想起这里曾经有过的棚屋,the asphalt roof together with the black, tar-painted facade reminds us of the shed that used to stand here
▼沿街混凝土墙面及窗口,concrete wall along the road and windows
父母居住的家庭住宅相对复杂,建筑设计需要满足三个人不同的需求——一对友好的夫妇和他们的女儿。地下室上新建的一层包括几间卧室、一间办公室、一间浴室洗手间和带有户外桑拿房的庭院。桑拿理疗在北方严寒冬天是一种令人愉悦的体验,这就是为什么业主几乎都不会让桑拿房冷却下来的原因。庭院虽然简单却很美。几棵大树形成一种山林的感觉。菜园的周围增加了一些花盆,业主妻子在这里种植了新鲜的香料。
▼住宅轴测,axonometric drawing
The parents’ house is more complicated as its building design had to encompass the needs of three different people – a friendly couple and their daughter. The wooden addition above the basement ceiling consists of bedrooms, an office, a bathroom with a toilet and an outdoor yard with a sauna. Sauna therapy is a pleasant variation during the harsh northern winters. That’s why the clients hardly let it cool down. The yard is modest yet beautiful. A couple of large trees give the impression of a mountain forest. A few pots were added around the vegetable garden where the wife keeps fresh herbs.
▼简单而优美的庭院、石材地下室与木材新建部分,modest yet beautiful yard, stone basement and wooden new structures
▼两栋房子组成的住宅,project consists two houses
▼石材与木材细节,detail of the wood and stone
住宅内的起居空间两侧具有大面积的窗户。西南侧的窗户可以看到Harcov河谷和Ještěd,北部的窗户可以看到有桑拿房的庭院。走下几级台阶就是一间带有壁炉的起居室,宽敞的楼梯通向连接小天井的厨房和餐厅。地下室的其余部分被用作杂物间和储藏室。
The living space of the house is defined by large windows on both sides. The window on the southwest facade brings the view of the Harcov stream valley and Ještěd while the north window shows the previously mentioned sauna yard. A couple of steps lower is a living room stairhead with a fireplace and a wide staircase to the kitchen and dining room which are connected to the patio. The rest of the basement is used as a utility room and storage space.
▼拥有大面积窗户与壁炉的起居室,living room with large windows and fireplace
▼工作区域,working area
▼起居室内一部宽楼梯通向厨房与餐厅,a wide stairs to the kitchen and dinning room
▼连接天井的厨房和餐厅,kitchen and dining room which are connected to the patio
建筑师非常享受设计室内的过程。内部采用了许多定制元素。浴室中一部分水龙头换成了铜管和花园水龙头。卧室内有悬挂在天花板上的衣柜,这样它们不会占用太多的空间,保持卧室、步入式衣帽间和浴室相互连接。厨房柜台设计保留了建造房屋地下室部分的花岗岩块。
We enjoyed designing the interior. There are many custom-made elements. In the bathrooms you can find water taps, some of which were replaced with copper pipes and garden taps. In the bedroom there are wardrobes hanging from the ceiling so that they don’t take up so much space and keep the bedroom, walk-in closet and bathroom interconnected. The kitchen counter was designed in a way that retained the former granite blocks from which the lower part of the house was built.
▼卧室空间,bedrooms
▼卧室内悬挂在天花板上的衣柜,in the bedroom there are wardrobes hanging from the ceiling
▼浴室中一部分水龙头换成了铜管和花园水龙头,in the bathrooms, some of those water taps were replaced with copper pipes and garden taps
▼日落时分的建筑,house at sunset
▼场地平面图,site plan
▼首层平面,site plan
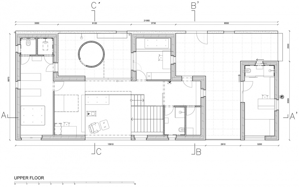
▼上层平面,upper floor plan
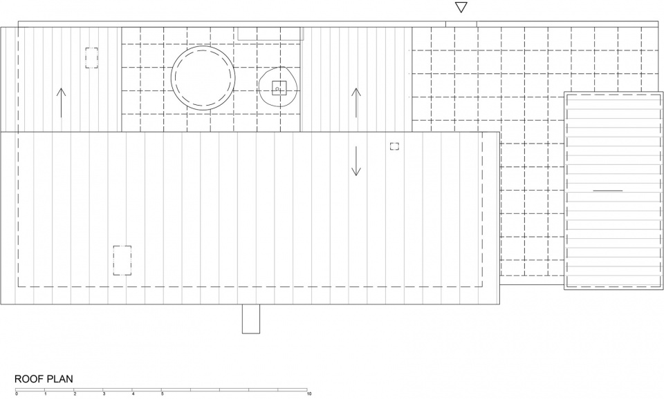
▼屋顶平面,roof plan
▼南立面图,south elevation
▼北立面图,north elevation
▼东立面图,east elevation
▼西立面图,west elevation
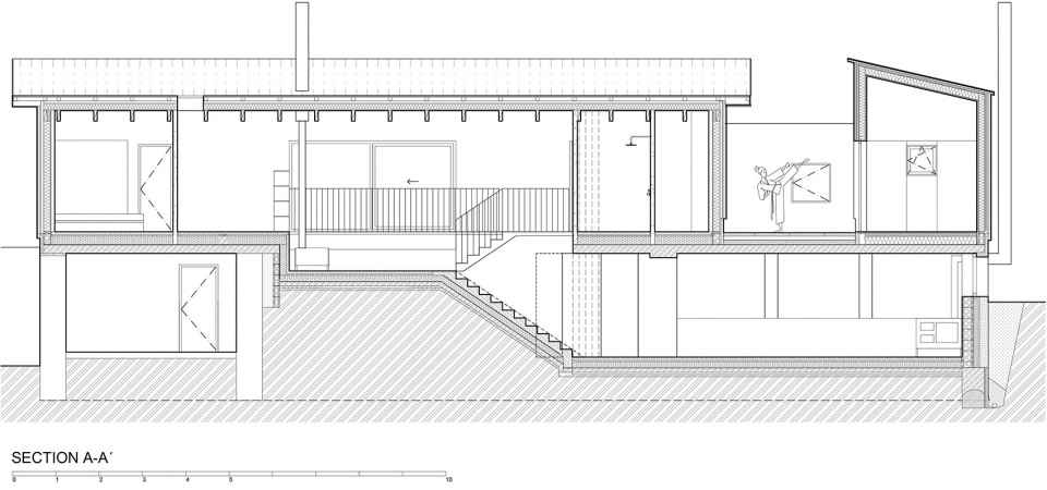
▼A-A′剖面,section A-A′
▼B-B′剖面,section B-B′
▼C-C′剖面,section C-C′
Project name: HOUSE BEHIND THE WALL
Architect: Mjölk architects
Website:
info@mjolk.cz
Project location: Liberec, Czech Republic
Client: Michaela Turková, Stanislav Turek
Project year: 2014
Completion year: 2018
Project size: 271,5 m2
Site size: 1147 m2
Photo credits: Jakub Skokan, Martin Tůma / BoysPlayNice,
Collaboraters-
Project: Michal Hejzlar, Mjölk, Jan Nikendey, Mjölk
Materials: stone, reinforced concrete, concrete blocks, ceramic bricks, construction wood, larch planks
Products and brands: Nordlux, Jotul, Vitra, Millante
客服
消息
收藏
下载
最近





































