查看完整案例

收藏

下载
本项目位于斯德哥尔摩的市中心,隐藏在几个大型的玻璃拱门之后。原建筑共有4层,在本项目中,建筑师对这个老旧的空间进行了一次彻底的重新设计。
In the center of Stockholm, behind a couple of large arches, an old space organized on four comparted floors was completely reimagined.
▼餐厅外立面,位于几个大型的玻璃拱门之后,exterior view, the restaurant is behind a couple of large arches
建筑师拆除了原有的墙体、楼板和楼梯,以突出本建筑的特点,即厚墙和轮廓分明的几何造型。锐利的线条重新限定了水平和竖直方向的空间连接,定义出新的空间层次结构:
Existing walls, floors and stairs were tear down to valorize the quality of the building characterized by thick walls and defined geometries. Sharp lines redraw all the horizontal and vertical connections defining new hierarchies:
▼餐厅首层的吧台和窗边用餐区,the counter and the window dining area at the ground floor
门厅 | The Foyer
宽敞的门厅迎接着每一位前来用餐的客人。这个双层通高空间的主要特征是楼梯和一个拱形天花板,将街道与点餐柜台、上层空间、厨房层和下层空间联系了起来。
A generous foyer welcome the clients to the restaurant. This double height space is dominated by the stairs and its vault and connects the street to the counter, the upper floor, the kitchen and the lower floors.
▼餐厅首层空间,拥有双层通高的宽敞门厅,ground floor of the restaurant with a double height generous foyer space
▼餐厅首层空间局部,拥有大楼梯和临街立面上的玻璃拱门,partial interior view of the ground floor of the restaurant with the stairs and the large arches
▼首层空间,局部设置拱形天花板,通过楼梯从首层去往上层空间,the ground floor with partial vault ceiling, going upwards to the upper floor through the stairs on the ground floor
露台(上层空间) | The Terrace
餐厅的上层空间俯瞰着门厅,零星地设置着几张餐桌和座椅。透过半圆形的窗户,在上层空间用餐的客人们可以欣赏到街道和附近花园的景观。
The upper floor accommodates some tables and overlooks the foyer. This room, throw a semi- circular window, is facing the street and the nearby garden.
▼俯瞰着门厅的上层空间,可透过半圆形窗户欣赏室外美景,the upper floor that overlooks the foyer, guests can enjoy the exterior scenery through the semi-circular window
中间层(夹层空间) | The Middle Floor
从上层空间向下走半层,就来到了一个朝向餐厅宁静庭院的夹层空间。此外,主厨房也位于这个夹层空间。
Half floor downstairs you find the lower part of the restaurant towards the property’s quiet courtyard. in this level is also placed the main kitchen.
▼室内用餐空间,the interior dining area
地窖(地下空间) | The Cellar
在这个地下的用餐空间中,橡木家具与柔和且均匀的色调相结合,黑色的细节设计也作为背景,衬托着本设计的主要焦点:即餐厅所呈现出的色彩缤纷的美食。
A soft, uniform color combined with oak furniture and few other details in black is the background for the main focus: the colorful food presented in the restaurant.
▼地下用餐空间,橡木家具与柔和且均匀的色调相结合,the cellar dining area with a soft, uniform color combined with oak furniture
▼地下用餐空间细节,details of the cellar dining area
▼从首层通向地下用餐空间,楼梯空间上方设有拱形天花板,the stairs space leading to the cellar dining space with a vault ceiling above itself
▼餐厅模型局部,partial of the physical model of the restaurant
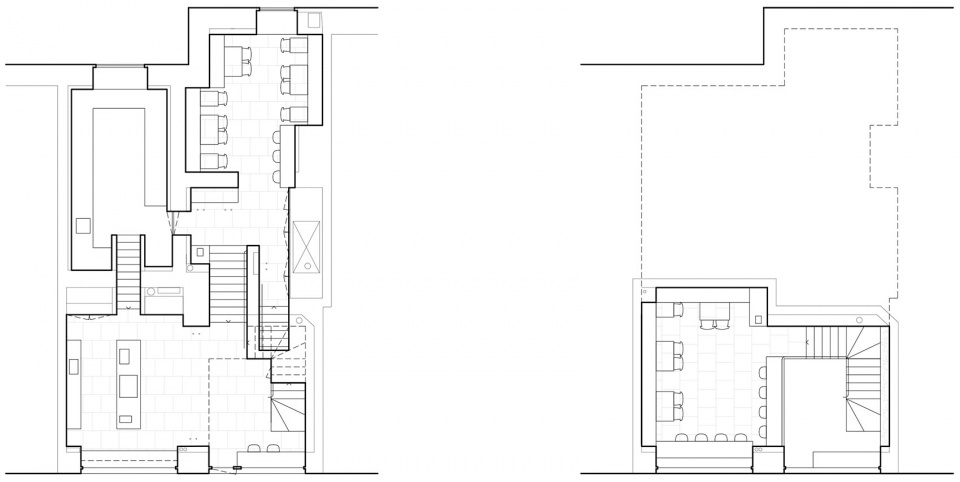
▼平面图,floor plan
▼剖面图1,section 1
▼剖面图2,section 2
Project name: Kale & Crave
Architect’ Firm: Matteo Foresti
Lead Architects: Matteo Foresti
Project location: Roslagsgatan 2, Stockholm, Sweden
Completion Year: 2018
Gross Built Area (square meters or square foot): 200mq
Photo credits:
João Morgado
Client: FIGFY AB
Other participants:
Construction company: Lindblad&partners
Engineer: KE gruppen AB
Carpenter: Jiwes Modell & Snickeri
Ventilation: DC vent AB
Plumber: Ericsson & Holmstedt VVS
El: Pernolds El AB
Brands / Products (List of materials and brands)
1. Floors: BRICMATE – Serie M – Ceppo Di Gre Granitkeramik 597x597mm
2. Bar Counter/tables/benches: Lacquered Oak
3. Counter top: SILESTONE – Calypso
3. Chairs and stools: HAY – Soft Edge 10
4. Stools: HAY – Soft Edge P30
5. Bathroom ceramics: VALDAMA – Track
6. Bathroom accessories: NIXON
客服
消息
收藏
下载
最近




















