查看完整案例

收藏

下载
该项目旨在对伦敦南部的一栋维多利亚式住宅从后方进行扩建,并对阁楼进行改造。房屋的主人是一对从事平面设计和摄影的夫妇以及他们的两个小孩,在项目过程中,建筑师与业主进行了密切的合作。
A rear extension and loft conversion to a modest Victorian terrace house in South London. The project evolved through a process of co-creation with the clients – a graphic designer and photography agent along with their two young children.
▼住宅外观,exterior view
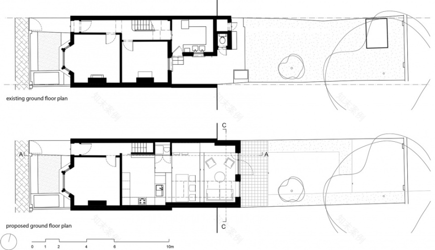
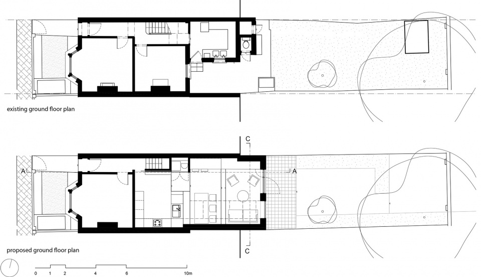
既有的住宅比花园层高出1米,为了将住宅与花园连接起来,建筑师创建了一个阶梯式的内部景观,通过层级的变化来定义不同的功能空间。厨房、餐厅和非正式的休闲空间被分布在这种自然的地形之上,使每位家庭成员在做不同事情的时候也能够分享整个空间。
The existing house was 1m higher than garden level – in order to connect the family with their garden, a stepped internal landscape was created that defined different uses within a larger family space through changes in floor level. Thus a kitchen, dining space and informal seating area are defined by their own topography, meaning the whole family can share the space whilst doing different things.
▼剖面图,section
扩建的部分是一个带有倾斜屋顶的简洁体量,安装以大尺寸的枢轴门,能够将远处花园的景观一览无余。背部立面上的窗户与侧面扩建部分的玻璃天窗相互对齐,带来自然光和天空的视野。简洁的屋顶缓和了天花板高度变化带来的复杂感,在与内部空间和谐共存的同时也为外部赋予了独特的几何形状。
The extension is articulated as a simple pitched roof form with a large pivot door framing an uninterrupted view of the garden beyond. A slot window on the rear elevation aligns with the glazed roof light over the side extension to bring in daylight and views of the sky. The simple roof form rationalises a more complex array of ceiling heights and boxed structure that deals with existing elements internally, while reflecting the geometry of the existing house externally.
▼玻璃天窗带来自然光和天空的视野,the glazed roof light brings in daylight and views of the sky
▼起居室,living room
▼阶梯式的内部景观,a stepped internal landscape
▼餐厨空间,dinging room and kitchen
▼厨房细部,kitchen detailed view
扩建部分的内外立面均以软木覆盖,与既有房屋的砖墙相得益彰,并且会在时间和天气的作用下逐渐变为银灰色。软木材料可以在无需其他绝缘材料的情况下满足所有的传热系数需要,并起到吸收噪音和透气的作用。由于不含合成树脂、化学制品和有害物质,软木还能够被完全地回收或用于肥料的制作。粉色的窗框为软木表面增添了一丝亮色。在室内,浅灰色的树脂饰面为地面赋予了连贯性,同时为每个空间赋予清晰的边界。
The extension is clad internally and externally with cork that complements the existing brickwork on the original house and will weather to a silvery-grey over time. The cork achieves all required u-values without the need for any additional expanded foam insulation. It absorbs noise internally, is breathable, free from synthetic resins, chemicals or harmful materials and is fully compostable/ recyclable. Pink window frames provide a flash of colour against the dark cork. Internally a pale grey resin floor finish allows a continuous surface over both horizontal and vertical floor surfaces with crisp edges.
▼粉色窗框与软木表面,the pink window frame and the cork surface
全新的阁楼层包含了主人的卧室套间,二层空间也进行了翻新和改造。整个项目通过大胆的色彩和几何被定义出来,反映出设计团队和业主的有趣个性。
Throughout the house including the new loft level with master suite and renovated 1st floor – the project is defined by bold colours and patterns reflecting the playfulness of both design team and clients.
▼阁楼层的卧室套间, master suite on the new loft level
▼楼梯,stair
“这一项目完美地展现了建筑师令人惊叹的、考虑周到且独特的设计。我们超爱这座房子,它完全改变了我们的生活。在此之前我们从没想象过自己会生活在一个这么棒的空间里。”——来自业主的评价
“It’s a real testament to the amazing, thoughtful and completely unique design you guys produce. We are utterly in love with the house and all of you for completely transforming our lives. We could not have imagined living in anything as awesome as this without you.” -The clients H+D, 2019
▼背部立面,the rear facade
▼立面图和剖面图,elevation and section
▼一层平面图扩建前后对比,ground floor plan before and after extension
▼阁楼层平面图扩建前后对比,loft floor plan before and after extension
▼窗户结构细部,window detail
Architects: nimtim architects
Structural Engineers: SD Structures
Main Contractor: TW Space Conversions Ltd
Photography: Megan Taylor
Rooflight: Patent Glazing
Doors and windows: AJ & D Chapelhow
Cork:Ty-Mawr Lime Ltd
Kitchen units: Howdens Carcass
Kitchen doors: Ply stained with Auro Natural Stain
Worktop:Formica supplied by Baldwin Plastic Laminates
Kitchen Tiles: Claybrook.
Resin floor: Horizon Resin Flooring
客服
消息
收藏
下载
最近

















