查看完整案例

收藏

下载
概述
Description
法国顶级国际商业律师事务所Gide的新总部是巴黎近年来最重要的重建项目之一。该总部位于圣奥古斯丁广场,体现了巴黎“新陈代谢”式的自我重建,同时为以促进集体智慧为目标的企业提供了全新的办公空间。
The creation of the new headquarters of Gide, the top French international business law firm, is one of the most important redevelopments in Paris in recent years. Situated on Place Saint-Augustin, the headquarters embody the “metabolic” reconstruction of Paris within itself, as well as the creation of new corporate spaces for fostering collective intelligence.
▼项目概览,project overview
悠久的军事历史
A long gone prestigious military past
Pépinière军营建造于十八世纪末期并服务于法国禁卫军。在战后年代,为了满足法国军队日益增长的需求,军营的后翼被拆除,转变为一座办公楼与军营相结合的新建筑。该项目便是由这座历史悠久的军营建筑改造而来。
The Pépinière barracks were built at the end of the eighteenth century for the French Guards, the elite regiment responsible for the protection of the King of France. In the post-war years, in order to meet the growing needs of the French army, the rear wing was demolished and replaced by a building that combined offices and barracks.
▼城市环境,urban context
▼历史建筑立面,historical facade
▼新旧建筑立面对比,the new building contrasts with the historical building
01.营造集体意识
CREATING A SENSE OF COMMUNITY
横向重建促进交流与合作
Rebuilding horizontality to foster exchange and collaboration
高而窄的军营建筑体现出军队的纵向层级。PCA-STREAM事务所为该项目引入了全新的横向工作和管理方式,通过新的交通系统让使用者可以沿着建筑的长边移动。庭院后方的地面被拓宽至12米。电梯核心筒被集中在同一位置,以方便办公人员每天乘坐。
The tall, narrow barracks embodied the vertical hierarchy of the military. PCA-STREAM has turned this around to promote new, horizontal ways of working and managing. Circulation systems have been designed to allow fluid flow along the length of the building. The floors at the back of the courtyard have been widened to 12 metres. The lift cores are grouped together in one place so that members of staff encounter every day.
▼新的交通系统让使用者可以沿着建筑的长边移动,circulation systems have been designed to allow fluid flow along the length of the building
▼户外走廊,circulation system
▼新旧外观局部,exterior detailed view
公共区域所占比例被显著提高,为非正式的会面提供了充足的空间:厨房和宴会空间(每层);配有大尺寸餐桌的现代化餐厅;以及带有嵌入式团体讨论空间的大型图书馆。此外,场地中央还增建了名为“NoPa”的新建筑,作为公司的资源、交流和展示中心。
The proportion of common areas has been greatly increased, with the creation of spaces designed for informal encounters: kitchens and convivial spaces on each floor; a contemporary restaurant with large tables, which during the day transforms into an informal space for work and collaboration; a vast library with alcoves, where both groups and individuals can come together within the same place. And a central building, the “NoPa”, designed as a hub for resources, discussion and representation. A terrace crowns the pavilion, providing a venue for events.
▼公共区域,common area
▼休息区域,seating area
▼图书室,library
▼餐厅,restaurant
▼餐厅室内细部,interior detailed view
兼顾透明度与私密性
A union between transparency and confidentiality
围绕着庭院的立面完全由玻璃构成,令使用者即使从建筑的两端也可以看到彼此。整个空间的设计旨在促进员工之间的偶遇、互动和知识共享,为法律行业严谨私密的工作氛围赋予了一种范式上的转变。
Made entirely of glass surrounding the courtyards, the structure allows its occupants to see one another, even from the opposite sides of the building. The whole space has been conceived to promote encounters, interactions and knowledge sharing. This represents a genuine paradigm shift for the legal profession, which is based on discretion and confidentiality.
▼围绕着庭院的立面完全由玻璃构成,the structure is entirely made of glass surrounding the courtyards
新的员工办公室仍然保持了专人专用(或者由两至三人共享),但同时采用了透明的隔墙,有些则是可以用来书写的墙板。声学设计旨在保证对话的隐秘性。大部分的办公室都设有双向的内部入口、户外阳台以及露台。
The new staff offices remain individual (or are shared by two or three people), but the partitions are transparent, and some even have writable walls. The acoustics have been designed to guarantee that conversations are not overheard. Most of the offices benefit from a dual internal access points, outdoor balconies and terraces.
▼办公空间采用了透明的隔墙,the partitions of the new staff offices are transparent
02. 致力于促进员工健康
MAXIMIZING PHYSICAL WELL-BEING
除了中央花园、庭院和种有绿植的露台等一系列高品质的户外空间外,办公室还与每层楼的阳台形成连接。两个屋顶花园可以欣赏到蒙马特高地、城市屋顶以及圣奥古斯丁教堂的壮观全景。设置在立面外部的楼梯可通向露台,在促进偶遇的同时也能够鼓励体育锻炼。充满启发性的非正式空间能够提供灵活的工作环境,并完美地适应四季的气候和环境。
There is also excellent provision of outdoor spaces. Besides the central garden, the offices offer access to the balconies on every floor. The quiet of the courtyards, the planted terraces or two rooftop provide spectacular panoramic views of Montmartre, the Parisian rooftops and Saint- Augustin church. Circulation is given prominence with staircases on the façades, transforming them into true living spaces: they provide access to the terraces, foster encounters and encourage physical exercise. A multitude of informal and inspiring spaces, allowing people to work flexibly and in harmony with the seasons.
▼中央花园鸟瞰,aerial view to the central garden
▼外立面的落地窗为每间办公室带来了充足且优质的自然光照,Thanks to the floor-to-ceiling windows of the façade, each office benefits from optimal natural light.
▼设置在立面外部的楼梯可通向露台,circulation is given prominence with staircases on the façades providing access to the terraces
▼室外露台,outdoor terraces
03. 法式生活美学
EMBODYING THE FRENCH ARTS OF LIVING
Gide公司与PCA-STREAM建筑事务所进行了密切合作,希望能够将公司卓越、创新以及崇尚法式生活美学的价值观充分地展现在室内设计当中。建筑内采用了一系列高贵却不张扬的材料,如Charmot石灰石饰面、蓝色Buxy石灰石和大理石,以及结合了古旧黄铜的金属制品,贯穿室内的木制托架为空间赋予韵律。公共空间借鉴了住宅和酒店的装饰风格,搭配以优雅的窗帘以及量身定制的装饰品和灯具。
Resulting from the close collaboration between Gide and PCA-STREAM, the interior architecture is founded upon the major values embodied by the law firm: excellence, innovation and the French art of living. The project therefore uses materials that are noble without being ostentatious: Charmot, blue Buxy limestone and marble, with antique brass for the metalwork. Like a red thread, the sycomore bracket provides the project with rhythm. The common areas reuse the aesthetic codes of the home and the hospitality industry, with the addition of elegant curtains and the tailor-made choices of decorative objects and hanging lights.
▼建筑内采用了一系列高贵却不张扬的材料,the project therefore uses materials that are noble without being ostentatious
▼接待台和大堂,reception and lobby
▼非正式会面空间,informal meeting area
▼家具和装饰细部,furniture detailed view
04.重新连接城市与自然
RECONNECTING THE CITY TO NATURE
新的Gide公司总部拥有近4500平方米的户外空间,其中一半以上覆盖以绿植。技术性的结构使屋顶能够为芳香植物提供生长环境,由专门从事城市农业的Topager园艺公司负责照料和维护。屋顶花园还能种植可食用作物,虽然产量不多,但在环境方面,则能够显著改善城市生物的多样性并优化雨水管理。中央庭院种植着大量的树木,邀请人们来此休息、午餐、交谈或工作。景观方面主要采用了由La Superstructure设计的穿越绿植的木质平台。
▼中央庭院,central courtyard
▼屋顶花园,roof garden
The new Gide headquarters boasts close to 4500m2 of outdoor areas, more than half of which is comprised of green spaces. Freed of technical structures, the rooftop becomes productive. Various aromatic plants grow there, requiring little watering and maintenance. They are cared for and harvested by Topager, gardener- agronomists specialized in urban agriculture. Though the amount of food produced, intended for onsite consumption, remains modest, it significantly improves urban biodiversity and optimizes rainwater management. The central courtyard is luxuriously planted, like an invitation to come and sit down to have lunch, to talk and to work. The landscape project creates the impression that nature is erupting from the floor through the wooden platform created by La Superstructure.
▼整体鸟瞰,aerial view
▼从屋顶花园望向教堂,view to the church from the roof garden
▼场地平面图,site plan
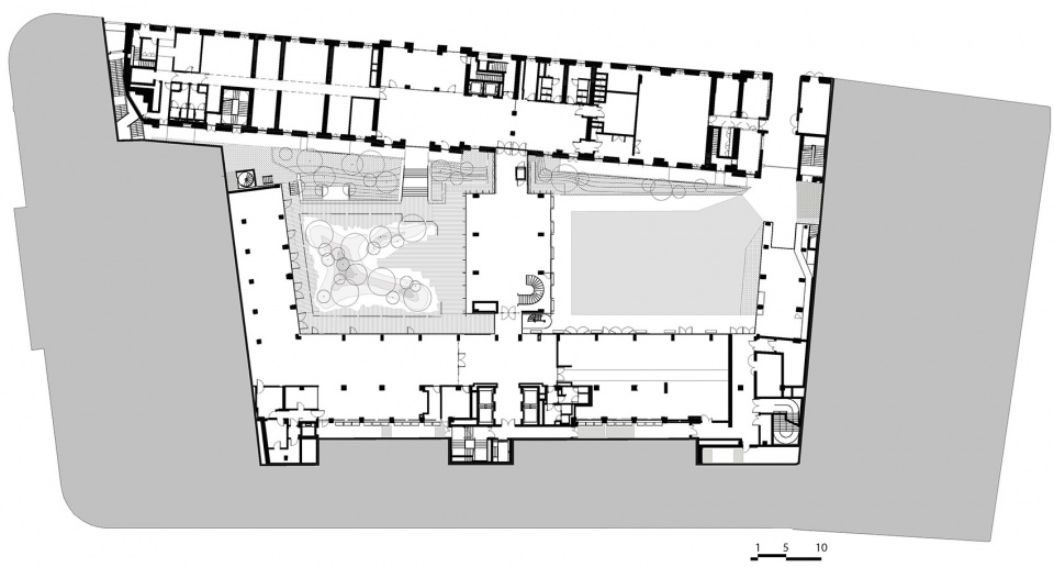
▼首层平面图,ground floor plan
▼屋顶平面图,roof plan
▼立面图,elevation
▼剖面图,section
Project name: LABORDE
Architect’s Firm: PCA-STREAM
Website:
Project location: 15 rue de Laborde, 75008 Paris – France
Completion Year: 2018
Gross Built Area: 18 879 sqm
Lead Architects: PCA-STREAM
Other participants
Assistant to the Contracting Authority: ARC
Contract Supervisor: Artelia
Structure: Kephren
Façades: VS-A
Environment: Green Affair
Plumbing/HVAC: Barbanel
Acoustics: A&C
Technical Inspection: Qualiconsult
Economist: Delporte
Health and Safety: LM3C
Fire Safety: CSD Faces
Landscaping: Topager, La Superstructure
External Lighting: LUMIERE STUDIO
Office Design: ARCHIMAGE
General Contractor: Eiffage
Façades: GOYER
Locksmithing: AGM
Air Conditioning: LEFORT
Electrician: FIBOR
Landscaping: Topager, Les Jardins de l’Orangerie
Photo credits:
Photographer’s website:
Brands / Products
1. Rocamat / Charmot and Buxy limestone
2. Silvera / Furniture
3. Kvadrat / Curtains
4. Philipps / Office lamps
5. Tai Ping & Bougainville / Carpets
客服
消息
收藏
下载
最近








































