查看完整案例


收藏

下载
项目在较低的预算内完成,充满了爱意和独特的幽默感。在有限预算下进行设计,设计师建议将操作范围缩减到最小,否则将无法实现舒适生活的可能性。例如在这种情况下,设计师保持墙面不变,只是进行了清洁和彻底的除尘。
▼室内空间概览,view of the interior
The project was completed on a small budget, with tons of love and undefeatable sense of humor. When working on modest budgets we encourage scaling back to a bare minimum, without which a comfortable existence would be impossible. In this case, for instance, we left the walls unchanged, just cleaned and thoroughly dusted them.
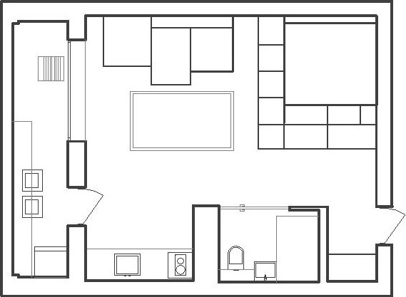
▼平面图,plan
▼使用双层玻璃窗的工作室空间,office with wide double-glazed units
▼起居室,living room
整个预算主要用在更新和布置业主使用时间最久的空间上。设计师在工作室中使用宽阔的双层玻璃窗替换原有旧窗户。厨房橱柜以现代酒吧为模型,虽然很小但是由不锈钢制成,具有很高的质量和性能。
The entire budget load was directed at replacing and preparing those areas where the owner spends most of his time. We installed wide double-glazed units instead of old windows in the office. The kitchen cabinets, although tiny, were made of stainless steel to high quality and performance standards, based on a modern bar model.
▼起居室细节,living room detail
▼卧室与起居室相连,the sleeping area is connected with the living room
▼卧室空间,sleeping area
▼起居室与卧室对面是厨房与洗手间,the kitchen and bathroom at the opposite of living room and sleeping area
▼厨房不锈钢橱柜具有很高的质量和性能,kitchen cabinets were made of stainless steel to high quality and performance standards
▼空间细节-室内墙面只进行了清洁和除尘,space detail-the wall is unchanged, just cleaned and thoroughly dusted them
▼轴测,axonometric drawing
Architects: Slava Balbek, Anna Kruglova
Project Area: 40 sq.m.
Project Year: 2017
Location: Kyiv, Ukraine
Photo credits: Andrey Bezuglov
客服
消息
收藏
下载
最近















