查看完整案例

收藏

下载
Creative Crews 的新工作室位于曼谷的Talad Noi 地区,位于两条弯曲小路的交界处,隔三栋排屋便是华人寺庙。项目对两栋相邻的排屋进行改造,作为公司成员办公基地。
Located in Talad Noi district, at a corner where two meandering alleys meet, three row houses down from a local Chinese shrine, stands the new Creative Crews office. The project involves the adaptation of two adjoining row houses into a new workplace and base for the crews.
▼办公室二层北侧的公共活动空间改为两层挑空,形成一个半室外庭院空间,the adjoining double volume on the north side of the second floor, forming a semi-outdoor courtyard
▼二层通高的半室外庭院空间,the double-height semi-outdoor courtyard
▼庭院中的黑板树不仅提供了遮阴空间,也为该区域提供了一些绿色,the white cheese wood tree in the courtyard provides shade and green space
▼二层半室外庭院内的备餐空间,the kitchen area in the semi-outdoor courtyard on the second floor
Talad Noi是一个老街区,建筑体量小而密集。整个地区最显著的特点便是曼谷传统商住排屋以及适合步行的街道网络。路边小贩众多,沿路可循。政府规划条件及法规阻止了发展高层建筑以及增加建筑密度。目前整个街区的发展基本限于将传统商业及手工业改为旅社和咖啡店。然而改变,不应该只在于这么有限的用途。传统商住排屋这种建筑形式可更多样化地利用。
Talad Noi is a heritage district with intimate urban scale. The tectonic comprises of and its most notable typology; the row house, small walk-able alleys network, and generous scatter of street vendors. Planning rules and regulations have hindered high rise developments and densification. Recent development has been limited to use change of row houses from traditional craft and trade to hostels and cafes. However, renovation needn’t be limited to these uses. The row house typology is truly versatile.
▼2层的会议室,既可以出租也可自用,the meeting room on the third floor, both for rent and own use
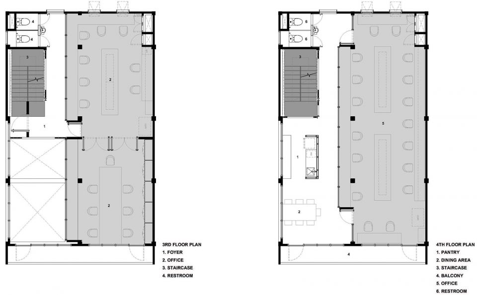
改造将建筑分成两半,正式的功能位于有空调的南边,辅助功能在自然通风的北边。1楼及其夹层空间将作为商业空间进行出租。2楼的会议室既可以出租也可自用。2楼北侧的公共活动空间改为两层挑空。花池中的黑板树为烧烤派对提供遮阴,同时也为这个缺少植被的区域提供一些绿色。3、4和5楼为工作室。顶层为员工宿舍,并带有一个活动平台,可以打乒乓球和健身。2、4和6楼都提供备餐室。
The altered building is split into two halves, with formal functions on the air-conditioned south side, circulation and supporting facilities on the naturally ventilated north side. The 1st and its mezzanine floors are retail spaces for let. A flexible meeting space on the 2nd floor is both rented out to the public and utilized by CC Staff with an adjoining double volume, semi outdoor courtyard used for public functions. The white cheese wood tree provides shade for those utilizing the grill for BBQ parties. Having green on the premise helps increase and contribute to the overall limited greenery of the neighborhood. The 3rd, 4th and 5th floor are offices. The top floor house dormitories for staff and has a sizable terrace home to a table tennis table and a monkey bar. Pan-tries can be found on the 2nd, 4th and 6th floor.
▼办公室空间,office space
▼五层办公空间,与图书室相连接,the office area connected with the library on the 5th floor
▼顶层的员工宿舍,the dorm on the top floor
建筑曾经易主多次,而每一任主人都留下了自己的痕迹。每一次的改造都成为时间的记忆并在这次的改造中保留下来。新增的部分与旧建筑脱离开,通过工业化的材质感和完成面。为了尽量增加交通流线空间,项目拆除了原来的水泥楼梯,插入钢制双跑楼梯。为了与地域性更好的结合, 在楼梯尽头设置当地常见的栅栏折叠门对空间进行灵活分区。墙面上旧楼梯的痕迹也作为回忆得到保留。前屋主留下的阳光满照的海岛蜡笔画现在成了四楼工作室里的建筑师的提神之物。
The existing building had numerous occupants previously; each have made their own impressions on the building. Each alterations and marks hold memories which has built up overtime. All the original finishes were left intact and new additions are treated as new layers which distinguishes itself from the existing via raw materiality and finish. To maximize circulation, the existing reinforced concrete stair-case was removed, and a new steel dogleg was inserted. To celebrate the spirit of the area, local elements such as the scissors gate line the stair well which serves as flexible partition. Traces on the adjoining walls are left un-rendered to serve as reminders of the original stair-case. Crayon drawing of a sunny day at a faraway island from the previous occupant is preserved and now serve as a rejuvenating sight for the architects on the fourth floor.
▼从办公室看新建的钢制双跑楼梯,新旧空间脱离开来,the new steel dogleg viewing from the office space, separating the left and new parts
▼新建的钢制双跑楼梯,在楼梯尽头设置当地常见的栅栏折叠门对空间进行灵活分区,the new steel dogleg, organizing the scissors gate line the stair well which serves as flexible partition at the end of the stairs
此项目认清并尽量保留建筑层层历史,在植入新元素时与旧体剥离开来,让历史有清楚的划分,并得以继续。项目也有效地组织空间来为新的功能服务。对建筑的处理手法既粗野有敏感。本项目也展示了如何利用传统商住排屋并将其赋予新用途。
The completed building recognizes and preserve multi layered history imbedded within the building essence and differentiate additions to al-low the continuation of this building timeline, whilst efficiently organizes new spaces to serve new functions. A sensitive approach with brute, edgy and raw result. It also exhibits the versatility of the row house typology to accommodate a variety of uses.
▼办公室外立面,exterior view
▼总平面图,site plan
▼一、二层平面图,2F and 3F plan
▼三、四层平面图,4F and 5F plan
▼五、六层平面图,6F and 6F plan
▼剖面图,section
项目名称:CC工作室
事务所名称:Creative Crews Ltd.
联系邮件:
项目主负责人:Puiphai Khunawat, Ekkachan Eiamananwattana
项目地址:泰国曼谷
完成时间:2017-2018
总建筑面积:650平方米
业主:Creative Crews Ltd.
预算:1000万泰铢
摄影:Art4D Magazine, Takdanai Raktawat (网站:
)
Project name: CC office
Architect’ Firm: Creative Crews Ltd.
Project Director: Puiphai Khunawat, Ekkachan Eiamananwattana
Project location: Bangkok, Thailand
Completion Year: 2017-2018
Gross Built Area (square meters or square foot): 650 sqm.
Client: Creative Crews Ltd.
Budget: 10 Million Baht
Photo credits: Art4D Magazine, Takdanai Raktawat (website:
)
客服
消息
收藏
下载
最近




















