查看完整案例

收藏

下载
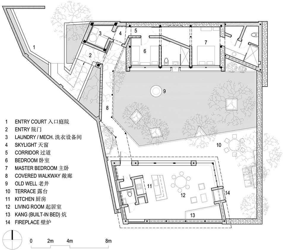
杏花径住宅位于北京以北约60公里的慕田峪长城脚下,靠近北沟村的北侧边缘,名字来自荒废的村舍四周遍布的杏树。这个院子现在已被改造为来此观光访古的游客可以租用的度假屋。前往用地要穿过一条从北向南的巷道,这在村里并不多见,大部分房子都座北朝南,背对北面的山麓。一棵杏树在巷道的尽头斜伸出来,迎接到达的访客,树后面是折返的短坡道,引向旧砖砌筑的悬挑门廊。推开院门,人便置身于有遮盖的敞廊底下,面对原有房子的石砌山墙,让人想起传统四合院入口处的影壁。
▼项目概览,project overview
Apricot Lane is located near the northern edge of Beigou Village under Mutianyu Great Wall, approximately 60 kilometers north of Beijing. The name comes from apricot trees dotting the abandoned homesite, now renovated into a rental house for visitors to the historical destination. The plot is approached down an alley from the north, an unusual sequence in a village where south-facing houses typically turn their backs against the northern mountains. Towards the end of the alley, the visitor is greeted at the entry court by a leaning apricot tree, behind which are short switched-back ramps leading up to a cantilevered gate structure built with used brick. Upon entering, one finds himself under a covered walkway, facing the stone end wall of the existing house, an arrangement reminiscent of the
yingbi
screen wall in a traditional courtyard house.
▼庭院一览,overview of the courtyard
▼住宅入口,house entrance
▼建筑外观,exterior view
▼室外廊道,corridor
原有房子是一间简陋的小屋,以当地建筑最常见的木结构、瓦屋顶和毛石墙建造。它以转折的敞廊和南面新建的起居空间相连,中间形成露天的庭院。房子的三个开间改造为两间卧室,主卧卫生间向东延伸出去,西侧加建的门廊结构同时也容纳了设备间。卧室从侧后方老房子和平屋顶门廊之间的交接处进入,意想不到的是,抬头透过天窗还可以瞥见远处的长城。
▼项目平面,project plan
The existing house is a humble vernacular hut built with wood structure, tile roof and stone walls. It is connected with new living spaces to the south by a turning covered walkway, forming an outdoor garden in between. The three bays have been converted into two bedrooms, with the master bathroom extended to the east, and the flat-roof gate structure added to the west also containing service functions. The bedrooms are accessed from the back at the junction between the old house and the gate structure, where a skylight provides an unexpected glimpse of the Great Wall in the distance.
▼原有房屋修缮前,the existing house before renovation
▼原有房屋修缮后,the existing house after renovation
这种侧面的连接方式使老房子的外立面得以完全保留,新装的断桥铝窗户隐藏在久经风雨的木窗格背后。窗下墙内侧、北墙外侧以及所有新建部分都安装了保温层。卧室里暴露着老旧的木结构梁柱,村里制作的琉璃瓦碎片给室内添加了亮色。
This side connection leaves the exterior facade of the old house completely untouched, with new aluminum windows installed behind weathered wooden lattices. Insulation has been applied under window sills from inside and along the north wall from outside, as well as in all new construction. The bedrooms’ interior features aged-old wood structure, enlivened by colorful fragments of
liuliwa
glazed tile made in the village.
▼原有房屋的卧室里暴露着老旧的木结构梁柱, the bedrooms’ interior features aged-old wood structure
▼洗手间,bathroom
在用地轮廓线斜边的提示下,南侧体量构成平行四边形的平面,里面容纳了开放式厨房、就餐和起居区域、内外穿透的壁炉和类似于传统炕床的砖砌卧榻。空间的四周被不同高度的窗户所环绕,将光线从各个方向带入。
Guided by the slanted geometry of site boundary, the south volume forms a parallelogram in plan, containing an open kitchen, dining and sitting areas, a see-through fireplace, and a built-in sleeping platform similar to a traditional
kang
. The space is surrounded by windows at different heights on four sides, bringing in light from all directions.
▼原有房子的对面是新建部分,opposite to the old house is the new building
▼空间的四周被不同高度的窗户所环绕,将光线从各个方向带入;the space is surrounded by windows at different heights on four sides, bringing in light from all directions
屋顶和老房子形成对比,以钢结构支撑,直立锁边铝板覆盖的单一平面朝两个方向倾斜,升起到东北角的最高点。从室内看,金黄色的麦秸板天花引导人的眼睛越过庭院对面的老房子,指向北面山麓和长城的极佳视野。
In contrast to the old house, the roof is supported by steel structure and covered with standing-seam aluminum panels in a single plane, tilted three-dimensionally and reaching the highest point at the northeast corner. From inside, the golden wheat strawboard ceiling leads the eyes beyond the old house across the garden, and towards the spectacular views of the northern mountains and the Great Wall.
▼项目夜景,the project night view
▼项目模型照片,project model photos
▼剖面,sections
设计公司:
萨洋设计
设计师:萨洋
设计顾问:
在场建筑
设计团队:钟文凯,孙晓倩,李坦然,张梦瑶
地点:中国北京市怀柔区北沟村
用地面积:404平方米
建筑面积:172平方米
建成时间:2016年
客户:私人
摄影版权:
Design Firm:
Spear Designs
Designer: Jim Spear
Design Consultant:
Spacework Architects
Design Team: Zhong Wenkai, Sun Xiaoqian, Frank Lee, Zhang Mengyao
Location: Beigou Village, Huairou District, Beijing, China
Plot Area: 404 sqm
Building Area: 172 sqm
Project Year: 2016
Client: Private
Photo credits:
客服
消息
收藏
下载
最近

























