查看完整案例

收藏

下载
近日,哥本哈根市内一座新建的可以容纳约900名国际学生的公立学校正式对外开放,该学校位于几栋历史悠久的嘉士伯公司大楼围合出的场地上。这座学校名为哥本哈根欧洲学院(European School Copenhagen),是一所新建的国际学校,致力于改善现代学习环境,同时通过开放的公共空间使学校和谐地融入城市环境之中。本项目由建筑事务所NORD Architects和Vilhelm Lauritzen Architects共同设计完成,他们与建筑商BAM Denmark和EKJ Engineers于2015年一道拿下了这个项目。
Tucked between Copenhagen’s historic Carlsberg buildings a new public school recently opened for around 900 students with international background. Designed by NORD Architects and Vilhelm Lauritzen Architects, who won the competition in 2015 in team with the constructor BAM Denmark and EKJ Engineers, the European School Copenhagen is a new international school that promotes modern learning landscapes whilst merging school and city together through open public spaces.
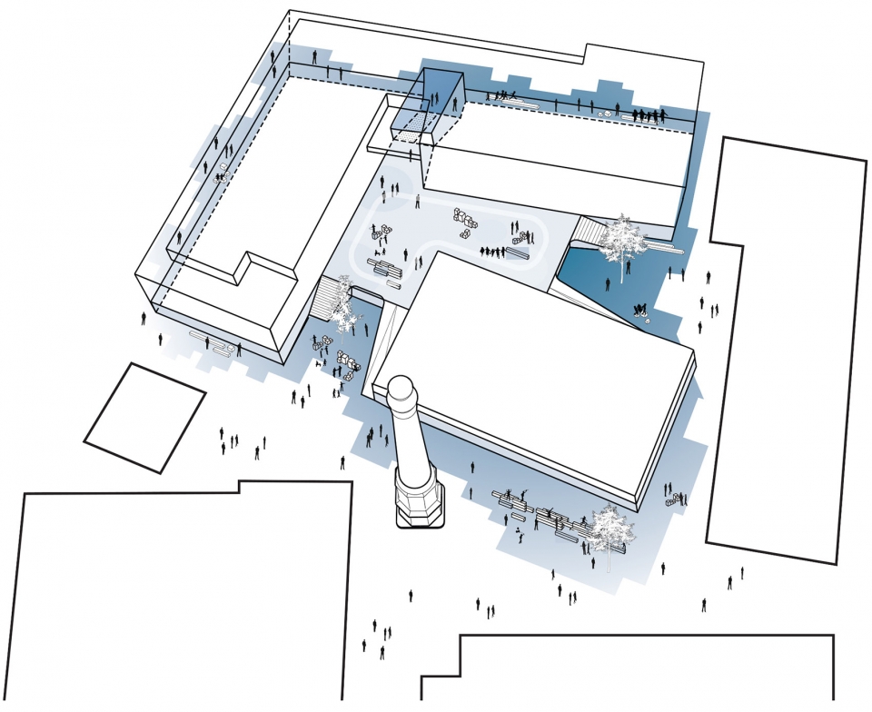
▼建筑鸟瞰图,bird-eye’s view
哥本哈根欧洲学院由哥本哈根市、Realdania、Novo Nordisk基金会、Nordea基金会和Industry基金会共同出资建造而成,拥有多元化的研究项目,这些项目由哥本哈根市和一些杰出的丹麦国际公司提供各方面的支持。学校的国际视野立足于嘉士伯城本土的文化历史等,在设计过程中还关注了当地的一些地标性建筑和工业啤酒厂的悠久历史。
The European School Copenhagen is financed by the City of Copenhagen, Realdania, the Novo Nordisk Foundation, the Nordea Fund and the Industry Fund and has a multicultural reach supported by the city of Copenhagen and distinguished Danish international companies. The international perspective of the school is embedded in the local district of Carlsberg City with several architectural landmarks and a long history of industrial brewery site.
▼建筑俯视图,学校拥有丰富的屋顶室外空间,top view, the school has a lot of outdoor rooftop spaces
藏在历史和本土环境之中的国际学校 | International school in a historic and local environment
现有的嘉士伯公司大楼在其环境之中十分显眼,砖砌的外墙和内部功能仿佛在讲述历史。本项目基地便位于这些大楼之间的空地上,悠久的周边历史环境奠定了本项目的设计基调。
The historic surroundings set the outline of the new school between the existing building mass at Carlsberg. The site is an attractive neighbourhood with outstanding and storytelling architecture founded in specific functions – and reflecting a fascination of decorative brickwork.
▼北沿街立面,选择砖砌外墙,呼应周边环境和悠久的历史,northern street view, the school uses brick facade to respond to the surroundings and long history
▼位于北沿街立面上的校园入口,the north entrance of the school
▼南沿街立面,southern street view
▼从南侧看学校的体育馆,sports hall view from the southern outside
▼体育馆细节,details of the sports hall
▼学校南侧入口,模糊了校园与城市的边界,the south entrance, blurring the boundary between the school and the urban context
▼二层屋顶活动平台,the rooftop terrace on the second floor
▼外立面细节,details of facade
▼砖墙细节,details of brick walls
以学习楼梯和学习空间为依托的社交活动 | Social interaction through learning stairs and spaces
学校内设有两个主要的楼梯,所有的学习空间都以两个楼梯为中心布置。这两个楼梯垂直贯穿五层楼,将所有教室和不同年级的学生都联系在了一起。它们不仅可以作为不同规模的教学空间,还可以充当多功能休息区。此外,它们还为不同区域和空间内的教室提供了视觉联系和视觉连续性,同时突出了作为学校中心和社交聚会空间的食堂。
▼室内楼梯,可以充当教学空间和多功能休息区,the learning stairs which can act as teaching areas and multifunctional recreational spaces
哥本哈根欧洲学院作为新城市景观的一部分,将自身完美地融入嘉士伯城,模糊了校园和城市的边界。体育馆则作为过渡区的一部分,与各楼层的屋顶景观相连,从而使学校师生能够享受室外的休闲、活动和游乐空间。
The European School Copenhagen is integrated into Carlsberg City as part of a new urban landscape without bold borders between school and city. The sports hall is part of this intermediate zone which is connected to the roof landscape that rises in different levels with recreational spaces, activities and playgrounds.
▼室内学习空间,围绕着楼梯布置,interior study spaces are arranged around the learning stairs
学校的所有功能空间都是共享的,从而不仅在其与城市的关系上创建了一个双赢的局面,更在城市空间内创造了一种社会可持续性。
The relation between the institution and the city becomes a ‘win win-situation’ where spaces, functions and square meters are shared, thus creating a social sustainable utilisation of valuable urban areas.
▼轴测图,axon
▼室外景观轴测图,axon of outdoor spaces
▼场地流线分析图,accessibility diagram
▼总平面图,site plan
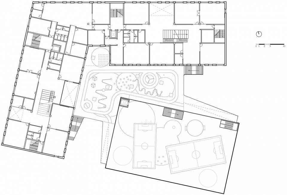
▼一层平面图,1F plan
▼二层平面图,2F plan
▼北立面图,north facade
▼西立面图,west facade
▼A-A剖面图,section A-A
▼B-B剖面图,section B-B
▼C-C剖面图,section C-C
Location: Ny Carlsberg Vej 99, DK-1799 Copenhagen
Client: City of Copenhagen, Carlsberg Byen P/S
Year: 2015 – 2018 (1. prize competition / opened officially 29th November 2018)
Area: 14,000 m2 (10,000 m2 underground parking. Not part of the school)
Architects: NORD Architects and Vilhelm Lauritzen Arkitekter
Landscape: NORD Architects
Engineer: EKJ Engineers
Total contractor: BAM Danmark
Interior: JJW
Photographs: Adam Mørk and Hampus Berndtson
客服
消息
收藏
下载
最近






























