查看完整案例

收藏

下载
曾经,活动板房内的生活环境极度糟糕,夏天极热,冬日极冷,但本项目在设计和建造的过程中解决了这个问题。近日,建筑事务所Modscape与咨询公司Sensum Group紧密合作,为墨尔本的Keilor小学设计并建造了一座新的预制建筑。这座可持续的模块化建筑极具创新性,容纳了四个教学空间、一间图书室、一个艺术空间,以及数个学校师生所需的相关设施。
Gone are the days of the crazy-hot-in-summer/freezing-cold-in-winter ‘portables’ of previous generations. Working closely with Sensum Group, Modscape recently designed and constructed a new prefabricated building for Keilor Primary School. The modular solution is sustainable and innovatively designed to include four teaching spaces, a library and an arts space, plus associated amenities for students and staff.
▼建筑鸟瞰图,bird-eye’s view
维多利亚政府制定了一个名为“维多利亚州学校石棉清除项目”的计划,该计划是有史以来规模最大的校园建筑石棉清除项目,并致力于在未来3年内建造100多座校园建筑。而本小学所隶属的“维多利亚政府永久性模块化校园建筑项目”便是“维多利亚州学校石棉清除项目”的下一阶段。
The project is part of the Victorian Government’s Permanent Modular School Buildings Program – the next stage in the Victorian School Asbestos Removal Program responsible for the largest ever removal of asbestos from Victorian schools and for the delivery of more than 100 school projects over the next three years.
▼建筑外观,exterior view
这座永久性的模块化建筑快速而高效地达成了“维多利亚政府永久性模块化校园建筑项目”的要求。该建筑在规划和施工方面所需的时间较少,因而可以快速更替含有石棉的旧建筑,从而减少对学生、工作人员和教学活动的干扰。
The new permanent modular building offered a fast and efficient solution for the school. With less time needed for planning and construction, the replacement of the older buildings containing asbestos could occur quickly- reducing disruption to students, staff and teaching programs.
▼建筑后侧外观,exterior view of the rear building
通过预制的建造方法,该建筑的施工周期被压缩至10周,仅为传统建筑的一半。位于布鲁克林的Modscape模块建造中心负责预制构件的制作,完成的构件一天便可以组装完毕。现场施工和景观则在建筑被运至基地后不久完成。
By completing the construction offsite, the build process was up to half the time required when compared to a traditional build. The construction was complete in just 10 weeks, off-site at Modscape’s modular construction hub in Brooklyn, with the modules being installed in a day over the weekend. Onsite and landscaping works were completed shortly thereafter.
▼建筑主入口立面,facade with main entrances
拐角处弯曲的墙面不仅增加了空间的趣味性,还保障了孩子们的安全,木质饰面则强调出了建筑的入口。在建筑内部,色彩运用非常大胆,不仅增强了设计的活力,还能激发学生的创造力。
Recessive curved walls add dynamic interest and edge whilst the timber cladding acts as a wayfinding solution to define the entrances. Internally, a bold material palette enhances the design’s vibrancy and encourages creativity.
▼木质饰面则强调出了建筑的入口,the timber cladding acts as a wayfinding solution to define the entrances
▼教学空间,the teaching space
▼图书室,the library
▼艺术空间用色大胆,激发学生的创造力,the arts space features a bold palette, encouraging creativity
▼艺术空间墙面细节,the wall details of the arts space
活动板房室内环境极度恶劣的时代已经过去了。建筑师在本具有前瞻性的项目中使用了高性能的隔音板和双层玻璃,为今天和以后的学生创造出一个舒适的学习环境。
Gone are the days of the crazy-hot-in-summer/freezing-cold-in-winter ‘portables’ of previous generations. High-performing acoustic panelling and double-glazed windows are used in forward-thinking volumetric modules, creating a comfortable learning environment for the students of today and for generations to come.
▼室内走廊空间,拐角处的墙面增加了空间的趣味性,interior corridors, recessive curved walls add dynamic interest and edge
▼走廊空间细节,the interior corridor details
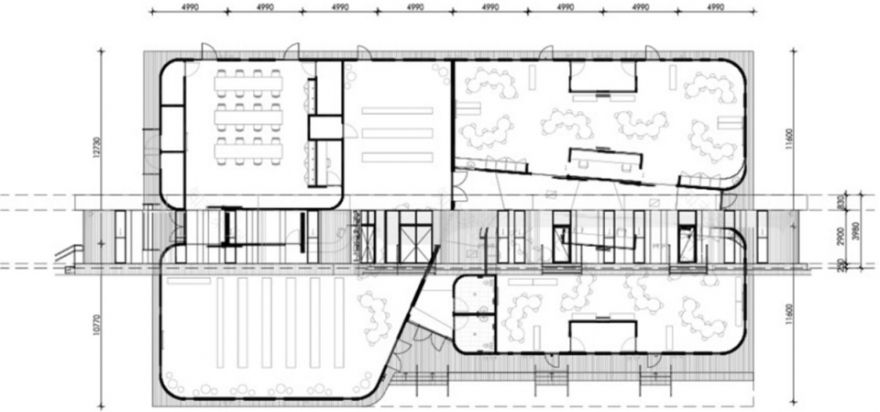
▼平面图,floor plan
Architects: Modscape
Location: Melbourne, Australia
客服
消息
收藏
下载
最近



















