查看完整案例

收藏

下载
上海广富林文化遗址是目前经考古发现的上海多处遗址中内容最丰富,最具保护与开发价值的古文化遗址,被称为“上海之根”。该遗址证明了在上海这片土地上5000年前就有先民在这里繁衍生息形成独特的文化,属于中国国家重点文物保护单位。上海广富林文化遗址展览馆项目位于广富林遗址公园核心区内。遗址文化展示馆用地西面为广富林遗址保护区,东面为人工景观湖,北侧为度假酒店,南侧为低层水乡商街。
Shanghai Guangfulin Cultural Site, which is called “the root of Shanghai”, is the most valuable ancient cultural site for protection and development with the most abundant content among the sites in Shanghai that have been discovered. The site proves that there are ancient inhabitants living on the land of Shanghai 5000 years ago to form a unique culture. It is a key cultural relics unit under State protection. The project of Shanghai Guangfulin Cultural Relics Exhibition Hall is located in the core area of Guangfulin Site Park. To its west is Guangfulin Site Protection Area, to its east an artificial landscape lake, and to its north is the resort hotel. To its south is the low-rise commercial street of the waterside town.
▼广富林遗址文化展示馆鸟瞰,aerial view of Shanghai Guangfulin Cultural Relics Exhibition Hall
整个项目布局在人工湖面之上,以文化展示馆、文化演艺中心、文化交流中心的三组建筑形成一条南北向的主轴线,通过总体布局上的纵轴线贯穿三组建筑群体,形成连续的空间序列,三组建筑也寓意传统中式建筑中官宅三进院落的形式。无论置身于建筑群体的何处,都能感受到独特的空间韵味。外部形象为三组漂浮在水面上的两坡大屋顶。两坡顶和圆顶建筑形式灵感来源于新时期时代先民的房子,立面细节又融入中国唐宋之后形成的传统古建筑的特征。整组建筑群落是整个遗址公园的中心景观。
The whole project is situated above the artificial lake surface. The three groups of buildings, namely the Cultural Exhibition Hall, the Cultural Performing Arts Center and the Cultural Exchange Center, form a north-south principal axis. The longitudinal axis of the overall layout runs through the three groups of buildings to form a continuous spatial sequence.The sequence of the three groups of buildings also symbolize the form of the three-door courtyard of the official Chinese building in the traditional Chinese architecture. No matter where you are in the building complex, you can feel the unique appeal of the space. The exterior image consists of three sets of large, sloping roofs floating on the surface of the water. The form of the two-sided roof and dome is inspired by the houses of the neolithic ancestors, and the details of the facades are integrated into the characteristics of traditional ancient buildings formed after the Tang and Song Dynasties in China. The whole building group is the central landscape of this site park.
▼文化展示馆、文化演艺中心、文化交流中心形成南北向的主轴线,Cultural Exhibition Hall, the Cultural Performing Arts Center and the Cultural Exchange Center form a north-south principal axis
主要展馆及一些配套空间设计建在水下,有效减小了地面建筑的体量,加上分散的建筑群落布置使得整个建筑与周边水乡小尺度的建筑更好的协调融合。
The main pavillion and some supporting space are designed to be built underwater, effectively reduceing the volume of the ground building, and the scattered architectural community layout makes the whole building better integrated with the small-scale buildings of the surrounding waterside villages.
▼主要展馆及配套空间建于水下,main pavillion and some supporting space are designed to be built underwater
室内空间提炼和演绎了中国最传统的木结构建筑内部空间。展馆以“上海之根,海派之源”为主题,人们从圆形大厅走入展厅,逐渐步入水下,迂回曲折的步道两边展示了沧海桑田的变化与发展,以一个个经典场景按照时间线脉络让所有人看到了上海从一个原始村落,到广富林古镇、华亭县,再到松江府,直至大上海滩的数千年的历史巨变过程。
The interior space abstracts and interprets the interior space of China’s most traditional wood-framed buildings. The theme of the pavilion is “The Root of Shanghai, the Source of Shanghai”. People walk into the exhibition hall from the rotunda and gradually stepped into the water. The two sides of the winding footpath show the changes and development of the vicissitudes of life. With a series of classic scenes in line with the timeline, everyone can see the historical transformation of Shanghai from a primitive village, to ancient Guangfulin town, to Huating county, to Songjiang City, and finally to the metropolis of Shanghai over thousands of years.
▼游客从圆形大厅逐渐步入展厅及水下空间,visitors walk into the exhibition hall from the rotunda and gradually stepped into the water
▼圆形大厅内部,interior of the rotunda
该项目建成后已经成为上海市新的文化地标,每天接待海内外大量游客参观访问。
After its completion, the project has become a new cultural landmark in Shanghai,receiving a large number of tourists from home and abroad every day.
▼建筑夜景,night scene of the buildings
▼从展示馆区域看向遗址保护区,view from the exhibition area to site protection area
▼建筑细节,detail
▼总平面图,site plan
▼展示馆南立面图,South facade of Cultural Exhibition Hall
▼展示馆北立面图,North facade of Cultural Exhibition Hall
▼演艺中心东立面,East facade of Cultural Performing Arts Center
▼演艺中心南立面,South facade of Cultural Performing Arts Center
▼交流中心南立面,South facade of Cultural Exchange Center
▼交流中心东立面,East facade of Cultural Exchange Center
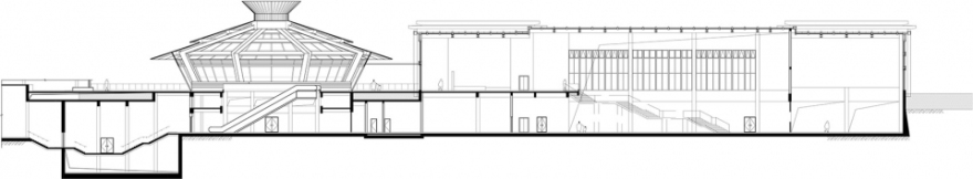
▼展示馆剖面图,Section of Cultural Exhibition Hall
项目名称:上海松江广富林遗址文化展示馆
建筑事务所:CCDI悉地国际
事务所网站:
项目完成年份: 2018年
主创建筑师:洪斌、杨铭杰
项目详细地址:中国,上海,松江新城
建筑面积(平方米):40,073㎡
设计团队:张博、李蓉、罗葆滢
摄影师: 章勇
业主:上海市松江区文化广播影视管理局
Project Name: Shanghai Songjiang Guangfulin Site Cultural Exhibition Hall
Architect:CCDI
Website:
Completion: 2018
Lead Architects: Hong Bin, Yang Mingjie
Design Team: Zhang Bo , Li Rong, Luo Baoying
Project address: Songjiang New City, Shanghai, China
Total Area: 40,073㎡
Photo credits: Zhang yong
Client: Shanghai Songjiang District Administration of Culture, Radio, Film and Television
客服
消息
收藏
下载
最近


















