查看完整案例

收藏

下载
DOX+建筑群使捷克布拉格的DOX当代艺术中心得以扩张。原本以展览为主的建筑扩展为包含舞蹈、音乐、电影和建筑学校区域的建筑群。DOX+包含三栋建筑,建筑学院行政楼、音乐舞蹈实验厅和舞蹈排练室。从建筑的角度看,这是一个统一的集群。这一原则通过统一的灰色和各部分之间流畅的联系象征性地表达出来,这个综合体可以看做是一个整体的结构雕塑。
The DOX+ complex of buildings expands the DOX Contemporary Art Centre in Prague, the Czech Republic. The original complex focusing on exhibition areas was expanded by special areas for dance, music, film and a school of architecture. DOX+ consist of three buildings: administrative with the school of architecture, an experimental music and dance hall and a dance rehearsal room. The buildings are a single unit from the architectural aspect and this principle is symbolically expressed by the unified grey colour and fluid interconnection of all parts into one whole. As a result, the complex can be perceived as a single structured statue.
▼DOX+当代文化艺术中心鸟瞰,aerial of DOX Contemporary Art Centre
▼艺术中心建筑群整体,overall view of contemporary art centre
ARCHIP建筑学院由行政区、入口大厅、俱乐部和餐厅共同组成。这栋建筑来自于对1970年代原有建筑的更新改造,原有的内部核心类型布局和开放式布局被保留下来。内部翻新尊重原来建造时期使用材料(油毡、木饰门面、水磨石……)。实验音乐舞蹈厅和舞蹈排练室使用粗混凝土构造。钢筋混凝土建筑“穿”上了一层柔软的立面,使其免于过冷过热的温度变化。绝缘羊毛被柔性绝缘膜覆盖,以均匀网格形状锚固在混凝土上。立面吸收了从大厅溢出的残留噪音,减轻了住宅庭院的噪音负担。由于这种图案形状,这两个大厅让人联想到两个大沙发。选择这种软垫式的家具图案是因为它可以有效地沿着织物表面分布拉伸力并且它的延伸对结构性能没有负面影响。因此,塑料薄膜在极端严寒的天气中不会因收缩而撕裂,并且当阳光照射表面温度升高时,也不会失去张力。
▼多功能厅与排练室,multifunctional hall and rehearsal room
▼排练室,rehearsal room
▼钢筋混凝土表面穿上一层柔软的立面,the reinforced concrete buildings are “clothed” in a soft facade
The administrative area, with entrance lobby, club and restaurant, serves as the ARCHIP school of architecture. This building originated on the basis of renovation of the original building dating from the 1970s, and the typological arrangement of its inner core and open layout have been preserved. Renovation of the interior respects the materials used at the time the building was constructed (linoleum, wood veneer doors, terrazzo….). The experimental music and dance hall and dance rehearsal room are cast using béton brut. The reinforced concrete buildings are “clothed” in a soft façade which protects them against freezing or overheating. The insulating wool is covered in a flexible insulating membrane which is anchored to the concreted in the pattern of a regular grid. The façade absorbs residual noise escaping from the hall and reduces the acoustic burden on the residential courtyard. Thanks to the pattern, which is based on furniture upholstery, the halls are reminiscent of two large sofas. An upholstered furniture pattern was chosen for its effectiveness in distributing tensile forces along the surface of the fabric. Enlargement of this pattern had no negative effect on its structural properties and, as a result, the plastic film does not tear in extremely cold weather as its shrinks, and tension is not lost when surface temperatures rise in the sunlight.
▼入口大厅,entrance area
▼建筑学院内部,interior of architecture school
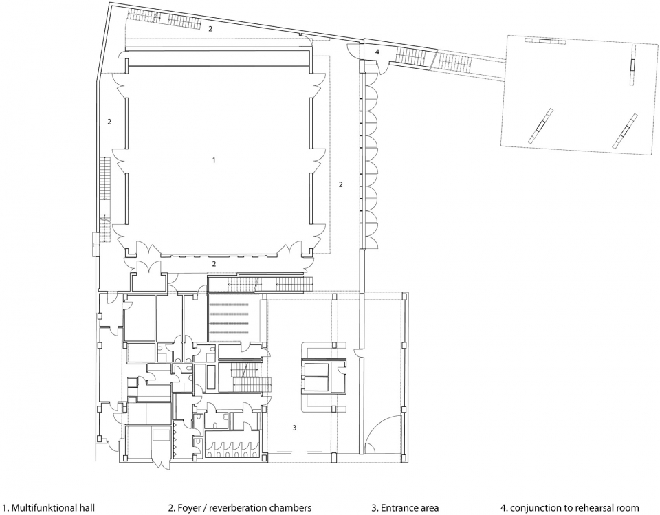
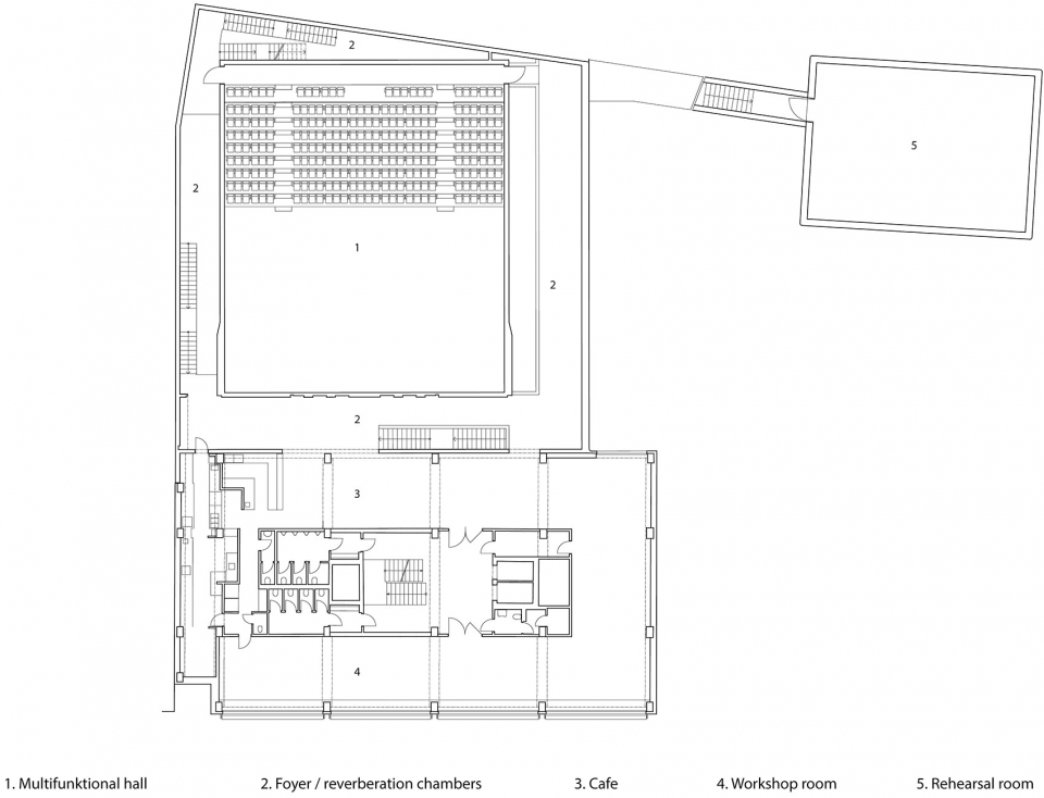
多功能厅音响效果多变,像乐器一样可以根据具体表演需要进行调整。天花板下的三面可旋转面板和厅室就是这个用途。三角面板表面可以吸收、扩散和反射声音,并且可以通过旋转来改变天花板的声学特性从而改变整个大厅的声学效果。为了扩大衰减效果,主厅被一圈厅室包围,在特殊表演情况下,这些厅室可以作为衰减室。在主厅体量中增加这些区域使得衰减效果显著增强,尤其是较低频率的声音。方形的平面布置意味着墙壁不需要覆盖隔音板。多功能厅可以容纳550名客人,并且很快因其音响效果而闻名。目前它也用作参考录音棚。大厅的技术设备包括可伸缩式观众区,升降幕布舞台,激光投影仪等设备。
The hall has variable acoustics and can be compared to a musical instrument which can be tuned depending on the needs of the specific performance. The rotating three-walled under-ceiling panels and foyers are used for this. The three-walled panels are supported by a sound absorbent, diffuse and reflective surface and can be rotated to modify the acoustic properties of the ceiling, thereby changing the acoustic parameters of the entire hall. In order to extend the fadeout effect, the main hall is surrounded by a ring of foyers which can be used as fadeout chambers in the case of special performances. The addition of these areas to the volume of the main hall results in a significant extension of the fadeout period particularly in the lower frequencies. The square floor plan also means there was no need to clad the walls in acoustic panelling. The hall has seating for 550 guests and has become famous for its acoustics during its brief existence. It is currently also used as a reference recording studio. The technical equipment of the hall includes an extensible auditorium, stage technology with curtains with elevation, laser projector and other equipment.
▼用于音乐舞蹈表演的多功能厅,multifunctional hall used for music and dance performance
▼拥有可伸缩的观众席,the hall includes an extensible auditorium
▼可容纳550人的观众席,auditorium can hold 550 guests
▼厅内舞台,stage
▼天花板下的可旋转面板,rotating three-walled under-ceiling panels
▼排练室,rehearsal room
▼大厅周围一系列的厅室,main hall is surrounded by a ring of foyers
▼厅室可增强声效衰落,foyers can extend the fadeout effect
▼厅室细部,foyer detail
大厅屋顶是一片草地,用于休闲、户外设施或作为室外表演场地。听众席上方有一座吊桥供杂技舞蹈使用。舞蹈排练室平面尺度与主厅舞台相同,在内庭院里立在对角柱上“舞蹈”。这些柱子的形状不是随机的,它避免了干扰交通流线和在地板下安装技术设施。
The roof of the hall is a grassy meadow used for relaxation, outdoor installations or simply as a place for outdoor performances. There is a suspended bridge over the auditorium for acrobatic dancing. The dance rehearsal room has a floor plan with dimensions identical to the stage in the main hall. It “dances” above the inner courtyard on diagonal columns. The geometry of these columns is not random, but avoids the traffic plan and technical installations below the floor tile.
▼多功能厅上的草坪屋顶,grass roof of the multifunctional hall
▼草坪可用于休闲和室外表演,grass roof used for relaxation and outdoor performance
▼1970s旧建筑改造成的建筑学院,architecture school on the basis of renovation of the original 1970s building
▼声学分析,variable acoustics analysis
▼草图,sketch
▼模型,model
▼轴测,axonometric drawing
▼场地平面图,site plan
▼首层平面,ground floor
▼一层平面,first floor plan
▼标准层平面,typical stoery plan
▼剖面,section
▼立面构造细部,facade structure detail
1. Project Name: Centre for Contemporary Art DOX+
2. Architect firm: Petr Hájek ARCHITEKTI
Architects: Petr Hájek, Tereza Keilová, Cornelia Klien, Benedikt Markel, Martin Stoss
3. Office website:
martin@stoss.eu
,
hajek@hajekarchitekti.cz
5. Completion year: 2018
6. Built area: Site area: 2600m2, total gross floor area: 5450m2
7.Project location: 50.106868, 14.448057
Address: Poupětova 1339/3, Prague 7, Czech Republic
8.Photographers: Benedikt Markel
Jan Slavik
Tomáš Vocelka / Economia
Petr Hájek ARCHITEKTI
(see photos metadata)
9. Other technical info:
EU Mies Award 2019 Nominee
Main contractor: IMOS Brno, a.s. (Project manager Petr Groda
GrodaP@imosbrno.eu
)
Acoustics, sound: AVT Group a. s. (
https://avtg.cz/
), acoustician: Martin Vondrášek (
mv@avtg.cz
)
Contractor for foil facade: IzoDol s.r.o. Jiří Doležal (
j.dolezal@izodol.cz
)
10. Manufacturers / Products
Special stage floor (in multipurpose hall and rehersal room): Tuechler (
Project Manager: Sidon Schlehr,
schlehr@tuchler.cz
)
Aluminium doors, sliding doors: Aluprof
Metal doors and windows: Jansen
Floor in administrative part: Tarkett Linoleum
Wall and ceiling cladding: Heraklith
PVC foil on facades: FATRAFOL 810/V (
Project manager:
rrothbauer@fatra.cz
)
Equipment of multipurpose hall:
laser projector: Epson EB-L25000U
mixing console: Yamaha QL5
reproductors: L-Acoustics KIVA II
light conole: MA Lighting grandMA2 ultra-light
客服
消息
收藏
下载
最近

































