查看完整案例

收藏

下载
玄关的鞋柜为不同灰度的岩板制成,880mm宽的足够一个人的简单收纳。较小的尺寸也是为了匹配客厅的突出墙体宽度,使整个开放式的空间整齐统一。
开放式的客厅+娱乐室依旧方正有序,灯带及地台的设计空间上分隔了功能分区。整体黑白灰的配色将单身公寓该有的高冷气质展现无余。
24平方的开阔客厅配上大景落地窗,灰黑色地砖上几乎满铺浅咖色的地毯。空间没有过多的装饰,通过简约的空间设计,达到以少胜多、以简胜繁的整体效果。
蓝色的皮质沙发及茶几小摆件,显得高冷有格调。
绿色的绒布窗帘,成为一角的亮点,散发着家该有的温馨。
开放的空间使背景墙的设计花费了些心思,白色的大理石纹恰到好处的容纳了电视机。虽为镂空的设计,背后娱乐室空间的两边收纳柜成为前置的背景,丝毫不会显得杂乱。
客厅望向餐厅,所有的空间功能一览无余。餐厅面同为落地的超强采光,宽敞通透。
开阔的空间缩短了过道的长度,娱乐室高出的地台设计了黄色灯带,不失为一处引人的小景,白色的波打线十分别致。
餐厨一体的设计,放大了空间的面积,岛台的设计,既可以做吧台,又可以成为聚餐的操作台。左手边一整面墙的餐边柜,中部留空,兼具餐厅收纳与装饰。
餐边柜设计虽为成一整面墙,却呈现了三种不同的形式。容纳了不同物品的收纳,同时又不失趣味。开放式的茶色玻璃配上暖黄色的灯光,满屏高级感。
爱生活、爱自己,一个人也是十分惬意。
厨房区域“L”型的橱柜设计,操作动线流畅,通铺的灰黑色地砖,显得高级时尚。
厨房区域一则为玄关柜的背板,橱柜的设计采用与客厅沙发相呼应的蓝色为主色调,岩板的纹路使空间显得高级且统一。
三两好友的通宵,娱乐室属于一群人的狂欢。
两边柜体的设计,电路的预留,后期即使转变功能,也会满足基本的需求。
主卧温馨舒适,床头背景墙的不规则硬包线条划分,使整个空间简洁素雅。床边的特色床头小桌,点缀得恰到好处。
主卧套房的全貌基本呈现,独立的卫生间+衣帽间配上浅灰色的墙面,整体中性色系的感觉略显时尚。整个空间多为同色系的柔和色调,营造出静谧柔和的生活气息。
双台盆大浴缸,共享清晨时光,大大提升了舒适性和闲享度。
| 原始户型
①户型方正,功能分区划分合理
②南北通透,采光俱佳
③过道空间过长,略微影响采光
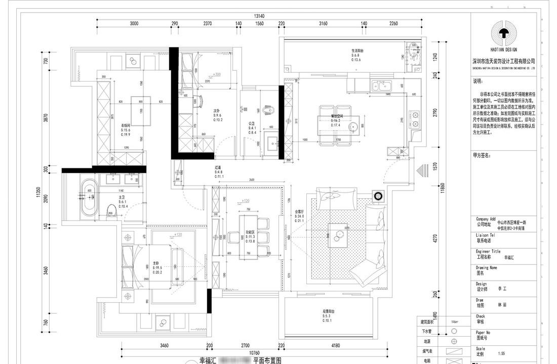
平面布置图
①厨房与餐厅打通,做开放式的餐厨空间,客餐厅视野开阔
②一人居住,将一间卧室与客厅做半开放式,作为娱乐室,解决了过道过长的问题
③两间卧室合并为主卧套房,衣帽间、大浴缸,舒适度极佳
客服
消息
收藏
下载
最近







































