查看完整案例

收藏

下载
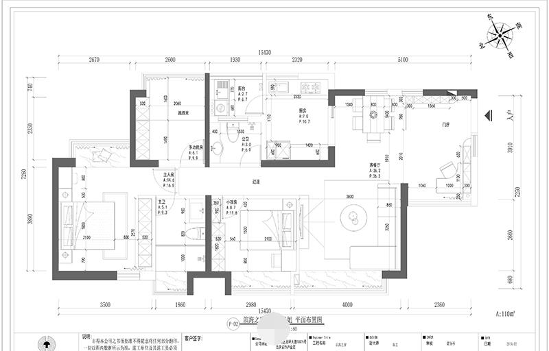
玄关放置了两组白色定制柜,一组利用转角空间作为书桌,一组作为鞋柜,与餐桌用金属屏风隔断,清爽大方,既增加空间利用率又提高隐私性,木纹桌面温润自然感十足。
大理石纹与金属的搭配是轻奢风背景墙永不出错的精致。吊顶通过弧形线条柔和空间硬度,墙布和沙发也选择了素净的米色,通透明亮,营造温暖舒适的居家氛围。
大理石纹桌面与地面辉映,灰粉色的组合既俏皮又不失质感,金属元素统一家居风格。虽然吊灯选择和客厅类似的简约几何形会更出彩,但温姐现场展示了她选择这款的原因:能变换三种颜色!哈哈哈哈女孩子的购物欲就是这么简单~
没有繁复的装饰,白色橱柜线条利落简洁明亮,根据户型二型设计合理布局,让厨房呈现放松、自然、随性的一面。厨房作为使用家用电器最多的地方,温姐也是感叹插座不够用,而且有些电器插线太短,设置在中间最科学方便哦~
卧室主色为沉静的蓝色,布艺墙面有降噪功能,提高睡眠质量,漂亮梳妆台是每个清晨心情愉悦的开始,纱帘轻拂,一间卧室盛满所有幸福时光。
温姐玩笑说她布置的卧室每一间都很像儿童房,那真正的儿童房当然是有过之而无不及了,入眼满满的粉色,皮质软包床既舒适,又典雅贵气,每一个细节都能看出对小公主疼爱~
小蓝象的窗纱配上粉色的独角兽,仿佛置身童话世界,定制白色榻榻米和衣柜不仅增加空间利用率,更是体现出一份优雅精致。
主卫生间干湿分离,柜子便于收纳,清爽明亮,火烈鸟窗帘提高隐私性的同时清新时尚,别具风情。
从零星构想到完整交付,中间耗费的心力可想而知,一句“我觉得都挺好”总算是没辜负因为熟人推荐而选择浩天的温姐,此次拜访,我们带了红酒、高脚杯和庆祝横幅,人美心善的温姐也直呼很有仪式感~
以匠心换真心,浩天一直坚定不移地行走在品质家装的路上。
客服
消息
收藏
下载
最近


















