查看完整案例

收藏

下载
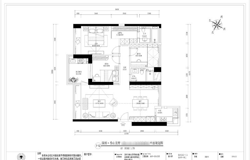
户型方正通透采光足,不需要做太大改动。客餐厅相连,餐厅两侧设立组柜、洗手台,方便取物,厨房L型经典设计,动线流畅合理,轻巧方便。卫生间紧邻长辈房、儿童房,干湿分离,走道装饰画悬挂大门不对卧室,主卧内置衣帽间,悠享舒适生活。
大理石纹、硬包墙面,轻奢感信手拈来,背景墙简单利落的线条装饰,质感不减,少了一分金属的冰冷,多了两分灰基调的静谧。深色大理石纹飘窗不仅便利更彰显出高档的空间格调,灰中点缀亮眼的黄色,使气氛不沉闷。光影交集,时光在午后悠长~
同色系的软装搭配,空间舒展,定制组柜内嵌冰箱,最大程度提高利用率,餐边柜方便操作,简约吊灯时尚精致,斟一杯红酒,余香缭绕,红花映人,营造轻松浪漫的就餐氛围。
L型动线合理,行动方便,不显空间局促。蓝色橱柜与大理石纹瓷砖相得益彰,隐形拉手设计,美观大方。在这样的空间中烹饪美食,自己和家人都会觉得满足。
装饰画提高隐私性的同时营造艺术氛围,从细节处体现主人的生活态度和品味。
木质的温润共性与灰调的自然柔软在这个舒适空间里体现得淋漓尽致,背景墙线条简单搭配圆形小灯,注入一丝温暖。组柜增强收纳,还可以作为电视柜,周末闲暇,懒懒地躺在床上,放一个喜欢的节目,最是惬意不过~
金属屏风将衣帽间与卫生间做了一个简单的隔挡,定制衣柜内嵌梳妆台,也是通往卫生间的过道,最大化发挥空间作用,保证睡眠质量。
榻榻米设计连接组柜书桌,超大储物空间,休闲办公一体,柜子陈列证书奖杯,静谧美好~
蓝色系主题的儿童房是男孩的优选色,搭配装饰画童趣十足,简单大方,不管是哪个年龄段的儿童都非常合适,从玩具和绿植的摆放细节都可以看出对孩子满满的爱护。
摒弃繁复无用的装饰,卫生间做了干湿分离,浴柜整洁干净,镜柜增加储物空间,放置日常洗漱用品,深脸盆不易溅水,便捷轻巧。
客服
消息
收藏
下载
最近
































