查看完整案例

收藏

下载
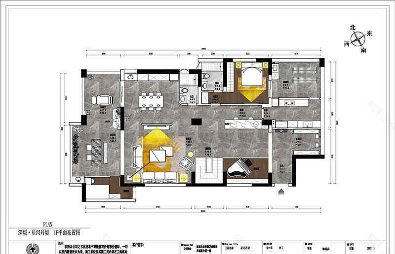
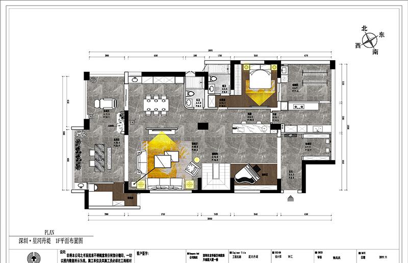
1F户型图
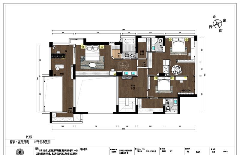
2F户型图
客厅两层的视觉空间,色彩是这里最大的礼赞。从家具到靠垫,从背景到灯饰,无不在克制中跳脱出不凡的艺术嗅觉,共同诠释现代主义的色彩美学。
视背景墙以质感的大理石与木饰面的配色碰撞时尚冷色的都市风;而与之对应的是软装柔和与色彩搭配的跳脱。不规则的吊灯调和着整个空间感觉。
从餐具到饰品,当食物与艺术装置相映衬,在克制中跳脱出不凡的艺术嗅觉,共同诠释现代主义的色彩美学。与客厅共用的装饰大理石,成为空间的呼应,使空间更加和谐。
钢琴区域
主卧同样以低饱和度色彩为主、高饱和度装饰营造空间质感,打造出极简轻奢的高雅生活风。有生活,有温度。
利用床尾的空间革出一个小小的衣帽间,应季的衣服轻松更换。硬包的背景墙展示着卧室的舒适轻奢,对称布局优雅大气。
衣帽间的面积不大,但足以支撑日常的使用。透明的玻璃推拉门,搭配竖状的灯带,精致时尚。
长辈房一改其他空间的风格,有些许中式的韵味。床头背景墙二维与四维的结合,不论色彩如何都充满生机感。正面墙的内嵌式通顶衣柜,都逐一展现着生活的雅致与优雅。
小孩房的个格局相似,质感的马卡龙色加一点粉色,低饱和度又不失清新自然。简洁的圆形背景墙装饰,成为空间的创意点缀。
男孩房间以童趣设计感物品装饰,整个格调提升,使小主人也在潜移默化中得到了美商的提高。无主灯的平顶设计,使空间简洁了不少。
客服
消息
收藏
下载
最近













