查看完整案例

收藏

下载
新中式客厅贵在删繁就简,
其格调典雅质朴,色彩稳重成熟,
布局方圆协调,韵味浓烈悠长,
充分体现了中国传统美学的精神,
散发出亦古亦今的层次之美。
餐厅采用圆形吊顶设计,
“圆”是中国传统文化的一个重要精神原形,
在餐厅设计圆形的吊顶、餐桌,
寓团圆、和谐、圆满之意。
卧室作为休息室,
通过取其神韵不摆其形的风雅意境,
再用艳丽醒目的色彩做点缀,
使得整个空间典雅又不乏时尚。
男孩房的设计以蓝白为主,
激发男孩子的英雄气概。
女孩房以粉白色为主,
大衣柜、公主床,
展现父母满满的宠爱。
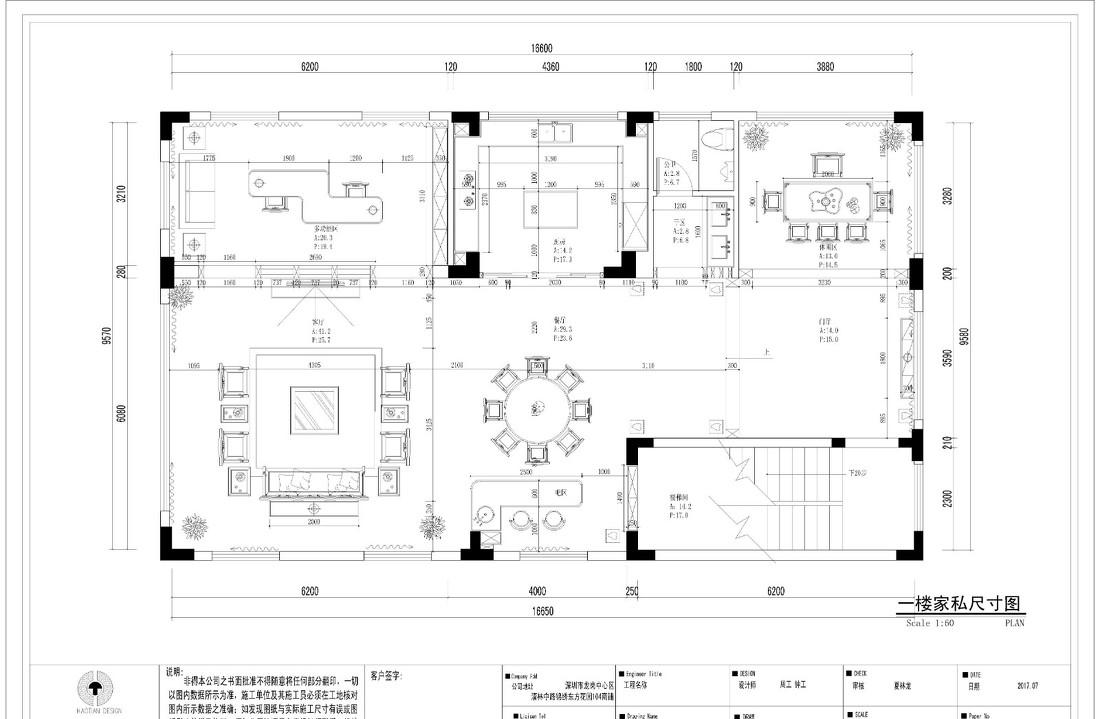
1F平面布置图
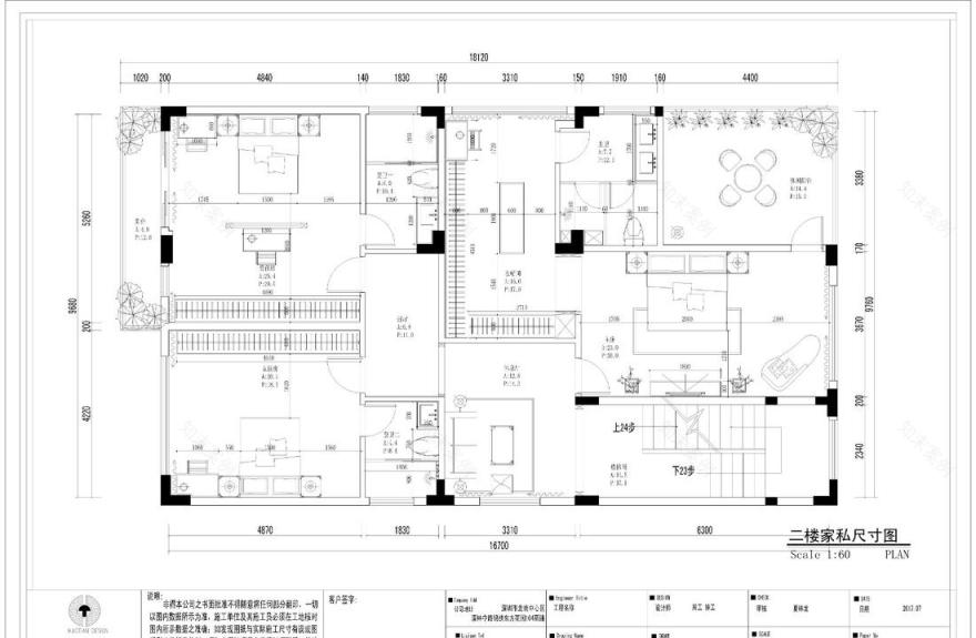
2F平面布置图
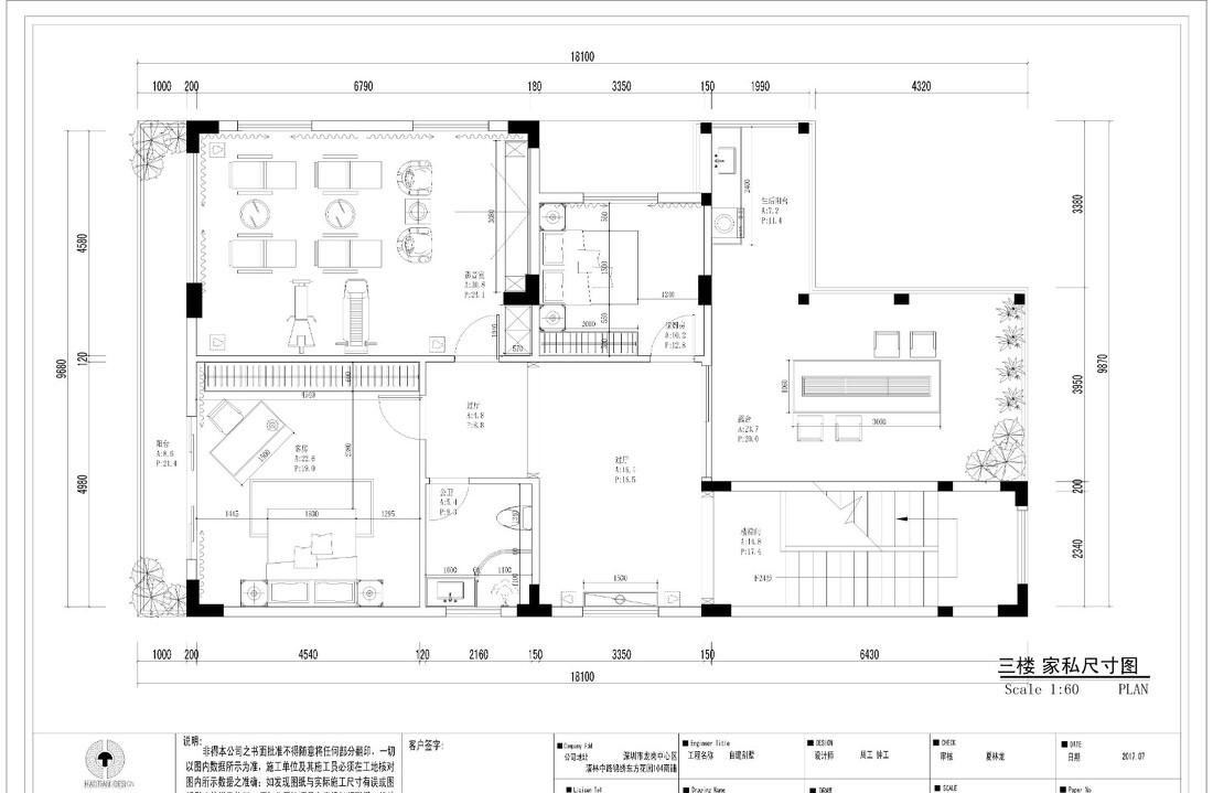
3F平面布置图
客服
消息
收藏
下载
最近











