查看完整案例

收藏

下载
步入室内,方圆结合的屏风将玄关与内室相隔,若隐若现的景色使人禁不住一探究竟。
设计亮点:嵌入式鞋柜使玄关的空间稍稍扩大;实木与金属框的结合,充满中式韵味却不减时尚。
设计源于生活却又高于生活,本设计是在传统的中式风格中融入一些现代的元素,装饰上面采用简洁硬朗的线条以及一些不锈钢的元素在里面,使空间具有层次感,家具以深色为主,彰显新中式深厚沉稳的底蕴。——周雪
成套的深红色家私,将中国风元素展现的淋漓尽致,纤细的造型时尚而不失中式风范。柔白色的沙发搭配花鸟画沙发背景墙,美不胜收。绿色的抱枕成为空间的点睛之笔。
设计亮点:空间方正,包容了新中式风格的气场;大理石的电视背景墙设置了暗藏灯带,成功强调了视觉中心。
黑色与白色的撞色搭配使整个空间素雅而颇具质感,圆形的山水风景画打破了四方的尖锐质感,凸显中式韵味。好风景都有禅意,静心感受那一抹恬静与淡然。
大面积的采光貌不吝啬的照亮这茶室,小景营造其中,高山流水,以呼一吸之间感受自然的韵律与雅致的诗意。
设计亮点:隔断客餐厅的空间,辅助空间功能划分;实木假梁的设计与暖色的筒灯相应成趣。
主卧与客餐厅风格保持一致,色调均衡,“在统一中求改变,又在改变中求统一”,塑造出非同一般的视觉张力。
设计亮点:嵌入式衣柜的设计很大程度上节省了空间
床头背景的设计与点缀的床头灯是父母房有更浓郁的中式韵味。
男孩的房间为现代风格,蓝色的动画墙纸与蓝色的墙漆结合,年轻活泼的气息扑面而来。
设计亮点:利用落地窗的位置设计了书桌,足够两人使用。
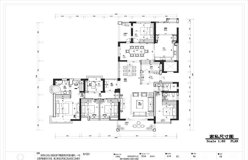
①:延长了电视背景墙的长度,客厅方正,增加了使用的面积。
②:将混乱的公共空间进行功能区分,单独的品茶区将客厅、餐厅进行了明显划分。
③:入户进行重组设计,解决了进门直冲。同时增加了鞋帽间,一举两得。
④:设计过厅区域,增加了卧室的私密性。
客服
消息
收藏
下载
最近



























