查看完整案例

收藏

下载
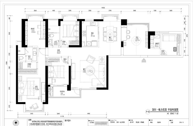
玄关、餐厅吧台处这个区域是设计师设计最主要的亮点,把餐厅和玄关相结合,在餐厅与玄关的交界处设计了一个休闲与办公的小吧台,把整个空间的现代通透感体现出来,体现业主对生活品质的要求。
客餐厅没有做太过于繁琐的装饰,只是简单在电视背景上做了大理石结合黑色的金属线条,大理石的自然的纹理与金属线条凸想碰撞,现代感十足;软装上,橙色休闲椅与灰色的皮质沙发搭配碰撞成为视觉亮点。
餐厅选用了木质的桌面搭配皮质的坐椅,加上餐厅上方精致的吊灯的搭配,把整个空间的效果和线条感、通透感都表现出来。
主卧与书房的设计也是本案亮点之一,设计师应业主的要求,把书房和主卧室以套房的形式去呈现,因为业主夫妇平时在家同时办公的时间比较多,所以设计通长的书桌方便两位同时办公的需求。
客服
消息
收藏
下载
最近












