查看完整案例

收藏

下载
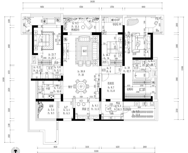
平面布置图
玄关处做了玄关鞋柜,既起到了隔断的作用又赋予实用功能;精致的挂画点缀的恰到好处。
入户花园名副其实,进门处的左边用推拉门做隔断,小花园摆满绿植,甚是养眼;窗帘的搭配与挂画、地面想呼应,尽显高贵。
客厅装修偏向古典美式的风格,浅黄色搭配古典家具的色泽和质感,整个客厅给我们一种优雅高贵的氛围。
深色的铆钉沙发搭配精致的雕花,将美式的文化底蕴与华贵大气展现的淋漓尽致。墙面壁纸与护墙板的结合拉伸了房高,使整个空间惬意舒适。
餐厅兼顾多种功能,日常就餐,分割空间,一举两得。
餐厅在西厨与中厨的中间减少了行动路线,餐厅的整体设计仍然延续了会客厅的整体色调。圆形的餐桌,传统的美式餐椅,与客厅相比配凸显质感。
练歌房采用夸张的壁纸做装饰,欢唱氛围十足。
卧室不仅仅是一个供人睡觉休息的空间,它也可以是一个诗意的发呆地。主卧的设计以深浅搭配来打造低调的美感。
卧室增加了办公区域,与休息区半墙之隔,互不打扰。
老人房则清新淡雅了许多,整体色调以米色为主,让整个空间显得温馨舒适。
女儿房的设计区别于本案别墅装修方案的其他空间,则选用了简约法式的设计手法。皇冠公主床、金色的造型衣柜,让这片充斥着法式温馨浪漫的粉色空间,摇身变为梦幻乐园。
搭配与衣柜类似造型的梳妆台,贵气侧漏,公主范十足。
客服
消息
收藏
下载
最近























