查看完整案例


收藏

下载
博山古称“颜神镇”,远在宋金时期就已经成为陶琉重镇,游走于博山,古窑村的沧桑斑驳见证着千百年来,不熄的窑火,不绝的文化,精美绝伦的艺术品,精益求精的工匠精神在此传承。甲方落子禹王山前,承博山千年文脉,抒亘古陶风琉韵,设姚家峪颐养小镇,筑陶琉工坊。共向设计在承袭传统的基础上寻求设计本质根源,立意营造空间,并将历史文脉中的传承与积淀作为项目的根底,以其为载体,在室内空间的延展、重组,诠释设计的涵义,以此来平衡传统与当代之间的关系,达到传统文化在当代空间的渗透与演绎。进入室内,空间整体布局流畅自然,以赭石、墨黑、瓷白为主调,通过木、石、铜、砖几种主要材质统一构建出沉稳内敛的场域,并将千年来博山陶琉工艺的文化符号拓印于空间中。
Since a thousand years ago, Boshan has become a renowned town of ceramics and colored glaze. Touring around it, one can fully enjoy the beautiful landscape and fascinating culture. Many old villages here such as Guyao Village witnessed the passage of time, inherited ingenious craftsmanship as well as the spirit for striving for excellence, and created various exquisite artworks. Based on these favorable natural and cultural conditions in Boshan, the client decided to construct an “elder-care town” beside Yuwang Mountain, a destination for old people to enjoy later life. Pottery and Colored Glaze Workshop, the project undertaken by Co-Direction Design, is situated in the “elder-care town”. Bearing in mind the inheritance of local traditional culture and the essence of design, the design team conceived to restructure the space and integrate historical and cultural elements into it, aiming to reach a balance between the contemporary and the traditional.The overall space features a smooth and natural layout, with ochre, black and white as major hues. Woods, stones, copper and bricks were widely utilized, together creating a calm and restrained atmosphere in the space. Besides, cultural symbols of ceramics dating back to one thousand years ago were ingeniously incorporated into the interior design.
▼陶制工坊,pottery workshop
厚重深沉的花岗岩前台,以原生的形态融入空间,直观的唤起人们内心更深层次的感受。前厅区域对称的设计手法,传达出东方秩序美学,夹丝玻璃屏风渗出朦胧而柔和的光,虚实相生,层层延伸,丰富了立面的层次,并与建筑本身形成厚重与轻盈的灵动对比。
A massive granite stone functions as the front desk, which is in harmony with the space, directly evoking people’s deeper feelings. The foyer was designed with a symmetrical layout, conveying oriental aesthetics of order. The wired glass screens in this area are placed with a certain distance from each other, which exude dim and soft lights and form the contrast of massiveness and lightness with the architecture.
▼入口接待区,the reception in foyer
以条状序列排布的弧形天花是对传统建筑造型的解构与重写,展現鮮明的传统建筑结构美学,其强烈的仪式感升华了空间气场。光自下而上投映在层层叠叠的琉璃砖上,散发出温润安静的光芒,如玉如珠,低回婉转的诉说着博山文脉中千年来的雅韵。大面积的留白与质朴的镂空青砖相映成趣,形成了独特的空间肌理,虚化了空间界限,使光、影在其中交错流转。
The ceiling was designed with curved and strip-shaped structures, which shows the structural aesthetics of traditional Chinese architecture and adds a sense of formality to the space. Lights fall on the tiered glazed bricks, generating soft glitter like jades and pearls, and indicating the rich local cultural context. Large area of white walls and gray hollow bricks echo each other, which endows the space with unique textures, blurs boundaries within it and facilitates the interaction of lights and shadows.
▼二层交通空间以条状序列排布的弧形天花,the ceiling of transport space was designed with curved and strip-shaped structures
▼二层艺术家工作室,artist’s studio on second floor
在空间中游走,整个空间如同一篇由优美建筑元素演绎的古雅乐章,感受当代语言与传统韵味的碰撞,情景交融,古今相继,同时也赋予了她文化风骨下的全新意义。
The whole space is like a piece of classical music deducted by exquisite architectural elements. Walking through it, one can deeply feel the collision between modern design language and traditional aesthetics as well as the inheritance of Chinese culture.
▼老窑口,the old kiln
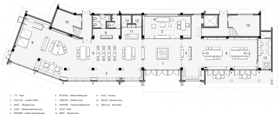
▼一层平面,first floor plan
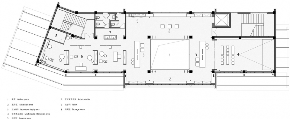
▼二层平面,second floor plan
软装设计:共向美学
设计面积:810平方米
主要材料:木饰面、夹丝玻璃、琉璃砖、青砖、拉丝不锈钢、肌理涂料
完成时间:2018年8月
项目地址:山东省淄博市博山区姚家裕6号
摄影师:井旭峰
Soft decoration: Co-Direction Aesthetics
Project area: 810 m²
Main materials: wood veneer, wired-glass, glazed brick, gray brick, brushed stainless steel, textured paint
Completion time: August 2018
Project location: No.6, Yaojiayu Village, Boshan District, Zibo City, Shandong Province, China
Photographer: Jing Xufeng
MORE:
Co-Direction Design
。更多关于他们:
Co-Direction Design
客服
消息
收藏
下载
最近













