查看完整案例


收藏

下载
作为一个上海市奉贤区的民生项目,能被选址于奉贤区政府所在地南桥镇中心一个这么优越的地段——江海路的原奉贤中医院地块——是难能可贵的。因此,最直接的问题就是用地紧张。
It is rare and commendable that a civil project could be in a terrific place of Fengxian District in Shanghai. The site on Jianghai Road, which was Fengxian Chinese Medicine Hospital before, is in the center of Nanqiao Town where Fengxian District Government is located. Therefore, the most significant challenge is the shortage of urban land.
▼建筑鸟瞰,aerial view
在设计初期,其他的设计单位曾经有过一个普通高层塔楼加裙房的方案,作为高容积率的地块似乎是不得已而为之的常规做法,而高层低密度也是比较容易满足上海各项建筑规范的简单途径。但高层塔楼建筑并不是老年建筑最适合的形态,我们团队根据基地特有的横向性设计了一个东西撑满的大平层建筑,形成了最大化的标准层,并试图保留现状已经生长了几十年的一排大香樟树作为对基地的呼应——断开主楼形成中庭,将主楼分为东西两栋。然后在跨越中庭的两条回廊的联系下,再形成一个顺畅的水平交通,而保留的香樟树列加上铝穿孔板覆盖的室外中庭与东西两楼典雅的风格保持差异。
However, high-rise tower is absolutely not the best form of senior-citizen universities. Our team designed flat level standard floors according to the unique landscape orientation of site. We also tried to keep a row of large camphor trees that have grown on the site for decades. As a response to this character of the site, the main building is divided into east building and west building connected by an atrium. Two corridors across the atrium ensure the circulation system to be continuous. The preserved camphor trees as well as atrium covered by aluminum perforated plates remain at variance with the elegance of east and west buildings.
▼入口立面,entrance facade
▼立面细部,facade detail
▼两条回廊跨越中庭,连接了东西两栋建筑,two corridors across the atrium ensure the circulation system to be continuous
▼中庭成为活跃的公共空间,the atrium as an active public space
▼中庭鸟瞰,atrium aerial view
▼回廊细部,corridor detailed view
▼回廊内部,inside the corridor
▼屋顶平台,roof terrace
▼平台细部,detailed view
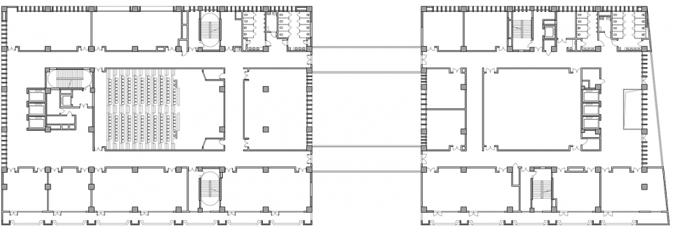
老年大学设计初期,我们高目团队恰逢龙南佳苑和德富路中学设计对抗规范的苦难博弈中,况且老年大学设计规范中也没有什么特别让人讨厌的地方,所以我们不太可能同时再选择自讨苦吃的对抗设计方式,而这种希望平和、渴望简单的状态也恰好切合了老年大学需要的设计心态。设计方案里,建筑平面力求平和,没有大型的凹凸造型,完全是八个平层、东西两幢构成了整栋建筑,只是局部每两层有一个小挑空的电梯厅。由于老年大学除了普通教室以外,有大量的舞厅、剧场、书场、阶梯教室、大会议室、健身房等大型无柱或挑高空间,在考虑结构模数与交通组织整齐合理的前提下,平面布局就形成了“小空间教室围绕大空间功能教室”的回字型整体格局,结构布局就是“外圈框架梁板柱完整作为小空间”而“内圈部分抽层减柱作为大空间”的整体结构。
The schematic design of plans includes eight flat stories with no concave-convex like form, achieving an overall steady and mild effect. The building is composed of east building and west building, connected by small internal patios every two floors as an elevator hall with cantilevered structure. In addition to ordinary classrooms, numbers of large column-free spaces are needed in the senior-citizen university such as ballroom, theatres, bookstore, lecture halls, large conference rooms, gymnasiums, etc. On the premise of ensuring reasonable structural module and circulation system, the rule of the plan is “large-space classrooms are surrounded by small-space ones”. Also, the rule of structure layout is “small spaces with complete outer structural frame ” as well as “large space with inner reduced columns”.
▼室内公共空间,public space
▼图书室,library
▼多功能厅,multi-purpose hall
▼剧场,theatre
设计中有两个插曲,一是老年大学的更名:因为如果定义为老年建筑的话消防规范是有层数限定的,而中心城区的高容积率不可能只做三层,那么老年大学这个名字就不得使用,于是就暂时更名为“社区大学”;二是作为设计起点的那排保留香樟树:在被保留了整个设计阶段之后,随着基坑开挖和维护的造价测算,那排树也因为造价与施工难度而被悄然移去,作为最后知道这件事情的建筑师,我在遗憾之余强烈的要求建设方——在中庭移种回来三棵巨大的银杏树。
▼银杏树被移种回中庭,the large
ginkgo tree was moved backed to the atrium area
建筑的外观是典雅的装饰主义风格,西立面的拱窗、南立面的带线角倒角阳台、外廊的拱门、北立面和中庭两侧深邃的窗洞,都是在努力回避流行的“冷酷”现代主义,确实,为老人设计房子,典雅总是合适的。外立面本想采用粗粝的面砖装饰,但是在中国的外墙保温面层做法中,面砖几乎已经被写进了黑名单,最后在用真石漆经过了十数遍小样的制作后,才形成了现在的仿面砖的结果。中庭连接体采用了钢结构加金属瓦楞穿孔板作为典雅风格的对比,但也透着古典均衡的秩序,大概只有东西两个入口超过六米的大悬挑透露着一点现代主义的张狂——但尽管如此,悬挑部分的顶板装饰,依然很小心的向路易斯·康致了个敬。
▼外廊的拱门和深邃的窗洞都是在努力回避流行的“冷酷”现代主义,the design of the arch windows, the veranda and the deep openings is trying to avoid the popular but “cold” Modernism
▼拱形窗洞细部,detailed view of the arch-shaped veranda
The appearance of the building is elegant Art Deco style. Arch windows of the west façade, corner chamfered balconies of the south façade, arches of the veranda, north façade, and deep window openings on both sides of the atrium, the designing of all these elements is trying to avoid Modernism which is popular but “cold”. Elegance is always appropriate when designing architectures for senior people. The exterior façade was intended to be decorated with rough tiles, but the tiles have almost been “blacklisted” of the exterior thermal insulating surface construction. The appearance of imitating brick is the result of nearly twenty times of natural stone coating sample testing. The atrium is constructed of steel structure and metal corrugated perforated plate. It is the opposite side of the elegant Art Deco style, while reflecting the order of classic and balance at the same time. The only places where reveals the audacity of Modernism, are the over six meters high cantilever structures of east and west entrance. Even so, the architect still carefully pays respect to Louis Kahn by the decorations on the top of cantilevered canopy.
▼街道夜景,street view at night
▼屋檐细部,eave
▼立面细部,facade detailed view
▼功能分布示意,function diagram
▼轴测图,isometric drawing
▼剖面透视图,sectional perspective
▼首层平面图,ground floor plan
▼剧场层平面图,theatre level plan
项目名称: 奉贤区老年大学
建筑事务所: 上海高目建筑设计咨询有限公司
主创建筑师: 张佳晶
设计团队: 徐文斌、徐聪
项目详细地址: 上海市奉贤区南桥镇秀龙路华苑路口
项目完成年份: 2017年12月
建筑面积: 39458M²(地上:29064M² 地下:10394M²)
摄影师: 清筑影像、何威、张佳晶
业主: 上海奉贤南桥新城建设发展有限公司
合作方: 上海之景市政建设规划设计有限公司
建材商品牌 + 产品:
达贤-穿孔铝板
达贤-仿砖涂料
达贤-钢结构连廊
Project name: Senior-Citizen University of Fengxian District
Architect’ Firm: Atelier GOM
Lead Architects: Zhang jiajing
Design Team: Xu wenbin, Xu cong
Project location: Huayuan Road, Xiulong Road, Nanqiao Town, Fengxian District, Shanghai
Completion Year: 2017.12
Gross Built Area: 39458M² (ground area: 29064M² underground area:10394M²)
Photo credits: CreatAR, He wei, Zhang jiajin
Clients: Shanghai Fengxian Nanqiao New City Development Co., Ltd.
Collaborators: S.H.K. Urban Construction Planning & Design Co., Ltd.
Brands / Products:
1. Daxian – Perforated aluminium panel
2. Daxian – Brick imitating coatings
3. Daxian – Steel skybridge
客服
消息
收藏
下载
最近




























