查看完整案例


收藏

下载
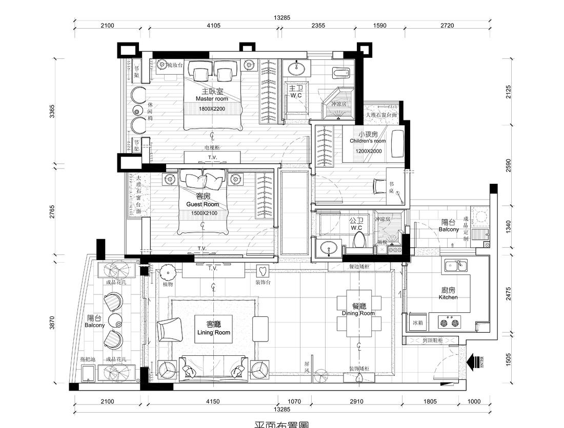
平面方案
进门的对面加了一个不锈钢屏风,中间为金色夹丝玻璃,餐厅餐柜为客户已定制,后面新做了个简单的背景..........
客厅电视背景为仿大理石纹地砖,中间为玫瑰金不锈钢,这样做即节省预算,效果还不错,沙发背景是用的调色乳胶漆......
卧室天花设计上沿用了客厅的造型,床头背景简洁大方又不失乐趣............
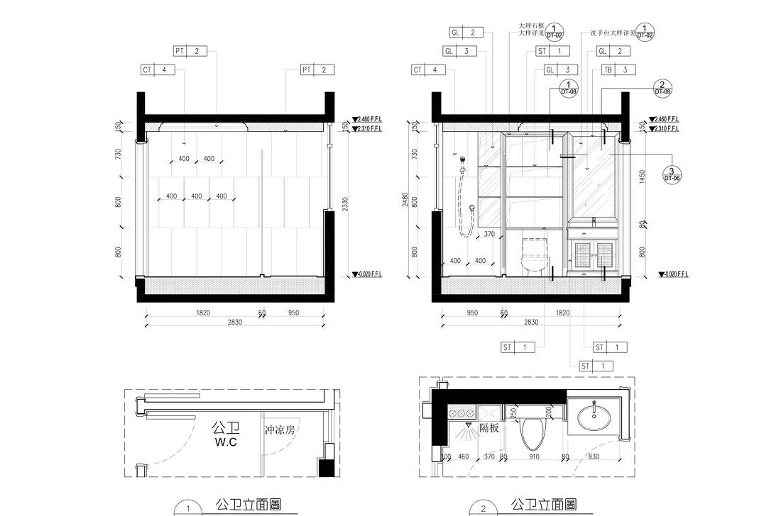
卫生间马桶后方加做了一个大理石造型框,其实不只是为了装饰,最主要是可以摆放一些生活用品,牙膏牙刷呀什么,而且这个位置还不会影响马桶的使用......冲凉房是有玻璃门的,此图为了能看清内部结构故省略此处玻璃门,冲凉房内利用凹位,也做了一个可以摆放洗发水,肥皂等洗浴用品的位置,既实用又美观。
客服
消息
收藏
下载
最近









