查看完整案例

收藏

下载
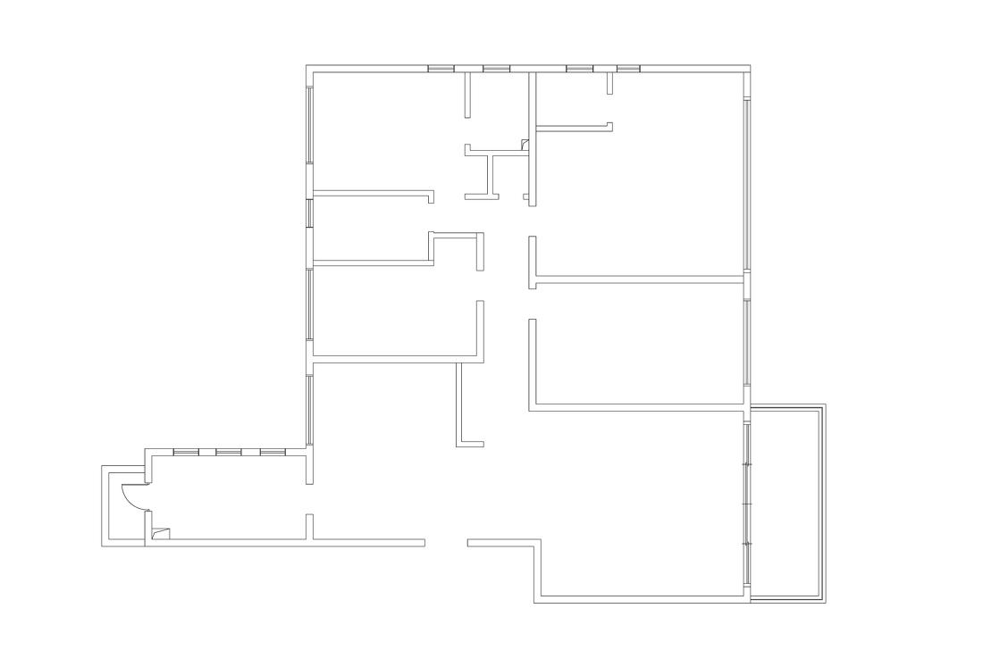
★原始户型图
本案是屋主为了孩子上学购买的一套二手房,屋主的诉求也是希望全屋改造,设计师通过对房屋的仔细勘察,对原始户型做了以下分析:
1、房屋没有独立的玄关区域,进门即厅,没有隐私性;
2、餐厅部分的隔墙影响整体的通透性,一方面造成动线不便;
3、主卧的隔墙太多,一定程度造成空间浪费,且主卫的面积太小,不好规划布局;
4、全屋的采光很好,但储物空间比较少,需要整体规划设计;
5、屋主特别喜欢榻榻米,希望把其中的一个卧室打造成书房客卧一体的设计。
★平面布置图
设计师根据屋主的需求,做出了如下的改造:
1、玄关对面利用木格栅做装饰,左手边设计柜体增加储物能力;
2、拆除餐厅部分的隔墙,打造客餐一体化的布局;
3、拆除主卫的隔墙,连通主卧的隔墙,增加主卫的使用面积;
4、将次卧的部分非承重墙拆除,新建墙体与儿童房齐平,增加房间的使用率;
5、改变客厅对面卧室的入门方向,墙体做造型内嵌储物柜,增加储物。
玄关墙面用大面积的护墙板组合储物柜设计,整体视觉有着强烈的美感,搭配原木地板毫无违和感~角落里的一字型壁灯,增添氛围的同时,也达到了装饰效果,玄关的对面利用木格栅做遮挡,保证室内隐私的同时,也让精致感油然而生~
#玄关 #玄关柜 #壁灯 #木格栅
整个公共区域在硬装上比较简单,地面是用“鱼骨拼”通铺的实木地板,在保留原木自然纹理的同时,又不失现代美。
#客厅 #实木地板 #鱼骨拼 #无主灯
客厅上方做了方形吊顶,搭配筒灯打造空间的层次感。沙发的背景墙做了弧形的设计,搭配灯辅助补光,轻松营造出惬意温馨的氛围。
#客厅 #沙发背景墙 #吊顶 #筒灯
L型的浅灰色布艺沙发,搭配欧松板做的背景墙,素雅明净中又多了一些层次感。不同深度的灰色系抱抌与窗帘的色调相呼应,不但不会使人看上去沉闷,反而会使得整个客厅增加宁静与柔和的气氛。
#客厅设计 #沙发 #背景墙 #窗帘
客餐厅一体化的设计,让空间最大化,呈现宽敞的视觉感受,全屋采用无主灯设计,营造出“见光不见灯”的高级质感,吊顶四周内嵌灯带,充满现代时尚感。
#客餐厅一体化 #无主灯 #客厅设计 #原木地板
电视墙定制收纳柜,局部抬升下方左收纳,留空部分还可以用来摆放绿植~在白色调的基础上搭配极窄黑色金属条,显得更加的具有高级感。
# 电视柜 #收纳 #电视背景墙 #客厅
站在这个角度看向客厅,可以发现,采光真的非常充足!客厅的中央空调出风口设计在靠阳台这一侧,美观的同时也更加方便实用。
#客厅 #中央空调 #阳台 #客厅
开放式的餐厅和客厅共享空间,所以在风格上也保持了一致性,让餐厅的就餐区域变得更加和谐和饱满。
#餐厅 #客餐一体化 #软装搭配
餐厅在筒灯设计的基础上,加入了错落有致的茶色玻璃吊灯,下方放置可容纳️人的方形餐桌,豪华又大气。
#餐厅设计 #吊灯 #软装搭配
餐桌的台面用的是白色岩板的材质,搭配搭配浅灰色的布艺餐椅和餐桌上布置绿植,用餐氛围清新又舒适。
#餐厅 #灯光设计 #餐桌 #绿植
II型厨房的设计,聚焦细节,白色的大理石地砖+墙砖完成纹理,质感的拼接,开放的空间产生自然的流动感。
#厨房设计 #瓷砖 #无主灯 #橱柜设计
为了保证厨房的采光,靠近窗户的一侧并没有设计吊柜,而是在功能区上进行了细致的划分,将靠墙的一面打造成备餐区域,让空间更加的利落和整洁。
#厨房 #厨房设计 #瓷砖
厨房的另一侧则打造了吊柜,可以用来收纳一些烹饪用品,大理石材质的桌面也更便于卫生打理,内嵌式处理冰箱让空间得到更充足的释放。藏青色的定制橱柜,也让烹饪空间显得更加精致优雅而时尚端庄。
#橱柜定制 #双开门冰箱 #墙砖 #地砖
考虑到客户有喝茶的习惯,所以就将次卧设计成书房茶室一体,在改变入门方向后,让客厅和书房的动线也更加便捷。通铺的实木地板,也让整个空间看着更加简洁一体。
#书房 #次卧 #榻榻米设计
靠窗设计的榻榻米床和收纳柜紧密相联,日常还可以将这里当作休闲空间来使用,一门到顶的设计,让空间更加简洁,铺上软垫也能当作一个临时的睡眠区,实在是很方便~
#榻榻米 #书房设计 #茶室 #多功能室
书房内部依旧设计了大面积的储物柜,储物问题丝毫不用担心,利用开放式和封闭式相结合的设计,也让拿取更加便捷。而且外观上也没有任何压抑感和笨重感,整体巧妙连接成完整的空间。
#书房设计 #榻榻米 #茶室 #多功能房
开放式储物格的内部增加了嵌入式的灯带设计,这样可以装点出空间的灵活气质,营造出丰富的阅读氛围。
#书房 #储物 #灯带设计 #软装搭配
主卧内部空间面积比较宽敞,同样的无主灯设计,内部的配色也比较的和谐,选择了浅色系为主色,凸显出睡眠空间的静谧和美感。
#卧室 #颜色搭配 #无主灯设计 #百叶窗帘
床头背景墙采用杏色的格栅板与欧松板做装饰,整面背景墙设计感多样。床头两侧配有床头柜,并且还打造了一处化妆区,方便女主人日常化妆,同时也可以填补空间的留白。
#卧室设计 #床头背景墙 #木格栅 #化妆区域
主卧的卫生间拆除了多余的阻隔墙体,重新调整了房门的位置,将它规划到主卧的空间,加强空间的联系同时也让空间动线变得更加柔软。悬空的浴室柜设计,也增加了空间的趣味性。
#卫生间设计 #浴室设计 #浴室柜 #台盆
主卫还规划出了浴缸的区域,墙体面都采用浅灰色的大理石通铺,简约又极致,利用玻璃门做遮挡,美观的同时也兼顾了干湿分离。
#浴室设计 #浴缸 #干湿分离
客服
消息
收藏
下载
最近


























