查看完整案例


收藏

下载
时光未央,静候流年
一半素心以清简,一半寂静许清欢
寻一处现代境,幽趣婉转,一室的清灵简雅缓缓道出,于境中自得其乐。以光为引,以意为境,将光与绿意充分映入,延伸光进入空间的维度。一线引流,天光倾泻,四时流转,是写给生活的诗。
△项目视频
01
淡看人间三千事
闲来轻笑两三声
从晨曦到达黑夜,在不同波长下穿越玻璃的色彩变化,生成抽象的艺术。框景之中绿意萦绕,或月笼轻纱,或雨笼烟波,光影天成,恰如其分的空间共鸣。
或是戏中人,或是曲中意,随幽蓝光束一同卷入“虚拟世界”。斑驳光影中,用细节语言,打破静室的沉闷与匠气。
02
慢慢亦漫漫
漫漫亦灿灿
空间是光影的容器,自然光穿透白色的纱帘给会客厅加了一层摩登的滤镜。两侧纱帘光影通透,暗香浮动,几丝波影乍如烟。一处吧台,临烟火,酌清欢。烟火清欢,一半一半。
梦境入光影沉沦,耳朵被自然唤醒。向左是静谧的私享,向右是自然的衔接,光影浮动间,内心更加宁静。
隔而未离,清冷透亮之意层层渲染,飒飒净尘埃。镜中万象,折射序列世界。
03
晨昏相依,四季与你
以素雅营造明净,用克制与内敛的笔触,描摹生活的本真。窗外景色明,梦醒续新诗。一枝绿意带来的生机,缓缓流趟出空间的活力。
04
一灯一影 ,一人一椅
可临窗而居的榻榻米,拾级而上的台阶,构成栖居的意趣,兼顾休憩储物,闲时写意,伏案提笔于桌前,悠然自得。
△负二层平面
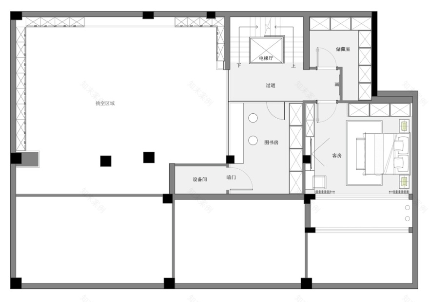
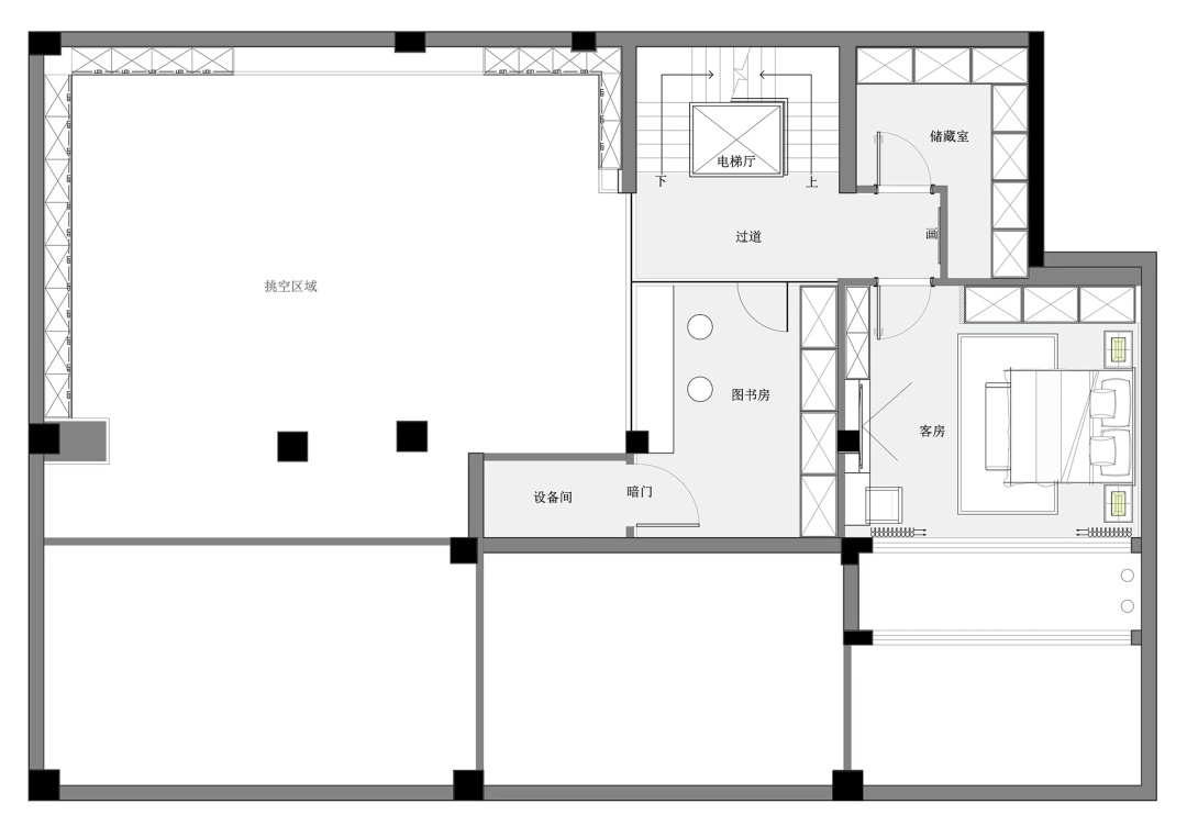
△负一层平面
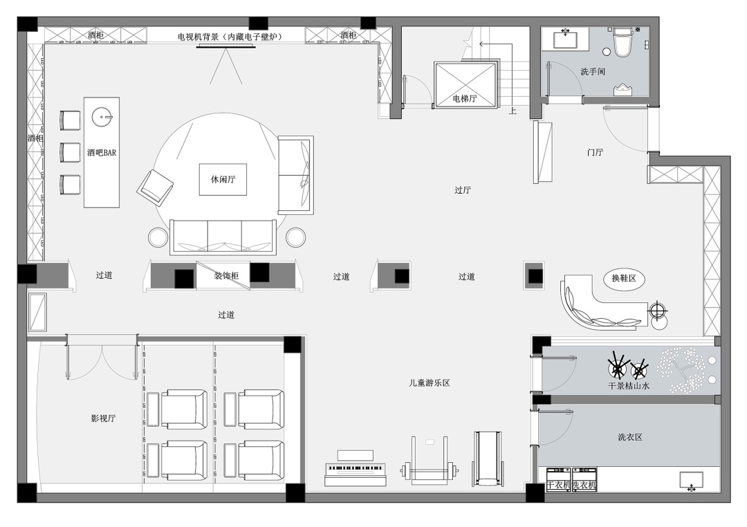
△一层平面
△二层平面
△三层平面
项目名称|Serendipity 李宅
项目地点|中国 苏州 世贸铜雀台
项目面积|500㎡
完工时间|2022年08月
主案设计|李翔
设计单位|升罗设计(苏州)有限公司
主要材料|大理石、木饰面、艺术漆、金属、银镜等
部分品牌|Poltrona Frau、Molteni&C、Natuzzi Italia、Magis、Ligne Roset、Rolf Benz、Herman Miller、BoConcept、Hülsta、Kettal、Kartell、Louis Poulsen、Carl Hansen&Son、Estiluz、Flexform
项目摄影|徐义稳
李翔
S H E N G .升室内设计事务所创始人/设计总监
秉持“每一立方英寸的空间皆是奇迹”的设计理念
客服
消息
收藏
下载
最近

























































