查看完整案例

收藏

下载
该住宅位于Tubella街道上的一栋保护建筑的顶层。这些成对分布的住宅建筑建于1925年,旨在为社区内各行各业的工人提供生活保障。
We are on the top floor of a cataloged house located on the Tubella Promenade. A private passage of paired houses, projected in 1925, to offer a healthy life to the workers of the various industries of the neighborhood.
▼建筑位于一栋保护建筑的顶层,the porject is located on the top floor of a cataloged house
住宅与对面的Benet Campabadal纺织厂仅一墙之隔,该项目的业主希望在住宅中设置一个办公空间,以改善住宅的功能。
Sharing a partition wall with the Benet Campabadal Spinners factory, our client proposed introducing a work space in the house and improving the use of housing.
▼住宅外观,exterior view
设计师在既有建筑中发现了一些不和谐的空间,包括一条封闭的走廊,和一个被掩盖住的露台。通过移除干扰因素,露台和走廊得以再度利用,同时令室内中庭与外界环境形成对话。清扫工作也使空间的本质重新显现出来。新置入的黑色铁制结构与周围的工业建筑建立了关联,并悄无声息地将居住和工作空间容纳在内。
We discovered some non-conforming volumes, a blinded gallery and a buried terrace, separated from the original values. A demolition, frees the terrace and the gallery outside, getting the interior patio to dialogue again with the open spaces of the context. A clearing, shows inside the lifeblood of a continent. Black iron artifacts are deposited in the interior establishing a link with the industrial world of the surroundings. Silently they contain the housing and work program of the house.
▼新置入的黑色铁制结构与周围的工业建筑建立了关联,black iron artifacts are deposited in the interior establishing a link with the industrial world of the surroundings
▼室内中庭与外界环境形成对话,the interior patio dialogues again with the open spaces of the context
▼室内细部,detailed view
楼梯通往一个密闭的大厅,只有房主才能够进入。外人则可以通过另外一座楼梯进入房子的阁楼,方便使用内部的工作空间。住宅内部还设有两个以更衣室相连的房间,能够以私密的方式形成连接。
A staircase leads to an hermetic hall. Only the owner will be able to penetrate. A staircase will be offered to the stranger to access a loft to which the workspace is reserved, responding to new industrial demands. Behind the hermeticism, two rooms connected through a dressing room allow to circulate freely in privacy.
▼阁楼,loft
室外的露台仿佛要侵入房屋内部,暗示了住宅与曾经的工作环境之间的关系。主浴室位于住宅最内侧,新增的淋浴房则取代了旧的洗衣房,从而拆分出新的空间。
A terrace on the outside seems to invade the interior, suggesting a relationship between the house and its old working environment. Going through a last threshold that contains the main bathroom of the house, a new shower replaces the old laundry whipping up the disjunction.
▼浴室,bathroom
▼淋浴房,shower room
▼室外露台,outdoor terrace
▼轴测图,axon diagram
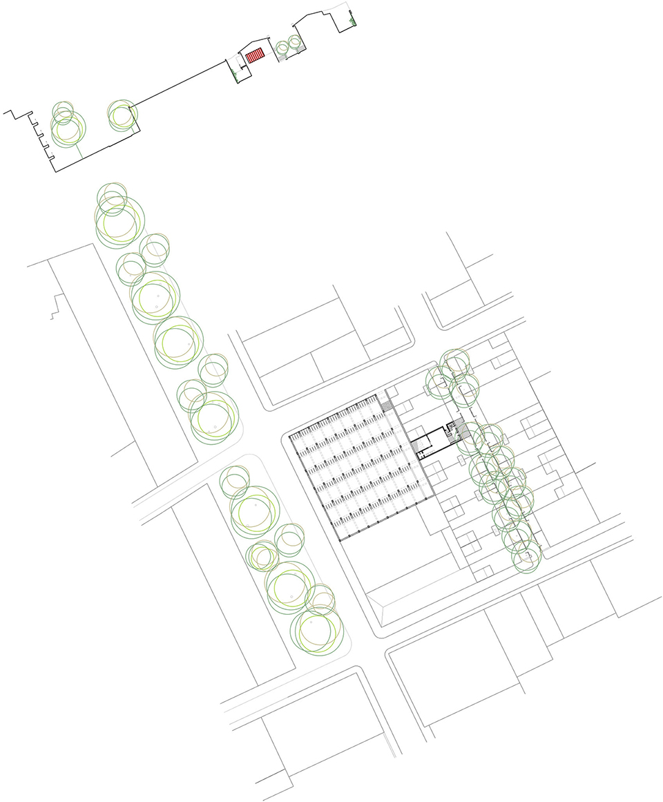
▼场地平面图,site plan
▼平面图,floor plans
▼剖面图,sections
客服
消息
收藏
下载
最近





















