查看完整案例

收藏

下载
项目是受梦想改造家邀请参加的一个公益改造项目,位于哈尔滨辽阳街5号,是整个城市的核心位置。原建筑坐落在一处俄式大院中,大院的主体是由受到保护的折衷主义建筑与院门口的一处小平房构成。平房原先是大院的警卫室,建筑面积只有28.77平米。后来因为历史原因被改为了普通住宅,拥有了产权,并被不断扩建,居住着三口之家。在一个历史街区里,院内都是受保护的历史建筑,如何营造一座满足一家人生活的新建筑,并使得新建筑与周围环境产生某种对话, 成为整个项目的最大挑战。 设计师既不想简单的复制传统的俄式折衷主义建筑风格,也不能做成一个脱离周围环境与语境外来建筑,希望在这两者之间找到一个平衡点。
▼建筑外貌,exterior view
The project is nominated to the nonprofit program “Dream of Decoration”, which is located at 5th Liaoyang Street in Harbin, the heart of the entire city. As a small bungalow at the entrance of the courtyard, the renovated bungalow is located in a large Russian style compound, which is composed of national protected buildings of eclecticism. The bungalow was originally a room for security-guard with a floor area of 28.77 square meters only. For some historical reasons, it was changed to ordinary residence, with property rights, and being continuously expanded exteriorly for a family of three. The biggest challenge of the entire project is to resolve the current problem to satisfy the family’s needs, while still maintains a dialogue with surrounding historic neighborhood. It is neither a simple way to replicate traditional Russian style eclectic architecture, nor to escape the environmental constraints, and it is to be sure to strike a balance between the two.
▼住宅位于俄式大院中,the house locates in a large Russian style compound
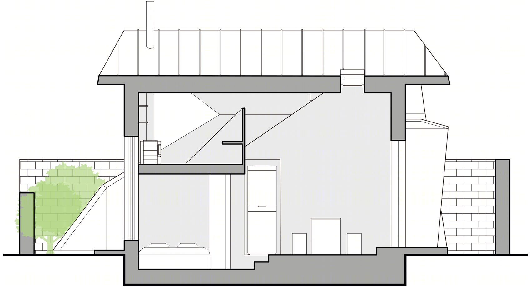
新的设计将整个房屋基础做到2米以下,有效得避开冻土层冻胀作用对结构带来的损害。将建筑设计成为一个包裹性很强的体量,从地基到墙体再到屋顶增加15cm保温层,从根本上解决房屋的稳固与耐寒问题。面对建筑在高纬度的保暖性问题,阳光是最重要的因素之一。由于建筑朝向并非正南正北,并受到周边高层建筑的遮挡,无法获得很好的阳光照射角度,因此新建筑的设计在房屋的正南方向切了一个三角形开口,可以保证整个房屋在冬日里至少有三个小时的日照时间,从而提高整个房屋的居住舒适度。
The new building foundation is dug below 2 meters, so as to effectively avoid the damage caused by frost expansion on the frozen soil layer. The new house is designed as a very wrapped mass, an extra 15cm insulation is added to the foundation, the wall and the roof, which fundamentally solves the problem of stability and cold. In the face of construction in the high latitudes warmth retention property, the sun is one of the most important factors. Due to the fact that the orientation of the land plot not facing south and north, and is blocked by the surrounding high-rise buildings, it can not get a good angle of sunlight. Therefore, the design of the new building cuts a triangular opening in the direction of the south, which can guarantee that the whole house has at least three hours of sunshine in the winter, thus to improve the residential comfort of the whole house.
▼设计推演,concept
▼正南方向的三角形开口保证冬日日照时间,a triangular opening in the direction of the south guarantee that the whole house enjoys the sunshine in winter
建筑的主体由钛锌板包裹,屋顶与墙面的连续一体性有效得避免了冬天屋顶积雪,并减少业主将来的维护成本。南侧山墙采用传统的烧杉木板,北侧采用保温性能更好的立邦工程一体板,并做了加厚保温处理。
Southern gables adopted traditional Shou-Sugi-Ban, and northern gable wall adopted Nippon composited board with better thermal insulation and heat preservation. The main body of the building including roof and wall is continually covered by titanium zinc plate, which can effectively avoid the snow cover in roof and reduce the maintenance cost of the owner in the future.
▼屋顶与墙面的连续一体性避免了冬天屋顶积雪,the continuity of the roof and wall effectively avoid the snow cover in roof
▼主体由钛锌板包裹,the main body is covered by titanium zinc plate
▼大门与院落出入口,entrance and the front door
室内空间利用北侧高,南侧低的地势因素,在靠南侧设计了局部的二层空间,扩大了室内空间的使用率。正南向的三角形窗户为通高的客厅带来光线与温度。南立面不同大小的三角形开口,为室内创造丰富的光照环境,也为室内围合出了层次各异的户外景色。客厅的线性开窗从屋顶连续到立面,为室内提供了良好的采光。整个建筑室内的墙面都设计成为隐蔽式的储物柜,既为小空间提供了大量储物收纳空间,又为房屋增加一道室内的保温设施,进一步增加建筑的包裹性。
By utilizing height on the south side, loft area is designed to enlarge the usage ratio of indoor space. South-facing triangular windows bring light and warmth to the entire living room. The triangular openings of different sizes of the south facade create a rich lighting environment for the interior, as well as a variety of outdoor scenes for the indoor space. The linear window in the eastern side opens from the roof to the facade, providing ample light for daily living. The entire wall of the building is designed as a concealed cabinet, which provides large storage areas, as well as functioning the indoor insulation for the building.
▼内部功能分析,functions
▼起居室:室内靠南侧设计了局部二层空间,一层设有生活空间和卧室,living room: a loft area is created by utilizing the height on the south side and the first floor placed a bedroom and living spaces
▼客厅的线性开窗从屋顶连续到立面,the linear window in the eastern side opens from the roof to the facade
▼可作为次卧的二层空间,the second floor acts as a bedroom
▼正南向的三角形窗户为通高的客厅带来光线与温度,the triangular openings of different sizes of the south facade create a rich lighting environment for the interior
室外院子是建筑几何的空间延续,分别划分成植物种植空间、小型菜地空间、以及户外休息活动区域。在满足功能性使用的同时,也成为建筑延展的一部分。新的建筑被重新设计回到了原始规划面积以及高度,成为大院中新的构成元素。它既不是最早大院中俄式大宅的附属者,也不是改造前院子里的被遗忘者,它以一种全新而又坚毅的姿态重新矗立在历史街区之中。
To satisfy the demands of outdoor activities, the courtyard is accordingly divided into a variety of planting space, from vegetable plot space, shrubs area to recreation space. Courtyard landscape is the spatial continuation of architectural geometry. The new building eventually returns to the original height and planned area, which become the new constituent element in the compound. It is neither the ancillary of the Russian mansion nor the forsaken entity as the former bungalow. It has been re-erected in a new and determined position in the historic district.
▼院落,夜晚,与生活,the house, night and the life inside
客服
消息
收藏
下载
最近



























