查看完整案例

收藏

下载
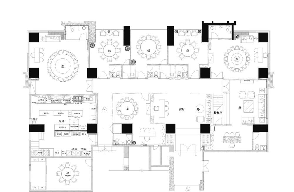
餐厅位于写字楼内部,性质为会员制,不公开对外营业。建筑面积650m²,根据业主功能需求将空间分割成为前厅、九个包间(含KTV多功能房以及司机餐厅)厨房和公共通道。整体地面进行抬高以铺设每个包间卫生间的下水管道。厨房上面搭建一个储物阁楼,捌号包间为下沉式的多功能房,只做了卫生间局部抬高,刚好够空间给楼上搭建玖号包间和小办公室。改造后整体实用面积达到650m²。空间也从办公平层空间,改造成了富有动态和节奏的错层空间。
接手这个项目是在2018年的12月,当时现场已经是砌完墙的一个状态了,因为与前任设计师在设计方案上的分歧无法达成统一,业主方决定重新找设计师进行设计,中途停工找到了我们。2月4日就是除夕,按照原计划是要在农历年前完工。如今重新进行设计,不仅设计费要多出一笔,时间也要增加许多。位于市中心区的写字楼,每停工一天都是巨额的成本,业主非常的着急。预算有限,如何在这么短的时间内,既控制成本,又出来很好的效果?
我们喜欢喝酒,又有一群喜欢喝酒的朋友,想做一个餐饮会所,专门用来招待我的朋友们。名字我都想好了,叫“玖玖食 ‧ 堂”。第一个“玖”是代表的酒,第二个“玖”是要有九个包间,两个“玖”合在一起是长长久久的意思。食 ‧ 堂 就是类似于深夜食堂一样,这里可以承载每个人不同的故事。
我想要一个可以喝酒也可以喝茶的空间,中式禅意一点,最好每个空间颜色都不一样,这样每次进去都会有不一样的感觉。视觉上要显得大气一点。
进门口的汉白玉抱鼓石,是门户的守护与威严。
大门左右两边的蘑菇石背景前铺满了岩茶的茶叶梗,让进来的每一位客人,都能第一时间闻到茶的清香,并且记住属于这个空间特有的味道。
步入入户的大门,禅意的音乐回旋,茶叶的馨香,入眼是沉稳的茶色空间。以眼耳鼻舌身意“六感”做设计。
拾级而上,进入前厅,左边为茶台也是收银台。
蘑菇石的墙面背景,粗犷有力量。KD的胡桃木饰面板,温润而稳重。地面覆盖了兼具防滑功能与自然肌理的岩石质感地砖。斑驳光影,都在诉说一个一个久远的故事。前台区域半围合的状态,既保证私密性又有聚财聚“气”的效果。
"未曾出土便有节,至凌云处尚虚心。"
竹是一种气节,一种精神,同时,也是一种文化。
进门的右手边是客户休息区域,没有进行过多的软装堆砌,业主本身不喜欢过多装饰性的产品,简单舒服是她想要的。
空间配色为胡桃木色、蓝色、和卡其色系。除了石材木材这些天然的材质以外,还运用了现代装饰中常用的砂黑哑光不锈钢进行收口。为了缓解直线条带给人的刚硬刻板的感受,所有主题墙面均采用山水题材的墙画。与空间相匹配的气场,灵动的曲线和深浅变化的蓝色,同时提升了空间的延展性和动态美。将空间比喻成人的话,骨架和灵魂是坚韧的,身段是柔软的。刚与柔,阳与阴的融合。
前厅与餐厅包间之间的展示墙,也是大门的端景。每个格子里排列的是茶具或酒器。在这里,有茶、有酒、有故事。
扣门而入...
这是女业主最喜欢的空间,小巧别致。烟绿色为主色调,素雅清新。
蓝色是带有忧郁、天真、冷静同时具有皇室威严感的颜色。这个空间采用胡桃木色木饰面,搭配饱和度低的牛仔蓝,营造静谧稳重的就餐氛围。
茶台和桌面的花依据时令进行变换,冬天的雪柳寒梅,春天的芍药牡丹,夏天的藕荷,秋天的红枫。餐桌上的菜品也是四时不同。记四时茶食,赏四时美景。
玖玖食堂主厨海叔此前是人民大会堂的厨师,也是香港半岛酒店以及上海国际金融中心顶层餐厅的主厨。波哥则是上海兰会所的主厨。他们深谙食材的时令与品质带给客人的不同体验,对食材的要求非常高。不论是就餐环境还是食材品质都不将就。
位于中轴线上的包间,用硬包做墙面,呈现包间整体统一中的少许差异化。
冬天的腊梅。
多功能房,兼具KTV和茶室的功能,以后根据需要也可以改造成有圆桌的包间。
如云似雾的雪柳。
结语:
玖玖食 ‧ 堂的设计与施工总共历时三个月,中间经历了一个新年。及其有限的预算和及其有限的时间,迫使项目推进的每一天都是紧张而有序的。工地上幾百種材料,近100個材料商。計劃、溝通、銜接,以及各种状况的处理。设计师除了需要具备设计专业的素养,还要擅长统筹和沟通。战斗力强的施工团队、材料商团队,不仅仅是会执行,还会思考和优化,会提出问题并给出更好的解决方案,能够为自己的事情负责任,甚至还能替他人考虑。设计师动用一切资源寻找性价比高的产品,计划好每个类目进场的时间顺序。现场每位工人都保质保量地完成施工,各工种之间的交接事先沟通好。材料商保证产品品质的同时在承诺的时间说到做到。这些是协助要求时间快、成本低、效果好的业主完成目标的必备条件。每一位工人,每一位材料商,每一个环节都至关重要。
也就是各方的积极配合尽心负责,才能在短时间内高效完成项目,多方共赢。
客服
消息
收藏
下载
最近































